Патент на изобретение №2397372

Published by on




РОССИЙСКАЯ ФЕДЕРАЦИЯ



ФЕДЕРАЛЬНАЯ СЛУЖБА
ПО ИНТЕЛЛЕКТУАЛЬНОЙ СОБСТВЕННОСТИ,
ПАТЕНТАМ И ТОВАРНЫМ ЗНАКАМ
(19) RU (11) 2397372 (13) C1
(51) МПК

F04D27/00 (2006.01)

(12) ОПИСАНИЕ ИЗОБРЕТЕНИЯ К ПАТЕНТУ

Статус: по данным на 28.09.2010 – действует

(21), (22) Заявка: 2009130893/06, 13.08.2009

(24) Дата начала отсчета срока действия патента:

13.08.2009

(46) Опубликовано: 20.08.2010

(56) Список документов, цитированных в отчете о
поиске:
RU 2330993 C2, 10.08.2008. SU 1663380 A1, 15.07.1991. SU 1809256 A1, 15.04.1993. SU 1798771 A1, 28.02.1993. RU 2183290 C2, 10.06.2002. DE 10237415 A, 04.03.2004.

Адрес для переписки:

140081, Московская обл., г. Лыткарино, Набережная, 18-А, кв.58, А.И. Гулиенко

(72) Автор(ы):

Авраменко Роман Леонидович (RU),
Белянкин Руслан Владимирович (RU),
Гулиенко Анатолий Иванович (RU),
Ручьев Николай Александрович (RU),
Хромов Константин Сергеевич (RU)

(73) Патентообладатель(и):

ЗАО “Газмашпроект” (RU)

(54) СИСТЕМА УПРАВЛЕНИЯ АППАРАТАМИ ВОЗДУШНОГО ОХЛАЖДЕНИЯ

(57) Реферат:

Изобретение относится к вентиляторным установкам регулируемой производительности, может быть использовано в системах транспортировки газа и в энергетических установках, где требуется охлаждение воздухом прокачиваемой через теплообменник рабочей среды для поддержания ее заданной температуры, и позволяет использовать один преобразователь частоты (ПЧ) для питания группы двигателей, при этом их количество в группе будет изменяться в зависимости от потребляемой мощности работающих вентиляторов, необходимой для охлаждения рабочей среды. Указанный технический результат достигается в системе управления (СУ) аппаратами воздушного охлаждения, содержащей теплообменник с патрубками подвода и отвода охлаждаемой среды, датчик температуры СУ, электроприводные вентиляторы, источник электропитания и преобразователь частоты электросети, причем при работе всех двигателей подвод электропитания к каждому двигателю производят от переключателя сети, первый вход которого соединен с первым выходом блока переключений, второй – с источником электропитания, а третий – с первым выходом преобразователя частоты, первый вход которого соединен с источником электропитания, а второй – с выходом регулятора температуры, на первый вход которого поступает сигнал о требуемой температуре охлаждаемой среды, на второй – с датчика температуры СУ, на первый вход блока переключений поступает сигнал со второго выхода преобразователя частоты о величине параметра переключения, и при максимальном его значении с первого выхода блока переключений на первый вход переключателя сети подается сигнал на переключение питания двигателя от преобразователя частоты к источнику электропитания с постоянной частотой, а при минимальном значении – на переключение к преобразователю частоты. 2 з.п.ф-лы, 2 ил.

Изобретение относится к вентиляторным установкам регулируемой производительности и может быть использовано в системах транспортировки газа и в энергетических установках, где требуется охлаждение воздухом прокачиваемой через теплообменник рабочей среды для поддержания ее заданной температуры.

Известна система частичного (дискретного) включения/отключения работающих вентиляторов аппаратов воздушного охлаждения, содержащая блок управления, датчик температуры охлаждаемой среды, электроприводные вентиляторы, группу теплообменников, (см. книгу «Эксплуатация газопроводов Западной Сибири», Л.: Недра, стр.152). Недостатком этой системы является низкая точность поддержания температуры охлаждаемой среды, а частое отключение и включение электродвигателей на режим максимальной мощности приводит к преждевременной выработке их ресурса. При этом неэффективно используется охлаждающая поверхность теплообмена.

Наиболее близкой к заявленной системе является система управления аппаратов воздушного охлаждения, содержащая регулятор, датчик температуры охлаждаемой среды, теплообменники, вентиляторы с асинхронными электродвигателями, частота вращения которых изменяется преобразователями частоты питающей электродвигатели сети (см. патент РФ 2330993, 2006 г.). Недостатком этой системы является большое число преобразователей частоты, равное числу электродвигателей, что приводит к увеличению затрат на ее обслуживание при эксплуатации.

Указанные недостатки известных систем управления особо проявляются при их использовании для теплообменников, каждый из которых имеет для прокачки воздуха шесть и более электроприводных вентиляторов. Использование в этом случае для каждого электродвигателя индивидуального преобразователя частоты ведет к увеличению стоимости жизненного цикла системы.

Технический результат, достигаемый изобретением, заключается в использовании одного преобразователя частоты (ПЧ) для питания группы двигателей. При этом их количество в группе будет изменяться в зависимости от потребляемой мощности работающих вентиляторов, необходимой для охлаждения рабочей среды. С ее увеличением питание части двигателей будет переключаться от ПЧ к источнику электропитания с постоянной частотой сети и обратно при уменьшении мощности. После плавного запуска всех двигателей от ПЧ они постоянно работают, но с неодинаковыми частотами вращения роторов. Однако при работе двигателей (вентиляторов) для охлаждения используется вся теплообменная поверхность, что обеспечивает экономию электрической энергии. Такое построение системы снизит общую номенклатуру оборудования и стоимость его жизненного цикла.

Указанный результат достигается тем, что система управления (СУ) аппаратами воздушного охлаждения, содержащая теплообменник с патрубками подвода и отвода охлаждаемой среды, датчик температуры (СУ), электроприводные вентиляторы, источник электропитания и преобразователь частоты электросети, отличающаяся тем, что при работе всех двигателей, подвод электропитания к каждому двигателю производят от переключателя сети, первый вход которого соединен с первым выходом блока переключений, второй – с источником электропитания, а третий – с первым выходом преобразователя частоты, первый вход которого соединен с источником электропитания, а второй – с выходом регулятора температуры, на первый вход которого поступает сигнал о требуемой температуре охлаждаемой среды, на второй – сигнал с датчика температуры (СУ), на первый вход блока переключений поступает сигнал со второго выхода преобразователя частоты о величине параметра переключения, и при максимальном его значении с первого выхода блока переключений на первый вход переключателя поступает сигнал на переключение питания двигателя от преобразователя частоты к источнику электропитания с постоянной частотой, а при минимальном значении – на переключение к преобразователю частоты.

Указанный результат достигается также тем, что электропитание к отдельной группе двигателей подводят от преобразователя частоты, а к остальным – через переключатели сети.

Указанный результат достигается и тем, что поступающий с каждого двигателя на вход блока диагностики системы сигнал с датчика виброскорости преобразуют в частотный спектр и представляют в виде суммы значений виброскорости на всех гармониках спектра, кратных частоте вращения ротора, и по этому сигналу отключают двигатель при превышении заданных уровней вибрации.

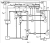
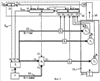
На фиг.1 приведена структурная схема системы управления с подключением электропитания к двигателям с использованием переключателей сети, а на фиг.2 – схема со смешанным подключением электропитания.

Объектом управления является теплообменник 11 (фиг.1). Через патрубок 14 на его вход подводят охлаждаемую среду (газ, масло), а через патрубок 15 – отводят. Ее охлаждение производят прокачкой через теплообменник 11 окружающего воздуха вентиляторами. Каждый вентилятор вращают двигателем 7 (717n), который подключают к шине 13 с постоянной частотой электросети (источнику 1 электропитания) или к шине 12 с переменной частотой сети (преобразователю 2 частоты). Необходимую шину подключают переключатели 5 сети по сигналу из блока 4 переключений. Для работы системы на первый вход 33 регулятора 3 температуры от системы высшего уровня поступает информация о требуемой температуре охлаждаемой среды, а на второй 34 – о ее текущем значении с датчика 10 температуры. С выхода 28 регулятора 3 на цифровой вход 18 ПЧ поступает информация о требуемой частоте электросети. ПЧ имеет цифровой выход 19 для передачи величины параметра переключения (например, тока или мощности) на первый вход 29 блока 4. Работу двигателей контролируют в блоке 9 диагностики, куда поступают данные с датчиков 8 виброскорости и автоматов 6 защиты сети. Регулятор 3 температуры, блок 4 переключений и блок 9 диагностики реализованы в виде модулей программного обеспечения микроконтроллера, на базе которого создан блок 16 управления.

Для обеспечения необходимой величины прокачки воздуха блок управления изменяет как скорость вращения роторов нескольких двигателей путем изменения частоты питающей электросети, так и число двигателей, подключенных к источнику с постоянной частотой электропитания.

Функционирование системы происходит следующим образом. Требуемое значение температуры охлаждаемой среды (Тзад) поступает на 1-й вход 33 регулятора 3 температуры (например, от системы управления высшего уровня). На его 2-й вход 34 поступают данные о фактической температуре среды (Тизм) с датчика 10, установленного в отводящем патрубке 15. Эти данные поступают в программу регулятора, в которой реализована отрицательная обратная связь, имеются пропорциональный, интегрирующий и дифференцирующий контуры, а также другие средства для получения необходимого качества регулирования.

Регулятор 3 определяет величину сигнала рассогласования температур Т (отклонение фактической температуры от заданного значения) и корректирует значение частоты электросети в шине 12. При положительном значении Т регулятор увеличивает частоту питающей сети и, следовательно, увеличивается частота вращения ротора двигателей и подача воздуха на теплообменник, а при отрицательном – уменьшает частоту питающей сети. Это приводит к уменьшению/увеличению температуры охлаждающей среды за теплообменником. Процесс будет продолжаться до тех пор, пока заданное и фактическое значения температур охлаждаемой среды в отводящем патрубке 15 не сравняются.

Формируемый на выходе регулятора 3 температуры сигнал о требуемой частоте электропитания fзад, поступает на второй вход 18 преобразователя 2, программное обеспечение которого имеет свою отрицательную обратную связь по частоте электропитания, и после реализации fзад в шине 12 устанавливается новое значение частоты питания и новая частота вращения роторов двигателей.

На максимальном режиме работы системы охлаждения регулятор 3 температуры может управлять только частью двигателей, так как мощность ПЧ недостаточна для работы всех двигателей на этом режиме, и для управления включается блок 4 переключений. Основная функция блока 4 – определить направление переключения (отключить двигатель от ПЧ или же подключить) и выбрать для этого номер двигателя. В качестве параметра переключения можно использовать величину тока Iсети в сети 12 или мощности ПЧ. Номера подключенных к шинам двигателей формируются в отдельных списках – Ш12 и Ш13.

На первый вход 29 блока 4 переключений со второго выхода 19 ПЧ (или с специального датчика тока в шине 12) передаются текущие данные о величине тока Iсети. Если его величина достигает предварительно заданного максимального значения Iмакс, что свидетельствует о недостаточной мощности ПЧ для обеспечения необходимой прокачки воздуха, то блок 4 формирует сигнал на переключение одного двигателей на питание от электросети 13 с постоянной частотой. В качестве номера двигателя используется, например, последний номер списка Ш12, при этом этот номер исключается из списка Ш12 и вносится в конец списка Ш13. Если же величина тока Iсети имеет минимальное заданное значение Iмин, то имеется избыточность прокачиваемого воздуха, и блок 4 формирует сигнал на переключение одного из двигателей к шине с переменной частотой электропитания 12 (к ПЧ). В качестве номера двигателя используется, например, последний номер списка Ш13, при этом этот номер исключается из списка Ш13 и вносится в конец списка Ш12.

Переключение двигателей по одному будет происходить до тех пор, пока суммарная величина тока, проходящего через ПЧ, не будет меньше максимальной заданной величины или больше минимальной заданной величины. В программе блока 4 имеются математические средства исключения случайной выдачи команды на переключение – фильтрация от случайных выбросов тока, петля гистерезиса, анализ повторяемости сигнала на переключение и др.

Переключение двигателей к шинам 12 или 13 производят двухпозиционные с нейтралью переключатели 5 сети. При поступлении с блока 4 на первый вход 23 переключателя 5, например сигнала полярности «+», обеспечивается подключение двигателя к шине 12 с переменной частотой сети, а при сигнале полярности «-» – к шине 13 с постоянной частотой электросети.

Для запуска двигателей при включении системы в работу программа блока 4 выдает команды на перевод переключателей 5 двигателей в положение питания от ПЧ. Преобразователь частоты плавно одновременно запускает все двигатели на минимальную частоту вращения. После окончания запуска включается в работу регулятор 3 температуры. При необходимости отключения любого из двигателей его переключатель переводится в положение «нейтраль».

На фиг.1 все двигатели имеют переключатели 5 сети. Для сокращения их числа часть двигателей 7 можно изначально жестко подключить к шине 12, т.е. к преобразователю 2 частоты. В результате получается схема управления со смешанным подключением двигателей, которая имеет меньше коммутационного оборудования и, следовательно, большую надежность. Например, для теплообменника с тремя вентиляторами (рис.2) достаточно использовать один преобразователь частоты с двукратной величиной мощности одного электродвигателя и один переключатель 5 сети. На фиг.2 первый 71 и второй 72 двигатели подключены к ПЧ, а питание к третьему двигателю 73 подводится от переключателя 53 сети.

Для диагностики двигателей используется информация с установленных на двигателях датчиков 8 виброскорости, поступающая на первый вход 26 блока 9 диагностики, и при превышении предельной величины диагностического сигнала (ДСмакс) о работоспособности двигателя он отключается. Используется также информация с автоматов 6 защиты сети, которая поступает на второй вход 27 блока 9 в виде сигнала отключения электродвигателя при превышении предельного значения тока. Информация с блока 9 диагностики передается на второй вход 31 блока 4 переключения для корректировки списков Ш12 и Ш13.

Для формирования диагностического сигнала о работоспособности двигателей сигнал с датчика 8 виброскорости преобразуется в частотный спектр и представляется в виде суммы значений виброскорости на всех гармониках спектра, кратных частоте вращения ротора. Информация о частотах вращения поступает с второго выхода 30 блока 4 переключения на третий вход 32 блока 9.

Важным свойством рассмотренной системы является возможность обеспечения равномерной выработки ресурса двигателей. Для этого регистрируется наработка каждого двигателя и с заданным периодом производится их ранжирование по величине наработки. В результате ранжирования получается номерной список работоспособных электродвигателей, первый номер которого – это электродвигатель с минимальной наработкой и так далее.

Таким образом, данная система управления аппаратами воздушного охлаждения с использованием одного преобразователя частоты электросети, в которой регулятор температуры охлаждаемой среды обеспечивает непрерывное изменение частоты электропитания в силовой шине нескольких двигателей, а блок переключений обеспечивает поочередное переключение электропитания двигателей между шинами с переменной и постоянной частотой электропитания, в сочетании с системой плавного запуска двигателей от преобразователей частоты обеспечивает в автоматическом режиме поддержание с высокой точностью температуры охлаждаемой среды. Охлаждение производится всеми вентиляторами, и поэтому всегда используется вся теплообменная поверхность, но часть двигателей работает на пониженных частотах вращения роторов, а остальные – на максимальной частоте вращения.

За счет работы части двигателей от преобразователя частоты на пониженных частотах вращения обеспечивается экономия электроэнергии в системе, а реализация в системе автоматического переключения двигателей на питание от электросети с постоянной частотой позволяет сократить число преобразователей частоты. В сочетании с системой диагностики двигателей данная система управления аппаратами воздушного охлаждения обеспечит увеличение ресурса двигателей за счет обеспечения равномерной их наработки и плавного запуска от преобразователей частоты, а также уменьшит стоимость жизненного цикла системы за счет сокращения состава оборудования.

Формула изобретения

1. Система управления (СУ) аппаратами воздушного охлаждения, содержащая теплообменник с патрубками подвода и отвода охлаждаемой среды, датчик температуры (СУ), электроприводные вентиляторы, источник электропитания и преобразователь частоты электросети, отличающаяся тем, что при работе всех двигателей подвод электропитания к каждому двигателю производят от переключателя сети, первый вход которого соединен с первым выходом блока переключений, второй – с источником электропитания, а третий – с первым выходом преобразователя частоты, первый вход которого соединен с источником электропитания, а второй – с выходом регулятора температуры, на первый вход которого поступает сигнал о требуемой температуре охлаждаемой среды, на второй – с датчика температуры (СУ), на первый вход блока переключений поступает сигнал со второго выхода преобразователя частоты о величине параметра переключения, и при максимальном его значении с первого выхода блока переключений на первый вход переключателя сети подается сигнал на переключение питания двигателя от преобразователя частоты к источнику электропитания с постоянной частотой, а при минимальном значении – на переключение к преобразователю частоты.

2. Система управления по п.1, отличающаяся тем, что электропитание к отдельной группе двигателей подводят от преобразователя частоты, а к остальным – через переключатели сети.

3. Система управления по п.1, отличающаяся тем, что поступающий с каждого двигателя на вход блока диагностики системы сигнал с датчика виброскорости преобразуют в частотный спектр и представляют в виде суммы значений виброскорости на всех гармониках спектра, кратных частоте вращения ротора, и по этому сигналу отключают двигатель при превышении заданных уровней вибрации.

РИСУНКИ

Categories: BD_2397000-2397999