Патент на изобретение №2396399

Published by on




РОССИЙСКАЯ ФЕДЕРАЦИЯ



ФЕДЕРАЛЬНАЯ СЛУЖБА
ПО ИНТЕЛЛЕКТУАЛЬНОЙ СОБСТВЕННОСТИ,
ПАТЕНТАМ И ТОВАРНЫМ ЗНАКАМ
(19) RU (11) 2396399 (13) C1
(51) МПК

E04G21/12 (2006.01)

(12) ОПИСАНИЕ ИЗОБРЕТЕНИЯ К ПАТЕНТУ

Статус: по данным на 17.09.2010 – действует

(21), (22) Заявка: 2009114019/03, 13.04.2009

(24) Дата начала отсчета срока действия патента:

13.04.2009

(46) Опубликовано: 10.08.2010

(56) Список документов, цитированных в отчете о
поиске:
RU 2121920 C1, 20.11.1998. RU 2076043 C1, 27.03.1997. RU 2122086 C1, 20.11.1997. SU 1224389 A, 15.04.1986. RU 2111855 C1, 27.05.1998. SU 1686096 A1, 23.10.1991. SU 131488 A, 31.01.1958.

Адрес для переписки:

350004, г.Краснодар, а/я 5186, В.А. Кеворкову

(72) Автор(ы):

Кеворков Виктор Аршакович (RU)

(73) Патентообладатель(и):

Кеворков Виктор Аршакович (RU)

(54) ТЕРМИЧЕСКИЙ СПОСОБ НАТЯЖЕНИЯ НАПРЯГАЕМЫХ ЭЛЕМЕНТОВ ПРЕДВАРИТЕЛЬНО НАПРЯЖЕННЫХ СТРОИТЕЛЬНЫХ КОНСТРУКЦИЙ И УСТРОЙСТВО ДЛЯ ЕГО ОСУЩЕСТВЛЕНИЯ

(57) Реферат:

Изобретение относится к области изготовления предварительно напряженных строительных конструкций, в частности к способам и устройствам по натяжению напрягаемых элементов. Для реализации термического способа натяжения напрягаемых элементов представлен монтажный участок с расположенными на нем с пазами двумя силовыми неподвижными упорами – первым и вторым и за вторым – подвижный силовой упор, для перемещения которого используют механическое устройство, закрепленное ко второму неподвижному и подвижному силовым упорам. В пазы всех силовых упоров устанавливают напрягаемые элементы заданной длины с анкерами на концах и закрепляют их к первому неподвижному и подвижному силовым упорам. Кроме того, на все напрягаемые элементы надевают по длине, между неподвижными силовыми упорами, теплоизоляционные термостойкие кожухи-оболочки замкнутого сечения и создают внутри них замкнутое пространство, необходимое для нагрева напрягаемых элементов. Включая систему нагрева, нагревают напрягаемые элементы, которые при этом получают температурные удлинения. Для фиксации этих удлинений перемещают с помощью механического устройства подвижный силовой упор и, когда температура нагрева напрягаемых элементов достигнет своего максимума – Т°С=350°С-400°С, перемещение подвижного силового упора также доводят до максимального заданного удлинения, а сам подвижный силовой упор включает в это время ограничитель его хода – электрический ключник, отключающий одновременно и систему нагрева напрягаемых элементов. После охлаждения напрягаемые элементы получают заданное предварительное напряжение. Далее с них снимают теплоизоляционные термостойкие кожухи-оболочки, которые используют для дальнейшего многократного пользования, а сами уже напряженные элементы применяют в предварительно напряженных строительных конструкциях. 2 н.п. ф-лы, 5 ил.

Изобретение относится к области изготовления предварительно напряженных строительных конструкций, в частности к способам и устройствам по натяжению напрягаемых элементов данных конструкций.

Известен механический способ натяжения напрягаемых элементов преднапряженных строительных конструкций, в частности железобетонных (Руководство по технологии изготовления предварительно напряженных железобетонных конструкций. М.: Стройиздат, 1975, с. 39-43), где напрягаемые элементы заданной длины с анкерами на одном конце устанавливают в пазы 1-го неподвижного силового упора, а второй свободный конец пропускают через пазы 2-го силового упора, упираясь в который выполняют механическое натяжение данных напрягаемых элементов гидравлическими домкратами и закрепляют их специальными устройствами – зажимами. Данное механическое натяжение напрягаемых элементов чаще всего выполняют на упоры силовых форм или на отдельные упоры. Известно устройство по данному способу, включающее два неподвижных силовых упора с пазами, напрягаемые элементы заданной длины с анкерами на одном конце для крепления к 1-му неподвижному силовому упору, зажимы для установки этих элементов во 2-м неподвижном силовом упоре и гидравлические домкраты для натяжения.

Недостатками данного способа и устройства являются высокая стоимость самих гидравлических домкратов, их низкая производительность, трудоемкость установки и эксплуатации.

Наиболее близким по технической сущности является электротермический способ натяжения напрягаемых элементов преднапряженных строительных конструкций, в частности железобетонных (Руководство по технологии изготовления предварительно напряженных железобетонных конструкций. М.: Стройиздат, 1975, с. 44-63), где напрягаемые элементы заданной длины с анкерами на концах поэтапно нагревают до высокой температуры T°C=350°-400°, а затем устанавливают в пазы двух силовых неподвижных упоров силовой формы в проектное положение и, тем самым, фиксируют их температурное удлинение, где в процессе остывания данные напрягаемые элементы получают заданное предварительное напряжение.

Известно устройство по данному способу, содержащее установку по нагреву напрягаемых элементов заданной длины с анкерами на концах и силовую форму с двумя неподвижными силовыми упорами, которые содержат пазы для установки в них напрягаемых элементов после нагрева.

Недостатком данного способа и устройства является высокая стоимость используемого источника энергии – электрической энергии для нагрева напрягаемых элементов – арматуры. Кроме этого для этих целей необходимо дорогостоящее дефицитное оборудование, работа с которым в условиях производства, а также перенос вручную нагретых до высокой температуры арматурных стержней и установка их в пазы силовых форм небезопасны. Неэффективно также время натяжения арматурных стержней – более 2-х часов, где поэтапный нагрев всех стержней, например, одной формы и укладка их в пазы составляет 40-50 минут, остывание всех стержней – 1÷1,5 часа. Вместе с тем, в условиях производства достаточно сложный, а порой и отсутствует необходимый контроль нагрева напрягаемых элементов и контроль их натяжения ввиду низкой точности заданного удлинения.

Техническим решением задачи является повышение эффективности способа и устройства натяжения напрягаемых элементов предварительно напряженных строительных конструкций, которая выражается в повышении производительности и качества метода натяжения.

Задача достигается тем, что в известном способе натяжения напрягаемых элементов преднапряженных строительных конструкций, где на специальных установках поэтапно нагревают напрягаемые элементы заданной длины с анкерами на концах до высокой температуры T°C=350°C-400°С и далее устанавливают их в пазы двух силовых неподвижных упоров силовой формы в проектное положение и, тем самым, фиксируют их температурное удлинение, где в процессе остывания данные напрягаемые элементы получают заданное предварительное напряжение, согласно изобретению для создания заданного предварительного напряжения в напрягаемых элементах создают монтажный участок, на котором устанавливают на определенном расстоянии между собой с пазами два неподвижных силовых упора – первый и второй – и расположенный за вторым один подвижный силовой упор. Причем между вторым неподвижным и подвижным силовыми упорами устанавливают и закрепляют к ним механическое устройство, с помощью которого перемещают подвижный силовой упор. В пазы всех силовых упоров ставят в проектное положение все напрягаемые элементы заданной длины с анкерами на концах и закрепляют их к первому неподвижному и подвижному силовым упорам, после чего на все напрягаемые элементы надевают по длине, между неподвижными силовыми упорами, теплоизоляционные термостойкие кожухи-оболочки замкнутого сечения, внутри которых создают замкнутое пространство, которое и нагревают системой нагрева для получения в напрягаемых элементах регулируемую высокую температуру Т°С=350°С-400°С, при этом в процессе нагрева этих элементов подвижный силовой упор перемещают от второго неподвижного силового упора с помощью механического устройства и постоянно фиксируют, тем самым, возрастающее температурное удлинение напрягаемых элементов и, когда температура их нагрева достигнет максимума Т°С=350°С-400°С, перемещение подвижного силового упора также доводят до своего конечного значения, равного заданному температурному удлинению напрягаемых элементов, соответствующему заданной величине предварительного напряжения. Кроме того, в данный момент подвижный силовой упор механически включает электрический ограничитель – ключник, отключающий одновременно как дальнейший нагрев напрягаемых элементов, так и ход самого подвижного силового упора, который в данный момент выполняют неподвижным. После этого систему нагрева отключают и напрягаемые элементы охлаждают до нормальной температуры и создают в них заданное предварительное напряжение. Далее кожухи-оболочки снимают с напрягаемых элементов для их дальнейшего многократного пользования, а полученные уже напряженные элементы применяют в предварительно напряженных строительных конструкциях.

А устройство, на базе которого осуществляют термический способ натяжения напрягаемых элементов предварительно напряженных строительных конструкций, включающее установку по нагреву напрягаемых элементов заданной длины с анкерами на концах и силовую форму с двумя неподвижными силовыми упорами, которые содержат пазы для установки в них напрягаемых элементов после их нагрева, – это монтажный участок, на котором расположены на определенном расстоянии между собой два неподвижных силовых упора – первый и второй – и находящийся за вторым подвижный силовой упор, где между вторым неподвижным и подвижным силовыми упорами установлено закрепленное к ним механическое устройство для перемещения подвижного силового упора, максимальный ход которого ограничен, закрепленным на монтажном участке электрическим ключником. Причем все силовые упоры содержат пазы, в которых размещены напрягаемые элементы заданной длины с анкерами на концах, закрепленные за первым неподвижным и подвижным силовыми упорами, при этом напрягаемые элементы снабжены надетыми на них по длине, между неподвижными силовыми упорами, теплоизоляционными термостойкими съемными кожухами-оболочками, которые содержат внутри замкнутое пространство для нагрева напрягаемых элементов до заданной температуры Т°С=350°С-400°С.

Сопоставительный анализ заявляемого решения с прототипом показывает, что способ отличается тем, что для создания предварительного напряжения в напрягаемых элементах создают монтажный участок, на котором устанавливают на определенном расстоянии между собой с пазами два неподвижных силовых упора – первый и второй – и расположенный за вторым один подвижный силовой упор, причем между вторым неподвижным и подвижным силовыми упорами устанавливают и закрепляют к ним механическое устройство, с помощью которого перемещают подвижный силовой упор, далее в пазы всех силовых упоров ставят в проектное положение все напрягаемые элементы заданной длины с анкерами на концах и закрепляют их к первому неподвижному и подвижному силовым упорам, после чего на все напрягаемые элементы надевают по длине, между неподвижными силовыми упорами, теплоизоляционные термостойкие кожухи-оболочки замкнутого сечения, внутри которых создают замкнутое пространство, которое и нагревают системой нагрева для получения в напрягаемых элементах регулируемой высокой температуры Т°=350°-400°С, при этом в процессе нагрева напрягаемых элементов подвижный силовой упор перемещают от второго неподвижного силового упора с помощью механического устройства и постоянно фиксируют, тем самым, возрастающее температурное удлинение напрягаемых элементов и, когда температура их нагрева достигает максимума – T°C=350°C-400°С, перемещение подвижного силового упора также доводят до своего конечного значения, равного заданному температурному удлинению напрягаемых элементов, соответствующему заданной величине предварительного напряжения, вместе с тем, достигнув максимального заданного перемещения, подвижный силовой упор механически включает электрический ограничитель – ключник, отключающий одновременно как дальнейший нагрев напрягаемых элементов, так и ход подвижного силового упора, который в данный момент выполняют неподвижным, далее систему нагрева отключают, напрягаемые элементы охлаждают до нормальной температуры и создают в них заданное предварительное напряжение, после чего кожухи-оболочки снимают с напрягаемых элементов для их дальнейшего многократного использования, а полученные уже напряженные элементы применяют далее в предварительно напряженных строительных конструкциях. Таким образом, заявляемый способ соответствует критерию «новизна».

Сравнительный анализ заявляемого способа с другими решениями в данной области позволил выявить в них признаки, отличающие заявляемое решение от прототипа. Это позволяет сделать вывод о его соответствии критерию «изобретательский уровень».

Сопоставительный анализ заявляемого устройства с прототипом показывает, что в известном устройстве по натяжению напрягаемых элементов, содержащем установки по нагреву напрягаемых элементов заданной длины с анкерами на концах и силовую форму с двумя неподвижными силовыми упорами, которые имеют пазы для установки в них напрягаемых элементов после их нагрева, имеется монтажный участок, на котором расположены на определенном расстоянии между собой два неподвижных силовых упора – первый и второй – и находящийся за вторым подвижный силовой упор, где между вторым неподвижным и подвижным силовыми упорами установлено закрепленное к ним механическое устройство для перемещения подвижного силового упора, максимальный ход которого ограничен закрепленным на монтажном участке электрическим ключником, причем все силовые упоры содержат пазы, в которых размещены напрягаемые элементы заданной длины с анкерами на концах, закрепленные за первым неподвижным и подвижным силовыми упорами, при этом напрягаемые элементы снабжены надетыми на них по длине, между неподвижными силовыми упорами, теплоизоляционными термостойкими съемными кожухами-оболочками, которые содержат внутри замкнутое пространство для нагрева напрягаемых элементов до заданной температуры T°C=350°C-400°С. Таким образом, заявляемое устройство для осуществления предлагаемого способа натяжения соответствует критерию «новизна».

Сравнительный анализ заявляемого устройства с другими решениями в данной области позволил выявить в них признаки, отличающие заявляемое решение от прототипа, что позволяет сделать вывод о его соответствии критерию «изобретательский уровень».

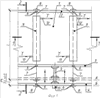
Сущность изобретения поясняется чертежами (см. фиг.1÷фиг.5), где на фиг.1 представлен план участка изготовления предварительно напрягаемых элементов, на фиг.2 и фиг.3 соответственно разрезы 1-1 и 2-2 данного плана, на фиг.4 – предлагаемая конструкция кожуха-оболочки в исходном состоянии, на фиг.5 – предлагаемая конструкция кожуха-оболочки в проектном положении. На фиг.1 и фиг.3 показаны этапы работы предлагаемого способа натяжения – А – до начала нагрева напрягаемых элементов, Б – после начала нагрева этих элементов.

Термический способ натяжения напрягаемых элементов предварительно напряженных строительных включает участок 1 изготовления напрягаемых элементов, который содержит силовые упоры – 2-1 – неподвижный, 3-2 – неподвижный и 4 – подвижный, где между вторым неподвижным 3 и подвижным 4 силовыми упорами располагают и закрепляют к ним механическое устройство 5, которое служит для перемещения подвижного силового упора 4. Все силовые упоры 2, 3, 4 имеют пазы 6 для установки напрягаемых элементов 7 заданной длины с анкерами на концах 8. На напрягаемых элементах 7 надеты теплоизоляционные термостойкие кожухи-оболочки 9 – герметичные, замкнутого сечения, образующие внутри замкнутое пространство 10, для нагрева которого и дальнейшего нагрева напрягаемых элементов 7 кожухи-оболочки 9 снабжены, например, входными 11 и выходными 12 патрубкам для подачи и выхода теплоносителя – Т системы нагрева. Для установки и съема с напрягаемых элементов 7 кожухи-оболочки имеют, например, прорези 14 (см. фиг.4, фиг.5), для герметизации которых используют закрепляемые заглушки 15. Для ограничения движения хода подвижного силового упора 4, имеющего наибольшие перемещения – LT°Cзад, на участке 1 закреплен электрический ограничитель – ключник 13.

Предлагаемый термический способ натяжения напрягаемых элементов предварительно напряженных строительных конструкций осуществляется следующим образом (см. фиг.1÷фиг.5).

Этап А – до начала нагрева напрягаемых элементов 7.

На монтажном участке 1, под которым понимают или силовую форму, или площадку, на которой изготавливают предварительно напряженную строительную конструкцию, располагают силовые упоры (см. фиг.1, фиг.2, фиг.3) – 2 – первый неподвижный, на определенном расстоянии от него – 3 – второй неподвижный, за которым предусматривают подвижный силовой упор 4. Между силовыми упорами 3 и 4 ставят механическое устройство 5, которое к ним и закрепляют. С помощью данного устройства 5, представляющего собой, например, или домкрат небольшой мощности, или механизм с использованием резьбового соединения, перемещают подвижный силовой упор 4.

Все силовые упоры 2, 3, 4 имеют пазы 6, в которые устанавливают и закрепляют напрягаемые элементы 7, выполненные из высокопрочной стали с анкерами на концах 8. Причем расстояние между анкерами 8 при изготовлении напрягаемых элементов 7 принимают равным заданной длине L (см. фиг.1) – расстояние от наружной грани 1-го неподвижного силового упора 2 и до наружной грани подвижного силового упора 4 на этапе А. На напрягаемые элементы 7 надевают через прорези 14 (см. фиг.4, фиг.5) теплоизоляционные термостойкие кожухи-оболочки 9 с входными 11 и выходными 12 патрубками для подачи и выхода высокотемпературного теплоносителя – Т системы нагрева. Сечения кожухов-оболочек 9 принимают, например, в виде цилиндров из термостойкой пластмассы с боковыми торцевыми стенками. Герметизацию кожухов-оболочек 9 выполняют заполнением прорезей 14 закрепляемыми заглушками 15, выполненных, например, из термостойкого материала – паранита. В результате создают внутри кожухов-оболочек 9 замкнутое пространство 10, окружающее по длине напрягаемые элементы 7. К патрубкам 11 и 12 кожухов-оболочек 9 подсоединяют трубопроводы системы нагрева напрягаемых элементов 7.

Этап Б – После начала нагрева напрягаемых элементов 7.

Включают систему нагрева замкнутого пространства 10 внутри кожухов-оболочек 9. Для этих целей используют, например, широко применяемый в нефтехимии метод постоянной циркуляции высокотемпературного теплоносителя по трубопроводам. Данный теплоноситель может быть как жидким, так и газообразным, который нагревают в газовых печах до температуры Т°С=350°С-400°C с постоянной циркуляцией через патрубки 11 и 12 в кожухи-оболочки 9, где и нагревают замкнутое пространство 10 и соответственно напрягаемые элементы 7. Время нагрева данных элементов 5÷7 минут, которые в процессе нагрева получают все возрастающие температурные удлинения.

С начала нагрева напрягаемых элементов 7 одновременно включают механическое устройство 5, с помощью которого постоянно перемещают подвижный силовой упор 4 на величины нарастающих температурных удлинений напрягаемых элементов 7, т.е. постоянно фиксируют эти температурные деформации. Когда температура напрягаемых элементов достигает своего максимума T°C=350°C – 400°С, перемещения подвижного силового упора 4 доводят до своего конечного значения – LT°C зад (см. фиг.1, фиг.3) – заданного температурного удлинения напрягаемых элементов 7. При этом подвижный силовой упор в данный момент включает электрический ключник 13, который одновременно отключает дальнейший нагрев напрягаемых элементов 7 (отключает печь нагрева) и ход подвижного силового упора 4. После чего данный силовой упор 4 выполняют неподвижным. Далее напрягаемые элементы 7 охлаждают путем циркуляции по трубопроводам через патрубки 11 и 12 в кожухи-оболочки 9 холодного теплоносителя. Время охлаждения напрягаемых элементов 5÷7 минут. При охлаждении напрягаемые элементы 7 получают заданное предварительное напряжение. Далее процесс циркуляции холодного теплоносителя останавливают, отсоединяют трубопроводы с патрубков 11 и 12 и освобождают заглушки 15 с прорезей 14 кожухов-оболочек 9. После чего кожухи-оболочки 9 снимают с напрягаемых элементов 7 для их дальнейшего многократного использования, а готовые напряженные элементы применяют в предварительно напряженных строительных конструкциях.

Предлагаемое устройство для осуществления термического метода натяжения напрягаемых элементов предварительно напряженных строительных конструкций работает следующим образом (см. фиг.1 – фиг.5).

На монтажном участке 1, имеющем с пазами два неподвижных силовых упора 2 и 3 и один неподвижный силовой упор 4, располагают между упорами 3 и 4 и закрепляют к ним механическое устройство 5, после чего в пазы всех упоров 2, 3, 4 устанавливают напрягаемые элементы 7 заданной длины с анкерами на концах 8, закрепляя их к силовым упорам 2 и 4, далее на эти элементы 7 надевают теплоизоляционные термостойкие кожухи-оболочки 9 с входными 11 и выходными 12 патрубками для системы нагрева и создают внутри них замкнутое пространство 10, которое используют для нагрева напрягаемых элементов 7. После включения системы нагрева в напрягаемых элементах 7 возникают все возрастающие температурные удлинения, которые постоянно фиксируют перемещением подвижного силового упора 4 с помощью механического устройства 5. При достижении в напрягаемых элементах 7 максимальной температуры T°C=350°C÷400°С подвижный силовой упор 4 перемещают до своего конечного значения LT°Cзад, который в то же время включает ключник 13, отключающий систему нагрева напрягаемых элементов 7 и ход подвижного силового упора 4. В данный момент силовой упор 4 выполняют неподвижным. Далее напрягаемые элементы 7 охлаждают до нормальной температуры, создавая в них заданное предварительное напряжение, после чего кожухи-оболочки 9 снимают для их дальнейшего многократного пользования, а полученные уже напряженные элементы 7 используют в предварительно напряженных строительных конструкциях.

Предлагаемый термический способ натяжения напрягаемых элементов предварительно напряженных строительных конструкций и устройство для его осуществления позволяют повысить как производительность метода натяжения, так и его качество, где за значительно короткое время одновременно нагревают и натягивают все установленные напрягаемые элементы до проектного напряжения, причем в проектном положении; имеет место экономия средств при замене дорогостоящей электрической энергии на более дешевую, например газовую; значительно повышается точность нагрева и натяжения напрягаемых элементов за счет взаимоконтроля и механизации регистрации этих двух параметров изготовления.

Формула изобретения

1. Термический способ натяжения напрягаемых элементов предварительно напряженных строительных конструкций, включающий поэтапный нагрев на специальных установках напрягаемых элементов заданной длины с анкерами на концах до высокой температуры Т°С=350-400°С, которые устанавливают в пазы двух силовых неподвижных упоров силовой формы в проектное положение и тем самым фиксируют их температурное удлинение, где в процессе остывания данные напрягаемые элементы получают заданное предварительное напряжение, отличающийся тем, что для создания заданного предварительного напряжения в напрягаемых элементах создают монтажный участок, на котором устанавливают на определенном расстоянии между собой с пазами два неподвижных силовых упора – первый и второй и расположенный за вторым один подвижный силовой упор, причем между вторым неподвижным и подвижным силовыми упорами устанавливают и закрепляют к ним механическое устройство, с помощью которого перемещают подвижный силовой упор, далее в пазы всех силовых упоров ставят в проектное положение все напрягаемые элементы заданной длины с анкерами на концах и закрепляют их к первому неподвижному и подвижному силовым упорам, после чего на все напрягаемые элементы одевают по длине между неподвижными силовыми упорами теплоизоляционные термостойкие кожухи – оболочки замкнутого сечения, внутри которых создают замкнутое пространство, которое и нагревают системой нагрева для получения в напрягаемых элементах регулируемой высокой температуры T°C=350-400°C, при этом в процессе нагрева напрягаемых элементов подвижный силовой упор перемещают от второго неподвижного силового упора с помощью механического устройства и постоянно фиксируют тем самым возрастающее температурное удлинение напрягаемых элементов, и когда температура их нагрева достигает максимума – T°C=350-400°C, перемещение подвижного силового упора также доводят до своего конечного значения, равного заданному температурному удлинению напрягаемых элементов, соответствующему заданной величине предварительного напряжения, вместе с тем достигнув максимального заданного перемещения подвижный силовой упор механически включает электрический ограничитель – ключник, отключающий одновременно как дальнейший нагрев напрягаемых элементов, так и ход подвижного силового упора, который в данный момент выполняют неподвижным, далее систему нагрева отключают, напрягаемые элементы охлаждают до нормальной температуры и создают в них заданное предварительное напряжение, после чего кожуха-оболочки снимают с напрягаемых элементов для их дальнейшего многократного использования, а полученные уже напряженные элементы применяют далее в предварительно напряженных строительных конструкциях.

2. Устройство для осуществления термического способа натяжения напрягаемых элементов предварительно напряженных строительных конструкций, включающее установку по нагреву напрягаемых элементов заданной длины с анкерами на концах и силовую форму с двумя неподвижными силовыми упорами, которые содержат пазы для установки в них напрягаемых элементов после их нагрева, отличающееся тем, что оно имеет монтажный участок, на котором расположены на определенном расстоянии между собой два неподвижных силовых упора – первый, и второй, и находящийся за вторым подвижный силовой упор, где между вторым неподвижным и подвижным силовыми упорами установлено закрепленное к ним механическое устройство для перемещения подвижного силового упора, максимальный ход которого ограничен закрепленным на монтажном участке электрическим ключником, причем все силовые упоры содержат пазы, в которых размещены напрягаемые элементы заданной длины с анкерами на концах, закрепленные за первым неподвижным и подвижным силовыми упорами, при этом напрягаемые элементы снабжены одетыми на них по длине между неподвижными силовыми упорами теплоизоляционными термостойкими съемными кожухами-оболочками, которые содержат внутри замкнутое пространство для нагрева напрягаемых элементов до заданной температуры Т°С=350-400°С.

РИСУНКИ

Categories: BD_2396000-2396999