|
|
(21), (22) Заявка: 2008140190/09, 09.10.2008
(24) Дата начала отсчета срока действия патента:
09.10.2008
(46) Опубликовано: 10.05.2010
(56) Список документов, цитированных в отчете о поиске:
ТИХОМИРОВ П.М. Расчет трансформаторов. – М.: Энергия, 1976, с.186, рис.4-8. RU 2050610 С1, 20.12.1995. RU 2074435 С1, 27.02.1997. DE 3608390 А, 17.09.1987. ДЫМКОВ A.M. Трансформаторы напряжения. – М.-Л.: Гос.энергетическое издательство, 1963, с.66. САПОЖНИКОВ А.В. Конструирование трансформаторов. – М.-Л.: Гос.энергетическое издательство, 1959, с.84-85, рис.2-55.
Адрес для переписки:
620042, г.Екатеринбург, пр-кт Орджоникидзе, 25, кв.46, пат.пов. Е.И. Ждановских
|
(72) Автор(ы):
Иофина Ольга Анатольевна (RU), Пестряева Людмила Михайловна (RU), Лоханин Андрей Константинович (RU)
(73) Патентообладатель(и):
Иофина Ольга Анатольевна (RU), Пестряева Людмила Михайловна (RU)
|
(54) ТРЕХФАЗНЫЙ ТРАНСФОРМАТОР
(57) Реферат:
Изобретение относится к электротехнике, к трансформаторостроению и может найти применение в трехфазных трансформаторах, предназначенных для установки на подстанциях. Технический результат состоит в уменьшении уровня главной и межфазовой изоляции, а следовательно, уменьшении расхода материалов, а также сведении к минимуму потерь короткого замыкания и холостого хода. Трехфазный трансформатор содержит остов с, по крайней мере, тремя стержнями магнитопровода, на которых концентрически размещены обмотки высокого и низкого напряжения, и электропроводящие элементы. Обмотка высокого напряжения содержит, по крайней мере, одну часть по высоте и соединена в звезду, имеющую нейтраль. Каждая ее фаза имеет два конца, из которых первый конец линейный, а второй соединен с нейтралью. Обмотка высокого напряжения расположена ближайшей к стержню магнитопровода и выполнена, по крайней мере, с одним слоем. Линейный конец обмотки высокого напряжения расположен в, по крайней мере, одном горизонтальном канале, выполненном в обмотке низкого напряжения. Нейтраль соединена с магнитопроводом посредством, по крайней мере, одного электропроводящего элемента. Магнитопровод оперт на опорные изоляторы, нижние опорные металлические части которых заземлены. Кожух выполнен из металла и соединен с магнитопроводом посредством, по крайней мере, одного электропроводящего элемента. 3 з.п. ф-лы, 4 ил.
Изобретение относится к электротехнике, в частности к трансформаторостроению, и может найти применение в трехфазных трансформаторах, предназначенных для установки на подстанциях.
Известен высоковольтный трехфазный трансформатор, рассчитанный на класс напряжения 110 кВ и выше, содержащий обмотки, остов с, по крайней мере, тремя стержнями магнитопровода, на которых концентрически размещены обмотки высокого и низкого напряжения, и электропроводящие элементы, при этом обмотка высокого напряжения содержит, по крайней мере, одну часть по высоте и соединена в звезду, имеющую нейтраль, а каждая ее фаза имеет два конца, первый из которых линейный, а второй соединен с нейтралью, при этом ближайшей к стержню магнитопровода расположена обмотка низкого напряжения [1].
Недостатком описанной в [1] конструкции трехфазного трансформатора является необходимость высокого уровня главной изоляции (в частности, главного канала на каждой фазе и межфазового расстояния), приводящая к значительному расходу активных и конструкторских материалов, а также повышенным потерям короткого замыкания и холостого хода.
Изобретением решается задача создания трехфазного трансформатора, лишенного указанных выше недостатков, характеризующегося уменьшенным уровнем главной и межфазовой изоляции, а следовательно, незначительным расходом материалов, а также сведением к минимуму потерь короткого замыкания и холостого хода.
Для решения поставленной задачи в трехфазном трансформаторе, содержащем остов с, по крайней мере, тремя стержнями магнитопровода, на которых концентрически размещены обметки высокого и низкого напряжения, и электропроводящие элементы, при этом обмотка высокого напряжения содержит, по крайней мере, одну часть по высоте и соединена в звезду, имеющую нейтраль, а каждая ее фаза имеет два конца, из которых первый конец линейный, а второй соединен с нейтралью, предложено согласно настоящему изобретению обмотку высокого напряжения расположить ближайшей к стержню магнитопровода и выполнить ее, по крайней мере, содержащей один слой, линейный конец обмотки высокого напряжения расположить в, по крайней мере, одном горизонтальном канале, выполненном в обмотке низкого напряжения, а нейтраль соединить с магнитопроводом посредством, по крайней мере, одного электропроводящего элемента; при этом трехфазный трансформатор может содержать опорные изоляторы, на которые оперт магнитопровод, а нижние опорные металлические части опорных изоляторов заземлены; при этом трехфазный трансформатор может содержать кожух, выполненный из металла, соединенный с магнитопроводом посредством, по крайней мере, одного электропроводящего элемента.
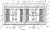
Изобретение поясняется на примере выполнения чертежами, на которых соответственно схематично изображены различные варианты реализации заявляемого трехфазного трансформатора, в частности: на фиг.1 представлен вариант выполнения трансформатора без защитного кожуха и без опорных изоляторов; на фиг.2 представлен вариант выполнения трансформатора без защитного кожуха, но с опорными изоляторами; на фиг.3 представлен вариант выполнения трехфазного трансформатора с кожухом, но без опорных изоляторов; на фиг.4 представлен вариант выполнения трехфазного трансформатора с кожухом и с опорными изоляторами.
Трехфазный трансформатор содержит остов 1 с тремя стержнями магнитопровода, соответственно: 2, 3, 4, на котором размещены обмотка высокого напряжения 5 и обмотка низкого напряжения 6, электропроводящий элемент 7.
Каждая фаза обмотки высокого напряжения выполнена из двух частей по высоте и содержит два конца: в частности, фаза «А» 8 обмотки 5 имеет первый линейный конец «А» 9 и второй конец «X» 10; фаза «В» 11 обмотки 5 имеет первый линейный конец «В» 12 и второй конец «Y» 13; фаза «С» 14 обмотки 5 имеет первый линейный конец «С» 15 и второй конец «Z» 16. Концы 10, 13 и 16 соединены с нейтралью 17, причем фазы обмотки высокого напряжения 8, 11 и 14 расположены ближайшими к стержням 2, 3, 4 остова (магнитопровода) 1, а концы 10, 13, 16 расположены в ближайших к стержню каналах 18, 19, 20 соответственно, а линейные концы 9, 12 и 15 в горизонтальных каналах 21, 22 и 23 соответственно, выполненных в обмотке низкого напряжения 6. Нейтраль 17 соединена с остовом (магнитопроводом) 1 при помощи электропроводящего элемента 7 (фиг.1).
Трехфазный трансформатор помимо перечисленных выше признаков, представленных на фиг.1, может содержать защитный кожух 24, соединенный с остовом (магнитопроводом) 1 при помощи электропроводящего элемента 25 (фиг.2).
Трехфазный трансформатор помимо перечисленных признаков, представленных на фиг.1, может содержать опорные изоляторы 26, на которые установлен и оперт остов (магнитопровод) 1 (фиг.3).
Кроме того, трехфазный трансформатор помимо признаков, перечисленных и представленных на фиг.3, может содержать защитный кожух 24, соединенный с остовом (магнитопроводом) 1 посредством электропроводящего элемента 25.
Во всех четырех вариантах реализации заявляемого решения, представленных на фиг.1-4, трехфазный трансформатор имеет следующие каналы в радиальном направлении: 18, 19, 20 – канал между магнитопроводом и обмоткой высокого напряжения; 27 – главный канал между обмоткой высокого напряжения и обмоткой низкого напряжения; 28 – канал между обмотками фазных фаз (межфазовое расстояние).
Если в известном по [1] трехфазном трансформаторе канал 28 должен быть рассчитан, например, на класс напряжения 110 кВ, то в заявляемом трехфазном трансформаторе может быть применена изоляция на класс напряжения не более чем на 35 кВ (в зависимости от класса напряжения обмотки низкого напряжения), а каналы 18, 19, 20 благодаря расположению витков, близких к нейтрали, также подвергаются малым воздействующим напряжениям.
Следовательно, благодаря заявляемой конструкции трехфазного трансформатора, предусматривающей расположение обмотки высокого напряжения ближайшей к стержню магитопровода и расположение линейного конца в горизонтальном канале, выполненном в обмотке низкого напряжения, и соединение нейтрали с магнитопроводом посредством электропроводящего элемента, изоляционные промежутки 18, 19, 20 и 28 могут быть выполнены значительно меньшими, чем в известном по [1] трехфазном трансформаторе, так как размеры воздействующих напряжений в рабочих режимах и при испытаниях уменьшены. Это позволяет уменьшить расходы на активные материалы (электротехническую сталь и провод обмоток) и сократить потери холостого хода и короткого замыкания.
В случае изолированной или эффективно заземленной нейтрали заявляемая конструкция трехфазного трансформатора может быть реализована только при установке магнитопровода на изоляторы 26.
Трехфазный трансформатор, помещенный в защитный кожух, имеет аналогичные преимущества.
В соответствии с заявляемым решением на одном из предприятий г.Екатеринбурга разработана техническая документация на один из типов трехфазного трансформатора.
Благодаря существенным преимуществам по сравнению с известными аналогичными трехфазными трансформаторами заявляемый трансформатор имеет широкие возможности его практического применения в будущем.
Литература
1. Тихомиров П.М. Расчет трансформаторов. М.: Энергия, 1976 г., с.186, рис.4-8.
Формула изобретения
1. Трехфазный трансформатор, содержащий остов с, по крайней мере, тремя стержнями магнитопровода, на которых концентрически размещены обмотки высокого и низкого напряжения, и электропроводящие элементы, при этом обмотка высокого напряжения содержит, по крайней мере, одну часть по высоте и соединена в звезду, имеющую нейтраль, а каждая ее фаза имеет два конца, из которых первый конец – линейный, а второй соединен с нейтралью, отличающийся тем, что обмотка высокого напряжения расположена ближайшей к стержню магнитопровода и содержит, по крайней мере, один слой, при этом линейный конец обмотки высокого напряжения расположен в, по крайней мере, одном горизонтальном канале, выполненном в обмотке низкого напряжения, при этом нейтраль соединена с магнитопроводом посредством, по крайней мере, одного электропроводящего элемента.
2. Трехфазный трансформатор по п.1, отличающийся тем, что он содержит опорные изоляторы, на которые оперт магнитопровод, при этом нижние опорные металлические части опорных изоляторов заземлены.
3. Трехфазный трансформатор по п.1, отличающийся тем, что он содержит кожух, выполненный из металла, соединенный с магнитопроводом посредством, по крайней мере, одного электропроводящего элемента.
4. Трехфазный трансформатор по п.2, отличающийся тем, что он содержит кожух, выполненный из металла, соединенный с магнитопроводом посредством, по крайней мере, одного электропроводящего элемента.
РИСУНКИ
|
|