|
|
(21), (22) Заявка: 2007139471/03, 25.10.2007
(24) Дата начала отсчета срока действия патента:
25.10.2007
(46) Опубликовано: 27.03.2009
(56) Список документов, цитированных в отчете о поиске:
RU 47918 U1, 10.09.2005. RU 2065196 С1, 10.08.1996. US 5957153 А, 28.09.1999. WO 86/05534 А1, 25.09.1986.
Адрес для переписки:
125362, Москва, ул. Вишневая, 7, ОАО “ММП им. В.В. Чернышева”, Начальнику БРИЗ Ю.И. Кленову
|
(72) Автор(ы):
Шелгунов Валерий Иванович (RU), Пайкин Александр Григорьевич (RU), Жуков Пётр Герасимович (RU), Клёнов Юрий Иванович (RU), Кадыров Александр Батуевич (RU), Серёгин Юрий Николаевич (RU), Агеев Григорий Иванович (RU), Лысенко Нина Николаевна (RU)
(73) Патентообладатель(и):
Открытое акционерное общество “Московское машиностроительное предприятие им. В.В. Чернышева” (RU)
|
(54) УСТРОЙСТВО ДЛЯ ПОДАЧИ ВОДЫ В ПРОМЫШЛЕННЫЙ ВОДОПРОВОД
(57) Реферат:
Изобретение относится к области водоснабжения. Устройство для подачи воды в промышленный водопровод содержит систему трубопроводов, соединенную с насосами, жестко закрепленными на электродвигателях, подключенных к электрической системе пуска и останова при помощи бесконтактной системы управления. При этом бесконтактная система управления выполнена в виде тиристорных преобразователей частоты вращения электродвигателей, включенных в электрическую систему пуска и останова их. Система трубопроводов снабжена датчиками давления и расхода воды, связанными с тиристорными преобразователями частоты вращения электродвигателей при помощи задатчика ручного управления, установленного на отдельном управляющем щите. Технический результат заключается в экономии электроэнергии. 1 ил.
Изобретение относится к системам водоснабжения, а именно к устройствам для подачи воды в промышленный водопровод, и может быть использовано на предприятиях различных отраслей промышленности.
Известна насосная станция для подачи воды в промышленный водопровод, содержащая систему трубопроводов, связанную с насосами, приводимыми в работу электродвигателями, подключенными к электрической системе пуска и останова их при помощи контактно-релейной связи [1].
Данное устройство является наиболее близким к изобретению по технической сущности и достигаемому результату и принято заявителем в качестве прототипа.
Недостатком известного устройства является то, что оно не обеспечивает автоматического регулирования частоты вращения электродвигателей в зависимости от давления и расхода воды в сетях водопровода, что приводит к значительному перерасходу электроэнергии, выходу из строя электродвигателей, а также к гидравлическим ударам в сетях водопровода за счет резких изменений расхода воды в течение суточного времени работы системы промышленного водоснабжения.
Техническим результатом данного изобретения является экономия электроэнергии, потребляемой электродвигателями за счет изменения частоты вращения их в зависимости от давления и расхода воды в трубопроводах, а также отсутствие гидравлических ударов в трубопроводах за счет плавности пуска и останова электродвигателей, что приводит к надежной работе электродвигателей и длительности эксплуатации всей системы промышленного водоснабжения.
Технический результат предлагаемого изобретения достигается тем, что в устройстве для подачи воды в промышленный водопровод, содержащем систему трубопроводов, соединенную с насосами, жестко закрепленными на электродвигателях, подключенных к электрической системе пуска и останова их при помощи бесконтактной системы управления электродвигателями насосов, бесконтактная система управления выполнена в виде тиристорных преобразователей частоты вращения электродвигателей, включенных в электрическую систему пуска и останова их, а система трубопроводов снабжена датчиками давления и расхода воды, связанными с тиристорными преобразователями частоты вращения электродвигателей при помощи задатчика ручного управления, установленного за пределами преобразователя на отдельном управляющем щите.
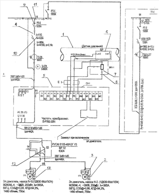
Сущность данного изобретения поясняется чертежами, где на чертеже изображен общий вид устройства для подачи воды в промышленный водопровод (схема электрического подключения электродвигателей и насосов).
Устройство для подачи воды в промышленный водопровод содержит систему трубопроводов 1, соединенную с насосом 2, жестко закрепленным на электродвигателе 3. Электродвигатель 3 подключен к электрической системе 4 пуска и останова их при помощи тиристорного преобразователя (СУ-1)-5 частоты вращения электродвигателя. Система трубопроводов 1 снабжена датчиком (SP)-6 давления и расхода воды, связанным с тиристорным преобразователем 5 частоты вращения электродвигателя 3 при помощи задатчика 7 ручного управления (ЗРУ-1), установленного за пределами преобразователя 5 на отдельном управляющем щите 8.
Устройство оборудовано рубильником (РП-5)-9, автоматом (А4143)-10 фидера (14)-11 и переключателем (QS)-12. Для надежной и безотказной работы устройства предусмотрен дублирующий, резервный, насос 13 с электродвигателем 14.
Устройство для подачи воды в промышленный водопровод работает следующем образом.
Включается электропитание на станции управления тиристорного преобразователя 5 включением рубильника 9 и автомата 10 фидера 11 вводного щита. Выбираем нужный насос 2 или 13 (рабочий или резервный) переключателем 12. 3адатчиком ручного управления 7 задаем нужное давление 6 атм. На пульте управления в тиристорном преобразователе 5, расположенном на лицевой стороне, устанавливается время пуска электродвигателя 3, равное – 30 сек. Далее нажимаем кнопку «пуск», на пульте загорается красная лампа, после чего происходит плавный пуск электродвигателя 3 насосом 2. В системе поддерживается заданное давление. В зависимости от расхода воды меняется загрузка электродвигателя. Поскольку в течение суток расход воды резко меняется, то происходит изменение мощности и расхода энергии. Насос работает круглосуточно. По завершении работы нажатием кнопки «стоп» со станции управления электродвигатель 3 с насосом 2 плавно останавливаются.
Использование данного изобретения позволит значительно сэкономить электроэнергию, потребляемую электродвигателями, исключить гидравлические удары в трубопроводах за счет плавности пуска и остановки электродвигателей, а также повысить надежность и длительность эксплуатации всей системы промышленного водоснабжения.
Источники информации
1. Чертеж ЭС-5696, 1980 г. – прототип.
Формула изобретения
Устройство для подачи воды в промышленный водопровод, содержащее систему трубопроводов, соединенную с насосами, жестко закрепленными на электродвигателях, подключенных к электрической системе пуска и останова их при помощи бесконтактной системы управления, отличающееся тем, что в устройстве бесконтактная система управления выполнена в виде тиристорных преобразователей частоты вращения электродвигателей, включенных в электрическую систему пуска и останова их, а система трубопроводов снабжена датчиками давления и расхода воды, связанными с тиристорными преобразователями частоты вращения электродвигателей при помощи задатчика ручного управления, установленного на отдельном управляющем щите.
РИСУНКИ
|
|