|
|
(21), (22) Заявка: 2007122011/11, 13.06.2007
(24) Дата начала отсчета срока действия патента:
13.06.2007
(46) Опубликовано: 20.03.2009
(56) Список документов, цитированных в отчете о поиске:
RU 2273586 C1, 10.04.2006. RU 2243918 C2, 26.02.2002. RU 2236972 C2, 27.09.2004. SU 785797 A1, 27.12.1980.
Адрес для переписки:
443066, г.Самара, 1-й Безымянный пер., 18, СамГУПС, патентный отдел
|
(72) Автор(ы):
Полевой Юрий Иосифович (RU), Полевая Людмила Владимировна (RU), Аграфенин Денис Владимирович (RU)
(73) Патентообладатель(и):
Государственное образовательное учреждение высшего профессионального образования “Самарский государственный университет путей сообщения” (СамГУПС) (RU)
|
(54) СПОСОБ ПЕРЕДАЧИ ИНФОРМАЦИИ НА ПОДВИЖНОЙ СОСТАВ И УСТРОЙСТВО ДЛЯ ЕГО ОСУЩЕСТВЛЕНИЯ
(57) Реферат:
Изобретение относится к железнодорожной технике, а именно к железнодорожной автоматике и телемеханике для интервального регулирования движения поездов. Способ передачи информации на подвижной состав заключается в трансляции кодовых импульсов в рельсовые цепи с момента их занятия, причем предусмотрена задержка возбуждения индивидуальных кодово-включающих реле, при которой трансляция первого кодового цикла КЖ, Ж, 3 в рельсовые цепи начинается с длинного интервала. Устройство передачи информации на подвижной состав содержит схему включения группового кодово-включающего реле, схему включения кодово-путевого трансмиттера, схему включения индивидуальных кодово-включающих реле, которая содержит обмотки кодово-включающих реле, контакты стрелочно-путевых и путевых реле, а также контакты группового кодово-включающих реле, схему подключения приборов кодирования к рельсовой линии, которая содержит прямой полюс источника питания переменного напряжения, контакты группового трансмиттерного реле и контакты индивидуальных кодово-включающих реле. Устройство дополнительно снабжено видоизмененными схемами подключения приборов кодирования к рельсовой линии и включения индивидуальных кодово-включающих реле и схемой задержки, которая содержит обмотку медленно действующего обратного повторителя группового трансмиттерного реле, первый тыловой контакт группового трансмиттерного реле, ограничивающий резистор, полюса источника питания переменного напряжения. Техническим результатом изобретения является повышение надежности передачи информации. 2 н.п. ф-лы, 2 ил.
Изобретение относится к области железнодорожной автоматики и телемеханики, в частности к автоматической локомотивной сигнализации (АЛС).
Известен способ передачи информации на подвижной состав [Казаков А.А., Казаков Е.А. Автоблокировка, локомотивная сигнализация и автостопы. – М.: Транспорт, 1980, 360 стр.], (стр.29-30, рис.11, а) посредством кодово-путевого трансмиттера с непрерывно включенным мотором.
Недостаток известного способа состоит в том, что при следовании по коротким рельсовым цепям наблюдаются сбои в работе автоматической локомотивной сигнализации (АЛС).
Наиболее близкой по технической сущности к заявляемому способу и устройству является выбранная в качестве прототипа способа и устройства схема, работа которой основана на трансляции кодовых импульсов в рельсовую цепь с момента ее занятия (с момента размыкания фронтового контакта путевого реле). Схема содержит кодово-путевой трансмиттер (КПТ) (в данном примере два КПТ: КТ и КТК), трансмиттерное реле НГТ, контактом которого с участием контактов путевых реле (НАП, 1-5СП, 11СП…) в (станционные) рельсовые цепи транслируются импульсы кодового тока. Выбор кодов (КЖ, Ж, З) осуществляется контактами сигнальных реле (H1С, Н1ЛС) [Казаков А.А., Казаков Е.А. Автоблокировка, локомотивная сигнализация и автостопы. – М.: Транспорт, 1980, 360 стр.], (стр.267-270, рис.91).
Недостаток известных способа и устройства состоит в том, что при следовании по коротким рельсовым цепям наблюдаются сбои в работе АЛС.
Техническим результатом, на достижение которого направлено данное изобретение, является повышение надежности передачи информации за счет исключения сбоев в работе АЛС при движении подвижной единицы по коротким рельсовым цепям.
Технический результат достигается тем, что в способе передачи информации на подвижной состав, заключающемся в трансляции кодовых импульсов в рельсовые цепи с моменты их занятия, предусмотрена задержка возбуждения индивидуальных кодово-включающих реле, при которой трансляция первого кодового цикла (КЖ, Ж, З) в рельсовые цепи начинается с длинного интервала.
Технический результат достигается также тем, что устройство передачи информации на подвижной состав, содержащее схему включения группового кодово-включающего реле, схему включения КПТ, схему включения индивидуальных кодово-включающих реле, которая содержит обмотки кодово-включающих реле, контакты стрелочно-путевых и путевых реле, а также контакты группового кодово-включающих реле, схему подключения приборов кодирования к рельсовой линии, которая содержит прямой полюс источника питания переменного напряжения, контакты группового трансмиттерного реле и контакты индивидуальных кодово-включающих реле, дополнительно снабжено видоизмененными схемами подключения приборов кодирования к рельсовой линии и включения индивидуальных кодово-включающих реле и схемой задержки, которая содержит обмотку медленно действующего обратного повторителя группового трансмиттерного реле, первый тыловой контакт группового трансмиттерного реле, ограничивающий резистор, полюса источника питания переменного напряжения, причем к прямому полюсу источника питания переменного напряжения подсоединен первый общий контакт группового трансмиттерного реле, к тыловому контакту которого подсоединен первый вывод обмотки медленно действующего обратного повторителя группового трансмиттерного реле, второй вывод которой через ограничивающий резистор соединен с обратным полюсом источника питания переменного напряжения, элементы схемы включения индивидуальных кодово-включающих реле соединены следующим образом: плюсовой полюс источника питания соединен с общим контактом путевого реле приемоотправочного пути, фронтовой контакт которого соединен с общим контактом группового трансмиттерного реле, фронтовой контакт которого соединен с общим контактом медленно действующего обратного повторителя группового трансмиттерного реле и первым полюсом блокировочного резистора, второй полюс которого соединен с тыловым контактом медленно действующего обратного повторителя группового трансмиттерного реле и общим контактом путевого реле второго стрелочного участка, тыловой контакт которого соединен с первым выводом обмотки второго кодово-включающего реле, а фронтовой – с общим контактом путевого реле первого стрелочного участка, тыловой контакт которого соединен с первым выводом обмотки кодово-включающего реле первого стрелочного участка, а фронтовой – с общим контактом путевого реле бесстрелочного участка, тыловой контакт которого соединен с первым выводом обмотки кодово-включающего реле бесстрелочного участка, вторые выводы обмоток всех индивидуальных кодово-включающих реле соединены с минусовым полюсом источника питания, элементы схемы подключения приборов кодирования рельсовой линии соединены следующим образом: прямой полюс источника питания соединен со вторым общим контактом группового трансмиттерного реле, фронтовой контакт которого соединен с фронтовыми контактами второго кодово-включающего реле и кодово-включающего реле бесстрелочного участка, фронтовой контакт первого тройника кодово-включающего реле соединен с фронтовым контактом первого кодово-включающего реле, общие контакты всех кодово-включающих реле включены так, что через них осуществляется кодирование путевых участков, участвующих в маршруте приема на главный путь.
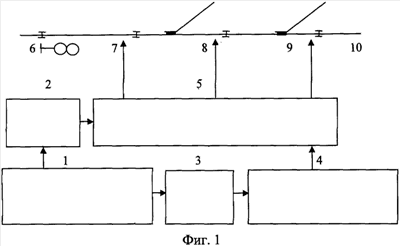
На фиг.1 представлена структурная схема кодирования рельсовых цепей в маршруте приема, на фиг.2 представлена схема кодирования рельсовых цепей в маршруте приема.
На фиг.1 изображены узлы: схема включения группового кодово-включающего реле 1, схема включения КПТ 2, схема задержки 3, схема включения индивидуальных кодово-включающих реле 4, схема подключения приборов кодирования рельсовой линии 5, входной светофор 6, бесстрелочный участок 7, первый и второй стрелочные участки 8 и 9 соответственно, приемоотправочный путь 10. На фиг.2, кроме того, изображены контакты кодово-включающих реле бесстрелочного, первого и второго стрелочных участков 11, 12 и 13 соответственно, первый и второй тройники главного трансмиттерного реле 14 и 15 соответственно, прямой 16 и обратный 17 полюса источника напряжения переменного тока (220 V, 50 Гц), ограничивающий резистор 18, медленно действующий обратный повторитель группового трансмиттерного реле 19, плюсовой 20 и минусовой 21 полюса источника питания постоянного напряжения (24 V), обмотки кодово-включающих реле бесстрелочного, первого и второго стрелочных участков 22, 23 и 24 соответственно, контакты путевых реле бесстрелочного, первого и второго стрелочных участков 25, 26 и 27 соответственно, контакт медленно действующего обратного повторителя группового трансмиттерного реле 28, блокировочный резистор 29, контакт главного кодово-включающего реле 30 и контакт путевого реле приемоотправочного пути 31.
Взаимодействие узлов структурной схемы на фиг.1 показано стрелками. С занятием участка приближения при открытом входном светофоре (см. прототип) узел 1 воздействует на схему включения КПТ (узлы 2) и схему задержки (узел 3), последняя обеспечивает включение индивидуальных кодово-включающих реле (узел 4), которые совместно с узлом 2 (КПТ и трансмиттерное реле) транслирует коды в рельсовые цепи (узел 5).
Схема кодирования станционных рельсовых цепей приведена на фиг.2. Элементы схемы соединены следующим образом. К полюсу 16 источника напряжения переменного напряжения подсоединены общие контакты группового кодово-включающего реле 14 и 15, к фронтовому контакту последнего из которых подсоединены фронтовые контакты индивидуальных кодово-включающих реле 11 и 13, к фронтовому контакту 14 – фронтовой контакт индивидуального кодово-включающего реле 12, общие контакты индивидуальных кодово-включающих реле 11, 12 и 13 образуют цепь кодирования участков 7, 8 и 9 соответственно. К тыловому контакту 14 подсоединен первый вывод обмотки реле 19, второй вывод которой через резистор 18 соединен с полюсом 17. К полюсу 20 через последовательно соединенные фронтовые контакты 31 и 30 подсоединены общий контакт 28 и первый полюс резистора 29, второй полюс которого соединен с тыловым контактом 28 и общим 27, тыловой контакт которого соединен с первым выводом обмотки реле 24, а фронтовой – с общим контактом 26, тыловой контакт которого соединен с первым выводом обмотки реле 23, а фронтовой – с общим контактом 25, тыловой контакт которого соединен с первым выводом обмотки реле 22, вторые выводы обмоток реле 22, 23 и 24 соединены с полюсом 21 (схемы узлов 1 и 2 полностью совпадают с прототипом, в пояснениях не нуждаются и в формуле изобретения не заявляются).
Сущность предлагаемого способа (фиг.1) состоит в том, что после включения группового кодово-включающего реле (узел 1) через схему задержки (узел 2) осуществляется воздействие на индивидуальные кодово-включающие реле (узел 4), которые совместно с КПТ (узел 2) образуют схему кодирования рельсовых цепей (узел 5). Благодаря узлу задержки 3 кодирование рельсовых цепей 7, 8 и 9 начинается не с момента их занятия, а с выдержкой времени, которая равна или превышает интервал времени от момента занятия до истечения длинного интервала кодового цикла. Это приводит к тому, что первый кодовый цикл из каждой рельсовой цепи будет восприниматься локомотивными устройствами при обесточенном состоянии всех счетчиков дешифратора. Поэтому сократится количество искаженных кодовых циклов АЛС с трех (максимум) до одного, двух (максимум).
Действие устройства (фиг.2) заключается в том, что с возбуждением группового кодово-включающего реле (узел 1) контактом 30 и обесточиванием путевого реле контактом 25 (26, 26) подготавливается цепь индивидуального кодово-включающего реле 22 (23, 24). Возбуждение этого реле не происходит, т.к. сопротивление резистора 29 подобрано так, что ток обмотки индивидуального кодово-включающего реле 22 (23, 24) ниже надежного несрабатывания, но выше надежного неотпадания. После замыкания тылового контакта 28 образуется цепь возбуждения реле 22 (23, 24). Реле 19 имеет замедление за счет медной гильзы, которое на 5% меньше большего интервала кода КЖ или 3 (КПТШ515 – 0,57), т.е. составляет около 0,54 с. При этом реле 19 обесточивается в длинном интервале любого кодового цикла. После замыкания контакта 28 образуется цепь реле 22 (23, 24) и начинается кодирование рельсовой цепи 7 (8, 9). Кодовые импульсы подаются в рельсовые цепи после интервала времени, который продолжается в течение времени, достаточного для обесточивания всех счетчиков локомотивного дешифратора АЛС.
Предложенный способ и устройство позволят в значительной мере сократить количество сбоев в работе АЛС при следовании по коротким станционным рельсовым цепям, тем самым повысить надежность передачи информации на подвижной состав.
Формула изобретения
1. Способ передачи информации на подвижной состав, заключающийся в трансляции кодовых импульсов в рельсовые цепи с момента их занятия, отличающийся тем, что предусмотрена задержка возбуждения индивидуальных кодово-включающих реле, при которой трансляция первого кодового цикла КЖ, Ж, З в рельсовые цепи начинается с длинного интервала.
2. Устройство передачи информации на подвижной состав, содержащее схему включения группового кодово-включающего реле, схему включения кодово-путевого трансмиттера, схему включения индивидуальных кодово-включающих реле, которая содержит обмотки кодово-включающих реле, контакты стрелочно-путевых и путевых реле, а также контакты группового кодово-включающего реле, схему подключения приборов кодирования к рельсовой линии, которая содержит прямой полюс источника питания переменного напряжения, контакты группового трансмиттерного реле и контакты индивидуальных кодово-включающих реле, отличающееся тем, что оно дополнительно снабжено видоизмененными схемами подключения приборов кодирования к рельсовой линии и включения индивидуальных кодово-включающих реле и схемой задержки, которая содержит обмотку медленно действующего обратного повторителя группового трансмиттерного реле, первый тыловой контакт группового трансмиттерного реле, ограничивающий резистор, полюса источника питания переменного напряжения, причем к прямому полюсу источника питания переменного напряжения подсоединен первый общий контакт группового трансмиттерного реле, фронтовой контакт которого соединен с фронтовым контактом кодово-включающего реле первого стрелочного участка, а к тыловому контакту группового трансмиттерного реле подсоединен первый вывод обмотки медленно действующего обратного повторителя группового трансмиттерного реле, второй вывод которой через ограничивающий резистор соединен с обратным полюсом источника питания переменного напряжения, элементы схемы включения индивидуальных кодово-включающих реле соединены следующим образом: плюсовой полюс источника питания соединен с общим контактом путевого реле приемоотправочного пути, фронтовой контакт которого соединен с фронтовым контактом группового кодово-включающего реле, фронтовой контакт которого соединен с общим контактом медленно действующего обратного повторителя группового трансмиттерного реле и первым полюсом блокировочного резистора, второй полюс которого соединен с тыловым контактом медленно действующего обратного повторителя группового трансмиттерного реле и общим контактом путевого реле второго стрелочного участка, тыловой контакт которого соединен с первым выводом обмотки кодово-включающего реле второго стрелочного участка, а фронтовой – с общим контактом путевого реле первого стрелочного участка, тыловой контакт которого соединен с первым выводом обмотки кодово-включающего реле первого стрелочного участка, а фронтовой – с общим контактом путевого реле бесстрелочного участка, тыловой контакт которого соединен с первым выводом обмотки кодово-включающего реле бесстрелочного участка, вторые выводы обмоток всех индивидуальных кодово-включающих реле соединены с минусовым полюсом источника питания, элементы схемы подключения приборов кодирования рельсовой линии соединены следующим образом: прямой полюс источника питания соединен со вторым общим контактом группового трансмиттерного реле, фронтовой контакт которого соединен с фронтовыми контактами кодово-включающего реле второго стрелочного участка и кодово-включающего реле бесстрелочного участка, общие контакты всех кодово-включающих реле включены так, что через них осуществляется кодирование путевых участков, участвующих в маршруте приема на главный путь.
РИСУНКИ
|
|