|
|
(21), (22) Заявка: 2006134671/02, 29.09.2006
(24) Дата начала отсчета срока действия патента:
29.09.2006
(43) Дата публикации заявки: 10.04.2008
(46) Опубликовано: 20.09.2008
(56) Список документов, цитированных в отчете о поиске:
SU 11562040 А1, 07.05.1990. SU 662390 А, 15.05.1979. RU 2108179 С1, 10.04.1998. GB 1278695 А, 07.07.1969.
Адрес для переписки:
630051, г.Новосибирск, ул. Ползунова, 21, а/я 25, ЗАО “Компания “Росгидропром”, Генеральному директору С.И.Кириллову
|
(72) Автор(ы):
Кириллов Сергей Иванович (RU)
(73) Патентообладатель(и):
Закрытое Акционерное Общество “Компания “Росгидропром” (RU)
|
(54) УСТРОЙСТВО ДЛЯ ПРАВКИ КУЗОВОВ И РАМ ТРАНСПОРТНЫХ СРЕДСТВ
(57) Реферат:
Изобретение относится к обработке металла давлением, а именно к устройствам для правки кузовов и рам транспортных средств. Устройство выполнено в виде стационарного перевернутого портала и из двух рядов силовых колонн, наверху которых смонтированы подкрановые балки для перемещения силового моста вдоль портала. Силовой мост передвигается вертикально, по колоннам выполнены направляющие для перемещения боковых силовых балок. Правка кузова производится приспособлениями, находящимися на силовом мосту и боковых силовых балках. Расширяются технологические возможности. 5 з.п. ф-лы, 3 ил.
Изобретение относится к обработке металла давлением, а именно к устройствам для правки кузовов и рам транспортных средств.
Известные устройства вышеуказанного назначения, описанные как в технической, так и в патентной литературе, предназначены либо для правки только кузовов, либо для правки рам транспортных средств.
Так, известен передвижной стенд для ремонта крытых вагонов (см. SU №1183230, В21D 1/14, В60S 5/00, 07.10.85 г.), содержащий портал, на поперечной балке которого расположен маятник для крепления инструмента и снабжен втулкой, установленной на поперечной балке с возможностью ее поворота, также маятник снабжен средством изменения его длины и установлен на втулке с возможностью перемещения вдоль ее оси, при этом концентрично втулке расположена пружина кручения, таким образом, исправление деформации стенки вагона осуществляется при помощи механической энергии, возникающей при закручивании пружины и используемой при ударе бойка на маятнике по деформируемой стенке. Таким образом, стенд предназначен только для ремонта крытых вагонов, поскольку передвижной, требует энергозатрат на его передвижение, трудно достичь хорошего качества ремонтных работ за счет местного приложения силы.
Известно приспособление для правки рам автомобилей (см. JP пат. №2002-301518, В21D 1/14, В60S 5/00, 15.10.2002 г.), работающее методом растягивания и сжатия с помощью гидроцилиндров в горизонтальной плоскости и предназначено только для правки рам.
Известно устройство для правки кузовов транспортных средств (см. SU №1562040, В21D 1/12, 07.05.90 г.), содержащее подвижный портал, платформу с возможностью вертикального перемещения, установленный на ней мост с возможностью перемещения вдоль нее и тележку, расположенную на мосту и имеющую возможность перемещаться перпендикулярно мосту с механизмом вертикального перемещения приспособления с гидроприводом. Принято за прототип, поскольку имеет некоторые одинаковые элементы конструкции (портал, передвигающийся вдоль него мост) и сходное в некотором отношении (правка кузовов) функциональное назначение.
К причинам, препятствующим достижению указанного ниже технического результата при использовании известного устройства, принятого за прототип, относится то, что:
– устройство предназначено для правки только кузовов, преимущественно грузовых вагонов;
– подвижный портал не обеспечивает жесткость устройства, что не позволяет применять усилие снизу вверх для правки рамы вагона;
– недостаточное качество исправления дефектов.
Сущность предлагаемого изобретения заключается в следующем. Задачами изобретения являются:
– создание универсального устройства для правки без разборки транспортного средства по частям, как кузовов, так и рам транспортных средств;
– проведение более качественного исправления дефектов кузовов и рам транспортных средств.
Технический результат – создано универсальное устройство для правки кузовов и рам транспортных средств, имеющее: стационарный портал, силовой пол, позволяющий применять усилие от минимальных до максимальных значений для правки снизу вверх; применение балок из набора швеллеров, а также работа гидравлики в противофазе позволяют выполнить правку поверхностей транспортных средств на более высоком качественном уровне.
Указанный технический результат достигается тем, что в прелагаемом устройстве для правки кузовов и рам транспортных средств, содержащем портал, на котором установлен мост с возможностью перемещения вдоль него, механизм вертикального перемещения, имеются следующие особенности:
– портал выполнен стационарным, имеет вид перевернутого и состоит из силового пола и двух рядов силовых колон, на верху которых смонтированы подкрановые балки, по которым вдоль портала перемещаются силовые мосты, а по колоннам смонтированы направляющие для перемещения боковых силовых балок и боковые опоры для них;
– силовой пол представляет силовую раму, выполненную на нулевом уровне, в которую смонтированы рельсовый путь по всей длине стенда с передвигающимися по нему тележками, ставлюги и двухсторонние силовые шины из сдвоенных рельсов, в пазах которых крепятся прижимные тяги;
– тележки выполнены в виде балок из пакетов швеллеров, поставленных на колеса, а на балках смонтированы перемещающиеся вдоль них на роликовых опорах каретки, на последних в подпружиненных втулках, в одном случае вставлены винтовые опоры, а в другом – гидроцилиндры;
– силовой мост включает в себя балку, имеющую порталы с закрепленным на них монорельсом и перемещающуюся по рельсовому пути, на которой смонтирована силовая траверса со строповочными устройствами, с возможностью вертикального перемещения при помощи гидроподъемника и фиксации ее шкворнями в заданном положении, с закрепленными на ней горизонтальными и вертикальными приспособлениями для правки, при работе которых силовой мост фиксируют в вертикальном и горизонтальном направлениях зажимающими приспособлениями на рельсовых путях.
– боковая силовая балка выполнена с возможностью продольного перемещения по направляющим колонн и состоит из пакета швеллеров, по которым по вертикали перемещается каретка на роликах, во втулку которой установлено приспособление для правки, при этом каретка оснащена контргрузом.
– в виде приспособлений для правки и зажимающих приспособлений для фиксации силового моста используют гидроцилиндры;
Таким образом, выполнение портала стационарным позволило сделать его более жестким; выполнение его перевернутым позволило в виде поперечины применить силовой пол, техническое исполнение которого дает возможность приложения усилия в вертикальной плоскости от пола, править раму транспорта без полной его разборки (на известных устройствах для цельнометаллических – необходимо применение резки), при помощи двигающейся по рельсовому пути тележки с гидроцилиндрами правят хребтовую балку. Прижимные тяги, закрепленные в силовых шинах, служат для придания жесткости в паре «устройство для правки и транспортное (исправляемое) устройство». Таким образом, силовой пол позволяет применять увеличение нагрузок во всех плоскостях, что дает возможность исправлять устройства различных габаритов и с различными размерами по толщине металла, из которого выполнены устройства.
Перемещение вдоль портала силового моста по рельсам подкрановых балок на верху силовых колонн портала позволяет проводить монтажные работы, такие как, например, снятие люков, откидных панелей и т.д., с помощью тельфера. Силовая траверса, смонтированная на балке с возможностью вертикального перемещения с помощью гидроподъемника, позволяет за счет строп перемещать транспортное устройство, например, при демонтаже транспортной тележки и перемещении на ставлюги силового пола, кроме того, передвигать закрепленные на ней приспособления для правки, предназначенные для работы внутри кузова.
Боковая силовая тележка движется вдоль портала по направляющим, выполненным на силовых колоннах, и снабжена приспособлением для правки, создающим усилия снаружи кузова (по наружным стенкам).
Таким образом, исправление дефектов в противофазе позволяет выполнить более качественный косметический ремонт поверхностей транспортных средств.
Применение гидроцилиндров в виде приспособлений для правки, а также в виде зажимных приспособлений позволило унифицировать применение силовых средств в предлагаемом устройстве, а также выбрать более безопасные приспособления.
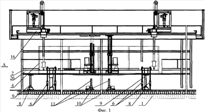
На чертежах представлено: на фиг.1 – устройство для правки кузовов и рам транспортных средств, общий вид, на фиг.2 – вид А фиг.1, на фиг.3 – вынос Б на фиг.2.
Сведения, подтверждающие возможность осуществления изобретения с получением вышеуказанного результата, заключаются в следующем: устройство для правки кузовов и рам транспортных средств (далее устройство), например железнодорожных вагонов (далее вагон), представляет собой стационарный портал, имеющий вид перевернутого, и состоит из силового пола 1 (см. фиг.1 и 2) и двух рядов силовых колонн 2.
При этом силовой пол 1 представляет забетонированную на нулевом уровне силовую раму, в которою смонтирован рельсовый путь 3 (см. фиг.1, 2, 3) для закатывания вагонов 4 и силовые шины 5 из спаренных рельсов, в пазы которых вставлены прижимные тяги 6, и закреплены в них вкладышами – гайками для крепления рамы вагона 4 к силовому полу 1. Так же на силовой раме закреплены ставлюги 7 для установки на них вагона 4. По рельсовому пути 3 передвигаются тележки: тележка 8 с двумя винтовыми опорами 9, используемая в виде опорного элемента вагона 4, и тележка 10 с двумя гидроцилиндрами 11, используемая при правке рам. Каждая тележка выполнена в виде балки 12 из пакетов швеллеров и поставлена на колеса 13, при этом вдоль балки 12 (поперек вагона) перемещаются каретки 14 на роликовых опорах, на которых в подпружиненные втулки вставлены либо винтовые опоры 9, либо гидроцилиндры 11.
Для перемещения вдоль портала на верху силовых колонн 2 смонтированы подкрановые балки 15 с рельсами для силового моста 16, который состоит из балки 17, имеющей порталы 18 с закрепленным на нем монорельсом 19, на балке 17 смонтирована силовая траверса 20 со строповочным устройством 21, которая перемещается вертикально при помощи гидроподъемника 22 и фиксируется в заданном положении шкворнями 23, на силовой траверсе 20 закреплены горизонтальные и вертикальные приспособления для правки 24, при работе которых силовой мост 16 фиксируют в вертикальном и горизонтальном направлениях зажимающими приспособлениями 25, при этом в качестве приспособлений для правки 24 и зажимных приспособлений 25 для фиксации используют гидроцилиндры. Также для перемещения вдоль портала на силовых колоннах 2 выполнены рельсовые направляющие 26 для боковых силовых балок 27, состоящих из пакета швеллеров, по ним вертикально перемещается каретка 28 на роликах, во втулку которой установлен гидроцилиндр 29, также каретка 28 имеет контргруз 30, при работе опирается на ролики и клиновые опоры (на фиг. не показано), выполненные на силовых колоннах 2.
Устройство работает следующим образом.
Вагон 4 закатывают по рельсовому пути 3 на силовой пол 1 устройства, при этом первую по ходу шкворневую балку рамы вагона 4 устанавливают напротив ставлюг 7, снимают с вагона 4 все съемные элементы (люки, откидные борта, панели пола и т.д.), используя, например, электротельферы, смонтированые на монорельсе 19, закрепленном на портале 18 балки 17 силового моста 16, который перемещается вдоль портала (следовательно, и вдоль вагона 4) по рельсам подкрановых балок 15, установленных на верху силовых колонн 2 устройства, затем при помощи силового моста 16, а именно строповочных устройств 21 силовой траверсы 20, смонтированной на балке 17, перемещающейся вертикально при помощи гидроподъемника 22, поднимают сначала переднюю часть вагона 4, затем – заднюю и фиксируют вагон 4 в заданном положении шкворнями 23, и выкатывают тележки из-под вагона 4.
При правке средней части рамы вагона 4 между шкворневыми балками закатывают спереди под вагон 4 заднюю тележку 8, в виде балки 12 из пакета швеллеров, поставленную на колеса 13, выполненную с двумя винтовыми опорами 9, и опускают на нее заднюю шкворневую балку рамы вагона 4, затем закатывают спереди под вагон 4 тележку 10 с двумя гидроцилиндрами 11, при этом гидроцилиндры 11 перемещаются поперек вагона 4.
При правке заднего конца рамы заднюю шкворневую балку ставят на переднюю тележку 8 с винтовыми опорами 9, а тележку 10 с гидроцилиндрами 11 ставят у задней части вагона 4.
Притягивают шкворневые балки рамы к силовому полу 1 с помощью прижимных тяг 6, которые вставляют в силовые шины 5 и закрепляют в них вкладышами-гайками, затем опускают во внутрь кузова вагона 4 траверсу 20 силового моста 16 при помощи гидроподъемника 22 и фиксируют шкворнями 23, при этом приспособления для правки (гидроцилиндры) 24 ставят в вертикальное положение. Далее, перемещая верхние и нижние гидроцилиндры вдоль вагона 4, устанавливают требуемую комбинацию сил для правки элементов рамы вагона 4, при этом силовой мост 16 фиксируют на рельсовом пути подкрановых балок 15 зажимными устройствами 25.
При правке кузова вагона 4 убирают фиксацию траверсы 20 и подключают горизонтальные приспособления 24 (гидроцилиндры) траверсы 20 силового моста 16. Перемещая вдоль и по высоте кузова гидроцилиндры 24 траверсы 20 силового моста 16 и гидроцилиндры 29, выполненные с контргрузом 30 (движущимся внутри балки 27) на каретках 28 с роликами для вертикального перемещения по боковым силовым балкам 27, передвигающимся вдоль вагона по рельсовым направляющим 26, устанавливают требуемую комбинацию сил для правки элементов кузова, при этом балка 27 опирается на ролики и клиновые опоры на силовых колоннах 2, а силовой мост 16 фиксируют на рельсовом пути зажимающими приспособлениями (гидроцилиндрами) 25.
Таким образом, вышеизложенные сведения свидетельствуют об использовании заявленного устройства при ремонте с достижением предусмотренного технического результата.
При этом изготовление вышеназванного устройства производится на известном оборудовании, по известным технологиям и не требует применения новых материалов, не известных до даты подачи заявки.
Следовательно, вышесказанное подтверждает возможность промышленного применения заявленного устройства.
Формула изобретения
1. Устройство для правки кузовов и рам транспортных средств, содержащее портал, установленный на нем с возможностью перемещения вдоль него силовой мост, приспособления для правки и механизм их вертикального перемещения, отличающееся тем, что портал выполнен стационарным, имеет вид перевернутого и состоит из силового пола, двух рядов силовых колонн, подкрановых балок для перемещения силового моста, смонтированных наверху упомянутых силовых колонн, боковых силовых балок, установленных с возможностью перемещения по направляющим, смонтированным на силовых колоннах, при этом силовые колонны имеют клиновые опоры под боковые силовые балки.
2. Устройство по п.1, отличающееся тем, что силовой пол представляет силовую раму, выполненную на нулевом уровне, на которой смонтированы рельсовый путь по всей длине стенда с передвигающимися по нему тележками, ставлюги и двухсторонние силовые шины из сдвоенных рельсов, в пазах которых крепятся прижимные тяги.
3. Устройство по п.2, отличающееся тем, что тележки выполнены в виде балок из пакетов швеллеров, поставленных на колеса, а на балках смонтированы перемещающиеся вдоль них на роликовых опорах каретки, на которых в подпружиненных втулках вставлены винтовые опоры или гидроцилиндры.
4. Устройство по п.1, отличающееся тем, что силовой мост включает в себя балку, имеющую порталы с закрепленным на них монорельсом и перемещающуюся по рельсовому пути, на которой смонтирована силовая траверса со строповочными устройствами с возможностью вертикального перемещения при помощи гидроподъемника и фиксации ее шкворнями в заданном положении, с закрепленными на ней горизонтальными и вертикальными приспособлениями для правки, обеспечивающими фиксацию силового моста в вертикальном и горизонтальном направлениях зажимающими приспособлениями на рельсовых путях.
5. Устройство по п.1, отличающееся тем, что боковая силовая балка выполнена с возможностью продольного перемещения по направляющим колонн и состоит из пакета швеллеров для перемещения по вертикали каретки на роликах, во втулку которой установлено приспособление для правки, при этом каретка оснащена контргрузом.
6. Устройство по любому из пп.4 и 5, отличающееся тем, что в виде приспособлений для правки и зажимающих приспособлений для фиксации силового моста используют гидроцилиндры.
РИСУНКИ
|
|