|
|
(21), (22) Заявка: 2006119390/11, 02.06.2006
(24) Дата начала отсчета срока действия патента:
02.06.2006
(46) Опубликовано: 27.02.2008
(56) Список документов, цитированных в отчете о поиске:
SU 757802 A, 23.08.1980. SU 903636 A1, 07.02.1982. US 6463740 B1, 15.10.2002. JP 63246560 A, 13.10.1988. US 5010991 A, 30.04.1991.
Адрес для переписки:
660049, г.Красноярск, пр. Мира, 90, ФГОУ ВПО КрасГАУ, патентоведу Т.А. Лобановой
|
(72) Автор(ы):
Селиванов Николай Иванович (RU), Кузнецов Александр Вадимович (RU), Кузьмин Николай Владимирович (RU)
(73) Патентообладатель(и):
Федеральное государственное образовательное учреждение высшего профессионального образования Красноярский Государственный Аграрный Университет (RU)
|
(54) АВТОМАТИЧЕСКОЕ УСТРОЙСТВО УПРАВЛЕНИЯ БЛОКИРОВКОЙ ГИДРОТРАНСФОРМАТОРА
(57) Реферат:
Изобретение относится к области транспортного машиностроения, а именно к системам управления блокировкой гидротрансформатора транспортных средств. Автоматическое устройство управления блокировкой гидротрансформатора содержит фрикционную муфту, установленную между насосным и турбинным валами и связанную с исполнительным цилиндром, который подключен к подпиточному насосу через распределитель с электромагнитным управлением. В электрической цепи упомянутого распределителя с электромагнитным управлением имеются подвижные контакты, которые управляются центробежными регуляторами, установленными на насосном и турбинном валах гидротрансформатора. Кроме этого автоматическое устройство управления блокировкой гидротрансформатора содержит устройство, реагирующее на изменение крутящего момента к установленное на валу привода насосного колеса. Это устройство состоит из разрезного вала, на торцах которого выполнены фланцы с клинообразными пазами, в которых размещены разжимные элементы, и двух корпусов с контактами, установленных на частях разрезного вала на радиально-упорных подшипниках. Корпуса сжаты пружинами с предварительным натягом. При этом в зависимости от крутящего момента и режима работы гидротрансформатора упомянутые контакты, установленные на частях разрезного вала, служат для подачи сигнала в электрическую цепь для обеспечения блокировки или разблокировки гидротрансформатора. Технический результат заключается в повышении эффективности функционирования силового агрегата на частичных режимах работы двигателя и повышении надежности разблокировки при плавном нарастании нагрузки. 1 ил.
Изобретение относится к области транспортного машиностроения, а именно к системам управления блокировкой гидротрансформатора транспортных средств.
Известны автоматические устройства управления блокировкой гидротрансформатора, содержащие установленную между насосным и турбинным валами фрикционную муфту, связанную с исполнительным цилиндром, подключенным к подпиточному насосу через распределитель с электромагнитным управлением, в электрической цепи которого установлены источник питания и выключатель, притом устройство содержит установленные на насосном и турбинном валах центробежные регуляторы, имеющие подвижные контакты, включенные в электрическую цепь распределителя, причем центробежный регулятор насосного вала снабжен демпфером [а.с. СССР №757802, F16H 45/02, 1978].
Недостатком данного устройства является то, что разблокировка гидротрансформатора может осуществляться на частичных режимах работы двигателя, не требующих трансформации крутящего момента, а при изменении характера и интенсивности нарастания нагрузки надежность работы устройства снижается, поскольку разблокировка осуществляется благодаря наличию демпфера, за счет которого возникает разность скоростей перемещения регуляторов вместе с контактами, управляющими электромагнитом распределителя.
Задача изобретения – повышение эффективности функционирования силового агрегата на частичных режимах работы двигателя, когда реализация момента сопротивления должна осуществляться за счет приспособляемости двигателя к перегрузке, а также повышение надежности разблокировки при плавном нарастании нагрузки.
Технический результат достигается тем, что автоматическое устройство управления блокировкой гидротрансформатора, содержащее установленную между насосным и турбинным валами фрикционную муфту, связанную с исполнительным цилиндром, подключенным к подпиточному насосу через распределитель с электромагнитным управлением, в электрической цепи которого имеются подвижные контакты, управляемые центробежными регуляторами, установленными на насосном и турбинном валах гидротрансформатора, при этом содержит устройство, реагирующее на изменения крутящего момента и установленное на валу привода насосного колеса, и состоящее из разрезного вала, на торцах которого выполнены фланцы с клинообразными пазами, в которых размещены разжимные элементы, и двух корпусов с контактами, установленных на частях разрезного вала на радиально-упорных подшипниках, причем корпуса сжаты пружинами с предварительным натягом, при этом в зависимости от крутящего момента и режима работы гидротрансформатора упомянутые контакты, установленные на частях разрезного вала, служат для подачи сигнала в электрическую цепь для обеспечения блокировки или разблокировки гидротрансформатора.
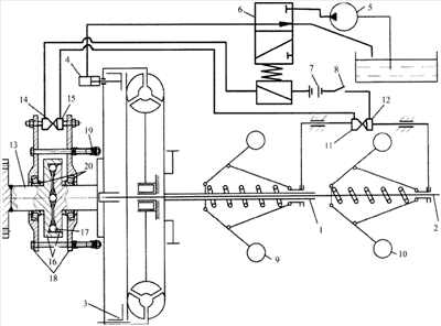
На чертеже представлена принципиальная схема автоматического устройства управления блокировкой гидротрансформатора.
Автоматическое устройство управления блокировкой гидротрансформатора содержит установленную между насосным 1 и турбинным 2 валами фрикционную муфту 3, связанную с исполнительным цилиндром 4, подключенным к подпиточному насосу 5 через распределитель 6 с электромагнитным управлением, в электрической цепи которого установлены источник питания 7 и выключатель 8. Автоматическое устройство также содержит установленные на насосном 1 и турбинном 2 валах центробежные регуляторы 9 и 10, имеющие подвижные контакты 11 и 12, включенные в электрическую цепь распределителя 6. Автоматическое устройство управления блокировкой гидротрансформатора дополнительно содержит устройство, реагирующее на изменение крутящего момента, установленное на валу привода насосного колеса и управляющее подвижными контактами 14 и 15. Устройство, реагирующее на изменение крутящего момента состоит из разрезного вала 13, на торцах которого выполнены фланцы 16 с клинообразными пазами, в которых размещены разжимные элементы 17. Два корпуса 18, с закрепленными контактами 14 и 15, установлены на частях разрезного вала на радиально-упорных подшипниках 20, причем корпуса 18 сжаты пружинами 19 с предварительным натягом.
Устройство работает следующим образом.
В режиме трогания с места и разгона, когда водитель включает соответствующую передачу, выключатель 8 включен. В этом режиме частота вращения насосного вала 1 больше частоты вращения турбинного вала 2. Следовательно, перемещение центробежного регулятора 9 вместе с подвижным контактом 11 больше перемещения центробежного регулятора 10 вместе с подвижным контактом 12, благодаря чему контакты 11 и 12 выходят из соприкосновения и электрическая цепь размыкается. При этом золотник распределителя 6 под воздействием возвратной пружины перемещается и соединяет исполнительный цилиндр 4 с резервуаром – фрикционная муфта выключена.
В режиме установившегося движения, когда величина крутящего момента недостаточная для преодоления предварительного натяга пружин 19, контакты 14 и 15 замкнуты. Гидротрансформатор начинает работать как гидромуфта, частоты вращения центробежных регуляторов 9 и 10 уравниваются, подвижные контакты 11 и 12 соприкасаются, электрическая цепь замыкается и электромагнит управления распределителем 6, преодолевая усилие пружины, перемещает золотник распределителя 6 вверх. При этом распределитель 6 соединяет исполнительный цилиндр 4 с насосом 5. Цилиндр 4 воздействует на фрикционную муфту 3, и гидротрансформатор блокируется.
Разблокировка гидротрансформатора происходит с возрастанием крутящего момента на насосном колесе, фланцы 16 устройства, реагирующего на изменение крутящего момента, сдвигаются относительно друг друга, при этом клиновидные пазы перемещаются по разжимным элементам 17 и раздвигают фланцы 16 в осевом направлении. Осевое усилие через радиально-упорные подшипники 20 передается на корпуса 18, при этом пружины 19 сжимаются, а контакты 14 и 15 выходят из соприкосновения, электрическая цепь размыкается, золотник распределителя 6 под воздействием возвратной пружины перемещается вниз и распределитель 6 соединяет исполнительный цилиндр 4 с резервуаром – фрикционная муфта 3 выключается и гидротрансформатор разблокируется.
Таким образом, благодаря наличию установленного на валу привода насосного колеса устройства, реагирующего на изменение крутящего момента, связанного с подвижными контактами, установленными в электрическую цепь для обеспечения блокировки или разблокировки гидротрансформатора, повышается эффективность работы автоматического устройства управления блокировкой гидротрансформатора на частичных режимах и надежность разблокировки при плавном нарастании нагрузки.
Устройство служит для обеспечения рациональных режимов работы блокируемого гидротрансформатора и может быть легко реализовано в тракторостроении и транспортном машиностроении.
Формула изобретения
Автоматическое устройство управления блокировкой гидротрансформатора, содержащее установленную между насосным и турбинным валами фрикционную муфту, связанную с исполнительным цилиндром, подключенным к подпиточному насосу через распределитель с электромагнитным управлением, в электрической цепи которого имеются подвижные контакты, управляемые центробежными регуляторами, установленными на насосном и турбинном валах гидротрансформатора, отличающееся тем, что содержит устройство, реагирующее на изменение крутящего момента и установленное на валу привода насосного колеса, и состоящее из разрезного вала, на торцах которого выполнены фланцы с клинообразными пазами, в которых размещены разжимные элементы, и двух корпусов с контактами, установленных на частях разрезного вала на радиально-упорных подшипниках, причем корпуса сжаты пружинами с предварительным натягом, при этом в зависимости от крутящего момента и режима работы гидротрансформатора упомянутые контакты, установленные на частях разрезного вала, служат для подачи сигнала в электрическую цепь для обеспечения блокировки или разблокировки гидротрансформатора.
РИСУНКИ
MM4A – Досрочное прекращение действия патента СССР или патента Российской Федерации на изобретение из-за неуплаты в установленный срок пошлины за поддержание патента в силе
Дата прекращения действия патента: 03.06.2008
Извещение опубликовано: 20.06.2010 БИ: 17/2010
|
|