|
|
(21), (22) Заявка: 2005110506/06, 11.04.2005
(24) Дата начала отсчета срока действия патента:
11.04.2005
(43) Дата публикации заявки: 20.10.2006
(46) Опубликовано: 10.02.2008
(56) Список документов, цитированных в отчете о поиске:
RU 2245460 C1, 27.01.2005. RU 2198324 C1, 10.02.2003. SU 1733693 A1, 15.05.1992. WO 99/66211 А1, 23.12.1999.
Адрес для переписки:
664038, г.Иркутск, Иркутский р-н, пос. Молодежный, ИрГСХА
|
(72) Автор(ы):
Кузьмин Ананий Ефимович (RU), Бутаков Павел Валерьевич (RU), Просвирнин Валерий Юрьевич (RU)
(73) Патентообладатель(и):
Иркутская государственная сельскохозяйственная академия Федеральное государственное образовательное учреждение высшего профессионального образования (RU)
|
(54) ВОДЯНОЙ НАСОС С ЭНЕРГОСБЕРЕГАЮЩИМ ПРИВОДОМ
(57) Реферат:
Изобретение относится к насосостроению и может быть использовано для водоснабжения, в частности для сельскохозяйственного водоснабжения с использованием открытых потоков. Отличительной особенностью водяного насоса является изменение механической кинематической связи, осуществляемой за счет шарнирных тяг, муфт свободного хода и аккумулирующей пружины, на гидравлическую связь с применением сосуда привода и золотниково-пружинного привода. Обеспечивается одновременное и быстрое (мгновенное) открытие (закрытие) впускного и выпускного каналов. Насос экологически чистый, может работать с напором 0,5 м и более за счет открытых потоков (ручьи, речки и пр.), обеспечивая потребности в воде людей, животных, для полива, орошения сельскохозяйственных культур и пожаротушения. 3 ил.
Изобретение относится к насосостроению и может быть использовано для водоснабжения, в частности для сельскохозяйственного водоснабжения с использованием открытых потоков.
Известен штанговый поршневой насос, включающий цилиндр, впускную трубу, в конце которой установлен всасывающий клапан. Нагнетательный клапан размещен в поршне, приводимом в движение штангой. При движении поршня вверх одновременно совершается всасывание в нижней части цилиндра под поршнем и нагнетание в верхней части цилиндра над поршнем. При перемещении поршня вниз всасывающий клапан закрыт, а нагнетательный открыт. При этом вода из нижней части цилиндра поступает в его верхнюю часть, процессы нагнетания и всасывания прекращаются. Насос применяется в водоснабжении и нефтяном деле [Циклаури Д.С. Гидравлика, сельскохозяйственное водоснабжение и гидросиловые установки. – М.: Стройиздат, 1970. – С.146-147].
Недостатком является то, что для привода штанговых насосов необходима электрическая или механическая энергия (двигатель внутреннего сгорания), то есть он не является энергосберегающим и применяется для работы в буровых скважинах.
Известен гидравлический мультипликатор. Он состоит из неподвижного рабочего цилиндра, в котором размещен подвижный пустотелый плунжер диаметром D, а внутри него – неподвижный плунжер диаметром d. Необходимым условием является D>d. По оси неподвижного плунжера проложена трубка, соединенная с прессом. Жидкость, сжатая в гидравлическом аккумуляторе или трубопроводе, подается в неподвижный цилиндр и поднимает вверх подвижный плунжер и по трубке поступает в пресс или другой рабочий орган с увеличенным давлением по сравнению с тем, которое было создано в гидравлическом аккумуляторе (трубопроводе) [Угинчус А.А. Гидравлика и гидравлические машины. Харьков: Харьковский Ун-т, 1970. – С.62-63].
Недостатком является то, что гидравлический мультипликатор имеет функциональную направленность на повышение давления и не может использоваться как водоподъемник и не является энергосберегающим.
Известен двигатель Кузьмина, предназначенный для использования в машиностроении для привода различных машин и механизмов. Двигатель содержит питательную емкость для воды, гильзы, поршни, перемещаемые по направляющим стержням, впускные и выпускные каналы и клапаны, распределительный вал с кулачками, кинематически связанный с коленчатым валом. Гильзы расположены ниже коленчатого вала. Между гильзой и поршнем уплотнение отсутствует. Совершение рабочего хода осуществляется при помощи силы Архимеда. Изобретение обеспечивается простотой конструкции и экологической безопасностью (RU №2140562, 27.10.99).
Это устройство предназначено для преобразования возвратно-поступательного движения поршня во вращательное движение коленчатого вала и не может непосредственно использоваться в качестве водоподъемника, то есть имеет иную функциональную направленность.
Известен водяной насос с энергосберегающим приводом, предназначенным для сельскохозяйственного водоснабжения с использованием открытых потоков. Водяной насос содержит питательную емкость для воды, впускной и выпускной каналы, всасывающий и напорный клапаны, цилиндр рабочей камеры с фильтром и всасывающим клапаном, неподвижный напорный трубопровод, расположенный внутри цилиндра рабочей камеры соосно и оборудованный напорным клапаном, уплотнение между цилиндром рабочей камеры и напорным трубопроводом (RU №2198324, 10.02.2003).
Недостатком рассматриваемого технического решения является сложная механическая кинематическая связь между поршнем и распределительным валом, не обеспечивающая надежность функционирования системы клапанов. Так, при частичном одновременном открытии впускного и выпускного клапанов в процессе совершения рабочего хода поршня такта нагнетания в какой-то промежуток времени вода из питательной емкости будет перетекать в выпускной канал с резким уменьшением скорости движения поршня и КПД насоса и возможностью прекращения его работы.
Наиболее близким техническим решением является водяной насос с энергосберегающим приводом, содержащий питательную емкость для воды, впускной и выпускной каналы, рабочую камеру, образованную в поршне, имеющую всасывающий и напорный клапаны, неподвижный напорный трубопровод, расположенный соосно внутри рабочей камеры и снабженный упомянутым напорным клапаном, при этом между напорным трубопроводом и рабочей камерой установлено уплотнение, предназначенный для сельскохозяйственного водоснабжения с использованием открытых потоков (RU №2245460, 27.01.2005).
Данный насос отличается тем, что механическая кинематическая связь дроссельных клапанов подводящего и отводящего каналов с поршнем осуществляется шарнирными тягами и муфтами свободного хода. Импульсы быстрого закрытия и открытия дроссельных клапанов создаются аккумулирующей пружиной, заключенной в неподвижной стойке, оборудованной беговой дорожкой. Кроме того, насос включает стержень с оголовком и шариком, шарнирную втулку с гайкой.
Недостатком указанного технического решения является сложная механическая кинематическая связь между поршнем и механизмом переключения. Сжатие аккумулирующей пружины в процессе переключения требует значительных затрат энергии. В момент переключения механизма (когда аккумулирующая пружина максимально сжата) тангенциальная составляющая аккумулирующей пружины равна нулю, а все радиальное усилие преобразуется в давление шарика на беговую дорожку. После перехода аккумулирующей пружины через точку переключения усилие, создаваемое ею, не передается полностью тягам, т.к. наибольшая величина усилия направлена радиально тягам и только небольшая часть усилия сжатой пружины (тангенциальная) расходуется на переключение. Эта тангенциальная составляющая может быть легко компенсирована силами трения в механизмах привода. Поэтому необходимо затрачивать дополнительную энергию на перемещение сжатой пружины в точку, в которой она самостоятельно начнет передвигать механизм переключения установки. В связи с этим механизм можно считать энергозатратным.
Задача изобретения – обеспечение одновременного и быстрого (мгновенного) открытия (закрытия) впускного и выпускного каналов.
Эта задача достигается тем, что в водяном насосе с энергосберегающим приводом, содержащем питательную емкость для воды, впускной и выпускной каналы, рабочую камеру, образованную в поршне, имеющую всасывающий и напорный клапаны, неподвижный напорный трубопровод, расположенный соосно внутри рабочей камеры и снабженный упомянутым напорным клапаном, при этом между напорным трубопроводом и рабочей камерой установлено уплотнение, привод выполнен в виде установленного в корпусе сосуда, частично заполненного водой, снабженного золотниково-пружинным механизмом, включающим золотник, фиксирующие пружины с шариками, расположенными в кольцевых канавках стержня золотника, и регулировочные болты.
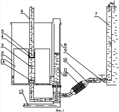
Данный привод обеспечивает гидравлическую связь поршня с механизмом переключения (перекрытия впускного и выпускного каналов). На фиг.1 – общий вид насоса, где указано положение цилиндра, рабочей камеры, всасывающего и напорного клапанов, привода при положении поршня в нижней мертвой точке (НМТ). На фиг.2 – то же при положении поршня в верхней мертвой точке (ВМТ). На фиг.3 представлен золотниково-пружинный механизм привода установки, выполняющий переключение установки на рабочий и холостой ход.
Водяной насос с энергосберегающим приводом включает в себя поршень 1, гильзу 2, рабочую камеру 3, напорный клапан 4, уплотнение 5, неподвижный напорный трубопровод 6, питательную емкость 7, корпус привода 8, задвижку 9, впускной канал 10, фильтр 11, выпускной канал 13, всасывающий клапан 14 (Н – уровень воды в питательной емкости; Pa – атмосферное давление), сосуд привода 12, частично заполненный водой, стержень золотника 15, шарики 16, болты 17, фиксирующие пружины 18, верхнюю кольцевую канавку 19, нижнюю кольцевую канавку 20, верхний клапан золотника 21 и нижний клапан золотника 22.
Описываемое изобретение реализуется следующим образом. Для запуска насоса в работу открывается задвижка 9. При этом поршень 1 и золотник 15 находятся в нижнем положении, выпускной канал 13 закрыт, а впускной канал 10 открыт (фиг.1). Так как сила тяжести поршня 1 меньше силы Архимеда, то поршень 1 начинает двигаться относительно неподвижного нагнетательного трубопровода 6 вверх по мере заполнения водой кольцевого пространства между гильзой 2 и поршнем 1 и образованию подъемной силы Архимеда. Объем рабочей камеры 3 уменьшается, и в ней создается избыточное давление, всасывающий клапан 14 закрывается, а напорный клапан 4 открыт, вода из рабочей камеры 3 поступает в неподвижный напорный трубопровод 6 к потребителю. Уплотнения 5 между цилиндром рабочей камеры и напорным трубопроводом 6 исключают утечки воды из рабочей камеры 3. Вода, поступающая в гильзу 2, перетекает также и в корпус привода 8, так как это сообщающиеся между собой сосуды. По мере заполнения корпуса привода 8 и гильзы 2 водой сила Архимеда, воздействующая на сосуд привода 12, увеличивается за счет его постепенного погружения в воду, затекающую из гильзы 2 в корпус привода 8. Золотник 15 соединен жестко и соосно с сосудом привода 12. При достижении поршнем 1 ВМТ сосуд привода 12 погружается в воду на столько, чтобы сила Архимеда, воздействующая на сосуд привода 12, могла преодолеть воздействие пружин 18 (фиг.3) через шарики 16, удерживающие золотник 15, силу тяжести золотника 15, сосуда привода 12 и силу тяжести частично заполняющей его воды. Так как вес золотниково-пружинного механизма переключения складывается из веса сосуда привода 12, веса воды, которой частично заполнен сосуд привода 12, силой от воздействия шариков 16 на золотник 15 и весом золотника 15, то процесс переключения на холостой ход можно описать формулой

где РА – сила Архимеда, воздействующая на сосуд привода 12; Gв – сила тяжести воды в сосуде привода 12; Рпр – составляющая силы трения от шариков 16, действующая вдоль оси стержня золотника 15; Gмех – сила тяжести золотника 15 и сосуда привода 12 (за исключением воды, залитой в сосуд).
В связи с тем, что золотник 15 и сосуд привода 12 соединены жестко, золотник 15 вместе с сосудом привода 12 поднимается. На стержне золотника 15 имеются две кольцевые канавки 19 и 20, в одну из которых (верхнюю 19) утоплены шарики 16. По мере подъема золотника 15 и выхода шариков 16 из канавок их усилие, препятствующее возвратно-поступательному движению золотника 15, резко уменьшается. Это обеспечивает быстрое переключение механизма привода. Шарики 16 выходят из зацепления с верхней кольцевой канавкой 19 и перемещаются в нижнюю 20. Золотник 15 таким образом быстро переходит из нижнего в верхнее положение, перекрывая впускной канал 10 и открывая выпускной канал 13. Таким образом завершается рабочий ход поршня 1 с совершением такта нагнетания воды в напорный трубопровод 6 с открытием выпускного канала 13, обеспечивающего выпуск воды из гильзы 2, и с закрытием впускного канала 10, прекращающего поступление воды в гильзу 2 (фиг.2).
Выпуск воды из гильзы 2 сопровождается быстрым снижением уровня воды в кольцевом объеме между поршнем 1 и гильзой 2, при этом результирующая подъемная сила равна нулю (фиг.1). Движение поршня 1 относительно неподвижного нагнетательного трубопровода 6 вниз к нижней мертвой точке осуществляется за счет силы тяжести поршня 1. Напорный клапан 4 закрыт под действием силы от давления в неподвижном напорном трубопроводе 6 и собственного веса. Увеличение объема рабочей камеры 3 приводит к образованию в ней разрежения. Всасывающий клапан 14 открывается. Происходит наполнение рабочей камеры 3 водой. При движении поршня 1 вниз (холостой ход) (фиг.2) происходит опорожнение гильзы 2 и корпуса привода 8. Следовательно, сила Архимеда, воздействующая на сосуд привода 12, уменьшается. При достижении поршнем 1 НМТ сосуд привода 8 полностью выступает из воды. Сила тяжести золотника 15, сосуда привода 12 и воды в сосуде преодолевает воздействие шариков 16, удерживающих золотник 15 от переключения.
Золотник 15 опускается, перекрывая выпускной канал 13 и открывая впускной канал 10. Заполнение гильзы водой приводит к образованию силы Архимеда, действующей на поршень 1. Поршень 1 приводится в движение к ВМТ. В рабочей камере 3 создается избыточное давление, всасывающий клапан 14 закрывается, а напорный клапан 4 открыт.Осуществляется рабочий ход – нагнетание воды в напорный трубопровод 6, и процессы чередуются. Переключение на рабочий ход можно описать формулой

Регулировка механизма осуществляется с помощью долива воды в сосуд привода 12 и затяжкой или отпусканием болтов 17, которые через пружины 18 воздействуют на шарики 16.
Фильтр 11 обеспечивает очистку воды от механических примесей. Питательная емкость 7 с напором «Н» за счет задвижки 9 и впускного канала 10 обеспечивает работу энергосберегающего водяного насоса.
Преимуществом описываемого технического решения по сравнению с прототипом является изменение механической кинематической связи, осуществляемой за счет шарнирных тяг, муфт свободного хода и аккумулирующей пружины на гидравлическую связь с применением сосуда привода и золотниково-пружинного привода. Такая связь обеспечивает:
– Быстрое (мгновенное) и технологически надежное открытие (закрытие) впускного и выпускного каналов.
– Отсутствие механизмов, имеющих вращательное движение в своей работе. Что значительно упрощает конструкцию привода, так как все детали гидравлического двигателя с энергосберегающим приводом совершают возвратно-поступательное движение.
– Отсутствие механической связи привода с поршнем 1, так как любые дополнительные связи могут привести к возникновению изгибающих моментов на поршне, уменьшению его подъемной силы и, следовательно, нагнетаемого потребителю напора. Дополнительные нагрузки и неравномерность их приложения могут вызвать перекос поршня 1 и его заклинивание в гильзе 2 в процессе возвратно-поступательного движения. Гидравлическая связь позволяет устанавливать максимальный уровень воды в гильзе 2 независимо от хода поршня 1, то есть можно осуществлять контролируемое заполнение и опорожнение поршня 1, если поршень 1 полый, а также контролировать подтопление поршня 1 с помощью количества воды в сосуде привода 12.
– Меньшее потребление энергии на процесс переключения золотника 15 установки по сравнению с энергией, расходуемой на переключение механизма с аккумулирующей пружиной.
– Наличие золотника 15 делает работу привода независимой от напора питательной емкости 7, так как давление воды на верхний клапан золотника 21 компенсируется давлением воды на нижний клапан золотника 22
Насос экологически чистый, может работать с напором 0,5 м и более за счет открытых потоков (ручьи, речки и пр.), обеспечивая потребности в воде людей, животных, для полива, орошения сельскохозяйственных культур и пожаротушения.
Формула изобретения
Водяной насос с энергосберегающим приводом, содержащий питательную емкость для воды, впускной и выпускной каналы, рабочую камеру, образованную в поршне, имеющую всасывающий и напорный клапаны, неподвижный напорный трубопровод, расположенный соосно внутри рабочей камеры и снабженный упомянутым напорным клапаном, при этом между напорным трубопроводом и рабочей камерой установлено уплотнение, отличающийся тем, что привод выполнен в виде установленного в корпусе сосуда, частично заполненного водой, снабженного золотниково-пружинным механизмом, включающим золотник, фиксирующие пружины с шариками, размещенными в кольцевых канавках стержня золотника, и регулировочные болты.
РИСУНКИ
MM4A – Досрочное прекращение действия патента СССР или патента Российской Федерации на изобретение из-за неуплаты в установленный срок пошлины за поддержание патента в силе
Дата прекращения действия патента: 12.04.2008
Извещение опубликовано: 20.04.2010 БИ: 11/2010
|
|