|
(21), (22) Заявка: 2006112044/06, 11.04.2006
(24) Дата начала отсчета срока действия патента:
11.04.2006
(46) Опубликовано: 27.01.2008
(56) Список документов, цитированных в отчете о поиске:
RU 2224182 С1, 20.02.2004. RU 2139983 С1, 20.10.1999. RU 94041843 A1, 20.09.1996. DE 3012686 A1, 16.10.1980. FR 2035377 A, 15.01.1971.
Адрес для переписки:
350038, г.Краснодар, ул. им. В. Головатого, 585, ЗАО “НИПИ”ИнжГео”, В.П. Колотилину
|
(72) Автор(ы):
Колотилин Василий Петрович (RU), Великоднев Валерий Яковлевич (RU)
(73) Патентообладатель(и):
Закрытое акционерное общество Научно-исследовательский проектно-изыскательский институт “ИнжГео” ЗАО “НИПИ”ИнжГео” (RU)
|
(54) ЗАЩИТНОЕ СООРУЖЕНИЕ
(57) Реферат:
Защитное сооружение относится к области кондиционирования закрытых помещений, специально защищаемых от техногенных и природных воздействий и предназначенных для длительного и изолированного пребывания в них людей и/или размещения специалистов с круглосуточно работающими техническими средствами со значительным выделением тепловой энергии. Сооружение содержит защищенные от техногенных воздействий рабочий модуль, приточную камеру с фильтрами, воздуховод выброса отработанного воздуха и агрегат охлаждения/нагревания. При этом сооружение дополнительно снабжено вспомогательным модулем, а агрегат охлаждения/нагревания выполнен в виде сплит-системы, в которой в качестве теплоносителя использована вода. Кроме того, внутренние блоки сплит-системы размещены в рабочем модуле, а наружный блок – во вспомогательном модуле. При этом сплит-система представляет собой составную часть системы выноса тепла из рабочего модуля. Технический результат заключается в создании универсального, экологически безопасного, защищенного от внешних воздействий защитного сооружения, а также расширении модельного ряда исполнения защитного сооружения при снижении капитальных и эксплуатационных затрат. 4 з.п. ф-лы, 1 ил.
Изобретение относится к области кондиционирования закрытых помещений со значительным выделением тепловой энергии, защищенных от техногенных и природных воздействий и предназначенных для длительного и изолированного пребывания в них людей и/или размещения специалистов с круглосуточно работающими техническими средствами. Изобретение может быть использовано в качестве укрытий или убежищ, запасных пунктов управления предприятиями в чрезвычайных ситуациях (ЧС), например, при бактериологическом или радиоактивном заражении окружающей территории, землетрясениях, пожарах, наводнениях, а также в электронных технологиях, точной механике, пищевой промышленности и медицине.
Известно помещение для длительного изолированного пребывания людей, снабженное воздухоподводящей и воздухоотводящей галереями. Помещение посредством отверстий в полу и системы подачи воздуха сообщено с воздухоподводящей галереей, а через канал в перекрытии – с воздухоотводящей галереей. В помещении с зазором относительно пола, стен и перекрытия установлен рабочий модуль, ограждающие поверхности которого перфорированы (см. патент РФ №2139983, МПК6 Е04Н 9/12, опубл. 20.10.1999).
Общими признаками известного и предлагаемого помещений являются:
– рабочий модуль;
– воздухоподводящая и воздухоотводящая системы.
Недостатками известного помещения являются:
– отсутствие возможности (системы) локализации и выноса тепла из рабочего модуля и их защита в чрезвычайных ситуациях;
– отсутствие возможности изоляции находящихся людей и технических средств от внешней воздушной среды на определенный период времени в ЧС;
– отсутствие возможности регулирования и поддержания температуры воздуха в помещении ниже 24°С на длительное время, из-за чего невозможно использовать известное помещение как для размещения укрываемой наибольшей рабочей смены, так и для организации запасного автоматизированного пункта управления с информационно-управляющей системой, аппаратура которой выделяет в рабочий модуль значительное количество тепловой энергии;
– достаточно высокий уровень шума.
Наиболее близким по технической сущности и достигаемому результату к предлагаемому является чистое помещение, содержащее изолированный от окружающей среды рабочий объем, воздуховод подачи чистого воздуха с последовательно установленными в нем вентилятором и фильтрами тонкой очистки, воздуховод отвода отработанного воздуха, установленные вне рабочего объема фильтры очистки отработанного воздуха, и диффузионный газообменник. Чистое помещение дополнительно содержит связанное с ним воздуховодами отвода и подачи помещение подготовки воздуха, в котором установлены диффузионный газообменник, кондиционер (агрегат охлаждения/нагревания воздуха), фильтры очистки отработанного воздуха на входе воздуховода отвода, вентилятор нагнетания на входе воздуховода подачи чистого воздуха. (см. патент РФ № 2224182, МПК7 F24F 7/06, опубл. 20.02.2004).
Общими признаками известного и предлагаемого помещений являются:
– защищенный от техногенных воздействий рабочий модуль;
– приточная камера с фильтрами;
– воздуховод выброса отработанного воздуха;
– агрегат охлаждения/нагревания.
Недостатки известного помещения заключаются в следующем. Известное помещение экономически (по капитальным и эксплуатационным затратам) не может быть использовано для регулирования и поддержания температуры воздуха в рабочей зоне ниже 24°С в течение длительного времени при размещении укрываемой наибольшей рабочей смены и состава запасного автоматизированного пункта управления (ЗАПУ), при работе которого выделяется значительное количество тепла, в связи с тем, что регулирование и поддержание температуры воздуха в известном помещении осуществляется путем забора из рабочей зоны части воздуха, которая смешивается с воздухом помещения подготовки воздуха, а затем часть его после охлаждения кондиционером возвращается в рабочую зону, поэтому при необходимости выноса значительного количества тепла из рабочей зоны потребуется увеличение всей системы подготовки воздуха.
Кроме того, известное помещение из-за сложности конструктивной реализации имеет узкий модельный ряд исполнения, например, оно неприменимо при необходимости выполнения рабочей зоны из нескольких секций различного функционального назначения.
Техническая задача заключается в создании универсального, экологически безопасного, защищенного от внешних воздействий защитного сооружения (ЗС), обеспечивающего заданные температурные условия в течение длительного времени при укрытии людей или состава ЗАЛУ, при работе которого выделяется значительное количество тепла, а также расширении модельного ряда исполнения ЗС при снижении капитальных и эксплуатационных затрат.
Техническая задача изобретения достигается тем, что защитное сооружение, содержащее защищенные от техногенных и природных воздействий рабочий модуль, приточную камеру с фильтрами, воздуховод выброса отработанного воздуха и агрегат охлаждения/нагревания, дополнительно снабжено вспомогательным модулем, а агрегат охлаждения/нагревания выполнен в виде сплит-системы, в которой в качестве теплоносителя использована вода, при этом внутренние блоки сплит-системы размещены в рабочем модуле, а наружный блок – во вспомогательном модуле, кроме того, сплит-система представляет собой составную часть системы выноса тепла из рабочего модуля.
Кроме этого, приточная камера с фильтрами и воздуховод выброса отработанного воздуха размещены во вспомогательном модуле.
Кроме этого, система выноса тепла из рабочего модуля выполнена по теплоносителю из двух контуров, при этом первый контур соединяет внутренние и наружный блоки сплит-системы, а второй контур соединяет наружный блок сплит-системы с системой охлаждения теплоносителя первого контура.
Кроме этого, система охлаждения теплоносителя первого контура размещена во вспомогательном модуле и включает последовательно соединенные между собой дополнительно установленные циркуляционный насос и калорифер, снабженный вентилятором.
Кроме этого, система охлаждения теплоносителя первого контура дополнительно содержит резервуар оборотного водоснабжения, заглубленный в грунт и размещенный за пределами защитного сооружения.
Вспомогательный модуль обеспечивает несколько технических функций:
– использование сплит-системы для регулирования температуры воздуха непосредственно в рабочем модуле;
– осуществление защиты наружного блока охлаждения/нагревания агрегата и другого находящегося в нем оборудования от техногенных и природных воздействий;
– обеспечение возможности изменения принципа и режима охлаждения первичного теплоносителя в зависимости от функции защитного сооружения: водяное, воздушно-водяное и воздушное с возможным подключением внешнего природного или созданного источника воды, защиту от техногенных воздействий в зависимости от выполняемой функции защитного сооружения;
– является связующим звеном между первым и вторым контурами выноса тепла;
– обеспечивает передачу части образующейся в нем тепловой энергии через наружные стены, пол в грунт.
Совокупность признаков предлагаемого изобретения обеспечивает возможность длительного размещения людей, специалистов запасных управляющих пунктов предприятий и одновременно технических средств с мощным выделением тепловой энергии за счет использования в ЗС высокотехнологичных сплит-систем с водяным охлаждением и их защиту от техногенных и природных воздействий. Благодаря этой совокупности признаков осуществляется длительное и эффективное регулирование, поддержание круглосуточной температуры, не превышающей 24,5°С и микроклимата в рабочих модулях ЗС. А также обеспечивается возможность расширения функционального использования ЗС, заключающееся в одновременном размещении укрываемой наибольшей рабочей смены и/или состава запасного автоматизированного пункта управления с круглосуточно работающей мощной информационно-управляющей системой, аппаратура которой выделяет в рабочий модуль значительное количество тепловой энергии.
При использовании предлагаемого изобретения достигается более высокая жизнеспособность ЗС (более 6 суток). Универсальность ЗС обеспечивается как за счет использования природного источника воды, например, артезианской скважины, как источника выноса тепла из защитного сооружения, так и за счет использования дополнительно созданного источника воды – резервуара, которые обеспечивают длительную работу ЗС во всех ее режимах, в том числе в автономном режиме (отключения от внешней среды) не менее 12 часов.
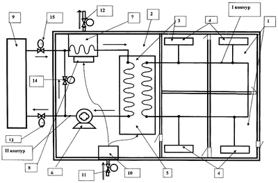
На чертеже представлена схема защитного сооружения. Защитное сооружение обеспечивает защиту от техногенных и природных воздействий рабочего модуля 1 и вспомогательного модуля 2. В защитном сооружении размещена сплит-система 3, содержащая внутренние блоки 4 и наружный блок 5. В качестве теплоносителя в сплит-системе 3 использована вода. Внутренние блоки 4 сплит-системы 3 размещены в рабочем модуле 1, а наружный блок 5 размещен во вспомогательном модуле 2. Внутренние блоки 4 сплит-системы 3 предназначены для обеспечения регулирования и поддержания температуры и микроклимата в рабочем модуле 1.
В защитном сооружении организована система выноса тепла из рабочего модуля 1. Сплит-система 3 представляет собой составную часть системы выноса тепла из рабочего модуля 1, выполненную по теплоносителю из двух контуров: I и II. Первый контур I по теплоносителю соединяет внутренние блоки 4 сплит-системы 3 с наружным блоком 5. Второй контур II по теплоносителю соединяет наружный блок 5 сплит-системы 3 с системой охлаждения теплоносителя второго контура II, включающей последовательно соединенные между собой циркуляционный насос 6 и калорифер 7, снабженный вентилятором 8. Система охлаждения теплоносителя второго контура II размещена во вспомогательном модуле 2 и дополнительно снабжена резервуаром оборотного водоснабжения 9. Во вспомогательном модуле 2 размещена приточная камера 10 с фильтрами для притока наружного воздуха в необходимом объеме, воздуховод 11 притока наружного воздуха (для работы в мирное время) и воздуховод 12 выброса отработанного воздуха. Размещение второго контура II выноса тепла во вспомогательном модуле 2 защищает наружный блок 5 сплит-системы 3 от воздействия техногенных и природных факторов (землетрясения, ударной волны, наведенной радиации и пр.). Кроме этого, размещение второго контура II выноса тепла во вспомогательном модуле 2 является дополнительным аккумулятором тепла, которое оно получает от работающего оборудования и передает в грунт через внешние ее стены, полы, перекрытие. На трубопроводе, соединяющем резервуар оборотного водоснабжения 11 с системой охлаждения теплоносителя второго контура II, установлены вентили 13, 14 и 15.
Принцип эксплуатации защитного сооружения заключается в следующем. При нахождении в защитном сооружении укрываемой рабочей смены и/или состава запасного автоматизированного пункта управления с мощной информационно-управляющей системой, аппаратура которой выделяет в рабочий модуль значительное количество тепловой энергии, выделяемое тепло передается теплоносителем-водой через внутренние блоки 4 сплит-системы 3 на наружный блок 5.
Система выноса тепла из рабочего модуля 1 обеспечивает несколько режимов работы. При этом при всех режимах работы теплоноситель-вода циркулирует по первому контуру I из рабочего модуля 1 во вспомогательный модуль 2, вынося тепло из рабочей зоны 1.
I Режим – водяной. При этом режиме теплоноситель-воду, циркулирующую по контуру I, охлаждают в дополнительном модуле 2 теплоносителем-водой, циркулирующей по контуру II через наружный блок 5 сплит-системы 3, циркуляционный насос 6 и калорифер 7 при открытом вентиле 14 с подпиткой воды из резервуара 9.
II режим – водяной. При этом режиме теплоноситель-воду охлаждают в дополнительном модуле 2 теплоносителем-водой, которая циркулирует по контуру II при закрытом вентиле 14 и открытых вентилях 13 и 15. При этом вода забирается из резервуара 9 и через вентиль 13 насосом 6 подается через наружный блок 5, калорифер 7 и вентиль 15, после чего возвращается в резервуар 9.
III режим – воздушно-водяной. При этом режиме теплоноситель-воду охлаждают в дополнительном модуле 2 теплоносителем-водой по контуру II при закрытом вентиле 14 и открытых вентилях 13 и 15. При этом вода забирается из резервуара 9 и через вентиль 13 насосом 6 подается через наружный блок 5, калорифер 7 и вентиль 15, после чего возвращается в резервуар 9; II режим работы осуществляется в сочетании с работой приточно-вытяжной вентиляции: воздуховода 11, приточной камеры 10 и воздуховода 12.
IV режим – воздушно-водяной. При этом режиме теплоноситель – воду охлаждают в дополнительном модуле 2 теплоносителем-водой, которая циркулирует по контуру II аналогично II режиму работы, т.е. при закрытом вентиле 14 и открытых вентилях 13 и 15. Кроме этого, включается в работу приточно-вытяжная вентиляция: воздуховод 11, приточная камера 10 и воздуховод 12.
V режим – воздушный. При этом режиме подаваемый в дополнительный модуль 2 с помощью воздуховода 11 и приточной камеры 10 воздух охлаждает теплоноситель-воду контура I и выводится через воздуховод 12.
III, IV и V режимы работы применены для обеспечения функционирования ЗС в мирное время, I, II режимы – при чрезвычайных ситуациях.
Формула изобретения
1. Защитное сооружение, содержащее защищенные от техногенных и природных воздействий рабочий модуль, приточную камеру с фильтрами, воздуховод выброса отработанного воздуха и агрегат охлаждения/нагревания, отличающееся тем, что защитное сооружение дополнительно снабжено вспомогательным модулем, а агрегат охлаждения/нагревания выполнен в виде сплит-системы, в которой в качестве теплоносителя использована вода, при этом внутренние блоки сплит-системы размещены в рабочем модуле, а наружный блок – во вспомогательном модуле, кроме того, сплит-система представляет собой составную часть системы выноса тепла из рабочего модуля.
2. Защитное сооружение по п.1, отличающееся тем, что приточная камера с фильтрами и воздуховод выброса отработанного воздуха размещены во вспомогательном модуле.
3. Защитное сооружение по п.1, отличающееся тем, что система выноса тепла из рабочего модуля выполнена по теплоносителю из двух контуров, при этом первый контур соединяет внутренние и наружный блоки сплит-системы, а второй контур соединяет наружный блок сплит-системы с системой охлаждения теплоносителя первого контура.
4. Защитное сооружение по п.3, отличающееся тем, что система охлаждения теплоносителя первого контура размещена во вспомогательном модуле и включает последовательно соединенные между собой, дополнительно установленные циркуляционный насос и калорифер, снабженный вентилятором.
5. Защитное сооружение по п.3, отличающееся тем, что система охлаждения теплоносителя первого контура дополнительно содержит резервуар оборотного водоснабжения, заглубленный в грунт и размещенный за пределами защитного сооружения.
РИСУНКИ
|