|
|
(21), (22) Заявка: 2003127405/12, 30.01.2002
(24) Дата начала отсчета срока действия патента:
30.01.2002
(30) Конвенционный приоритет:
05.02.2001 (пп.1-2) DE 10105117.4
(43) Дата публикации заявки: 27.01.2005
(46) Опубликовано: 27.09.2007
(56) Список документов, цитированных в отчете о поиске:
SU 1305585 A, 23.04.1987. SU 391355 A, 06.12.1973. WO 98/02729 A2, 22.01.1998. SU 1357819 A1, 07.12.1987. DE 3311829 A1, 11.10.1984. US 4498338 A, 12.02.1985.
(85) Дата перевода заявки PCT на национальную фазу:
05.09.2003
(86) Заявка PCT:
DE 02/00381 (30.01.2002)
(87) Публикация PCT:
WO 02/063276 (15.08.2002)
Адрес для переписки:
127055, Москва, а/я 11, пат.пов. Н.К.Попеленскому, рег. № 31
|
(72) Автор(ы):
КЛУПШ Фолькхард (DE), КОНРАДС Ханс Георг (DE), ХЁПФЛЬ Томас (DE)
(73) Патентообладатель(и):
Промекон Процесс-унд Месстехник Конрадс ГмбХ (DE)
|
(54) СПОСОБ ПРИГОТОВЛЕНИЯ ОБРАЗЦОВ ИЗ ОТФИЛЬТРОВАННОЙ ИЛИ ЛЕТУЧЕЙ ЗОЛЫ
(57) Реферат:
Изобретение может быть использовано для определения остаточного содержания углерода отфильтрованной или летучей золы в золосборниках топочных устройств угольных электростанций, в установках для сжигания мусора или в установках для производства цемента. Способ приготовления образцов из отфильтрованной или летучей золы для определения остаточного содержания углерода предусматривает определение изменения электрических параметров комплексного электрического элемента, содержащего образцы. В способе указанную золу подают в комплексный электрический элемент. Указанную золу уплотняют посредством шнекового конвейера. Комплексный электрический элемент выполняют в форме закрытой измерительной камеры. Уплотнение золы осуществляют до наступления скачкообразного увеличения крутящего момента, прилагаемого к шнеку при подаче и уплотнении золы. Способ обеспечивает высокую точность определения остаточного содержания углерода. 1 з.п. ф-лы, 1 ил.
Область техники, к которой относится изобретение
Изобретение относится к способу приготовления образцов из отфильтрованной или летучей золы для определения остаточного содержания углерода посредством определения изменения электрических параметров комплексного электрического элемента, содержащего подлежащие анализу образцы отфильтрованной или летучей золы. Изобретение, в частности, предназначено для установки в золосборниках топочных устройств угольных электростанций. Кроме того, его можно с успехом применять везде, где требуется определить остаточное содержание углерода отфильтрованной или летучей золы посредством определения изменения электрических параметров комплексных электрических элементов, содержащих подлежащую анализу отфильтрованную или летучую золу. Наряду с топочными установками электростанций это могут быть, например, также установки для сжигания мусора или установки для производства цемента.
Уровень техники
Определение остаточного содержания углерода в отфильтрованной или летучей золе необходимо, во-первых, с точки зрения управления и оптимизации процесса сжигания, т.е. для возможно более полного использовании энергии, содержащейся в топливе, а во-вторых, для контроля качества отфильтрованной или летучей золы, применяемой в качестве добавки в производстве строительных материалов и цемента. С обеих точек зрения целью является по возможности низкое остаточное содержание углерода или по возможности малая доля несгоревших компонентов. Изменяющиеся нагрузки в топочной установке и различные по составу типы топлива предполагают постоянный контроль процесса сжигания, что делает необходимым определение (по возможности постоянное или периодическое, с короткими интервалами; без отставания по времени или с малым отставанием по времени) остаточного содержания углерода в остатках после сжигания.
Еще встречающийся в настоящее время преимущественно в топочных установках угольных электростанций способ отбора образцов золы и последующего аналитического исследования образцов в лаборатории, во-первых, является очень дорогостоящим, а во-вторых, приводит к такому значительному сдвигу по времени, при котором оптимизированное управление процессом сжигания практически невозможно.
По этой причине уже давно прилагаются усилия по разработке способов и устройств, позволяющих определять остаточное содержание углерода просто, постоянно или периодически без сдвига по времени. При этом наиболее приемлемыми оказались способы, основывающиеся на изменении электрических параметров комплексных электрических элементов, содержащих подлежащую анализу отфильтрованную или летучую золу. Однако проблематичной является работа с летучей золой, чрезвычайно затрудняемая сыпучестью отфильтрованной или летучей золы.
В документе DE-OS 3303177 А1 приводится описание способа и устройства для измерения остаточного содержания углерода в летучей золе, при применении которого определяется емкость конденсатора, в который образец летучей золы вводится в качестве диэлектрика. При этом летучая зола забирается из бункера посредством шнекового конвейера, переводится в измерительную камеру конденсатора, формирующую диэлектрик, и уплотняется под воздействием вибраций. Затем определяется емкость измерительной камеры, содержащей уплотненный образец летучей золы. После определения емкости образец летучей золы удаляется из измерительной камеры и возвращается посредством другого шнекового конвейера в бункер. По электрически измеренной емкости делается вывод об остаточном содержании углерода в летучей золе. Способ можно применять постоянно или периодически, причем для получения приемлемых измеренных значений необходимо обеспечить, чтобы содержащееся в измерительной камере среднее количество летучей золы в основном было постоянным и имело определенную плотность. Из документа DE33 11 829 А1 известно устройство автоматического контроля подачи пылевидного материала при помощи емкостной регистрации диэлектрических характеристик пылевидного материала, в котором идущий из разных бункеров пылевидный материал (отфильтрованная зола) подается посредством шнекового конвейера в систему с измерительным конденсатором. При этом шнековый конвейер наряду с подачей отфильтрованной золы выполняет гомогенизацию поступающей из разных бункеров отфильтрованной золы, что необходимо для получения репрезентативных результатов измерений при определении остаточного содержания углерода.
В документе DE 198 56 870 A1 приводится описание решения, при применении которого транспортируемая в пневматической системе подачи зола подается на пробоотборник (причем посредством фильтра отходящего воздуха и светового затвора обеспечивается определенное содержание частиц образца), образец нагревается до заданной температуры анализа, уплотняется посредством виброустройства и затем подается на микроволновой анализатор. Определение остаточного содержания углерода в подаваемом на микроанализатор подготовленном образце осуществляется по известной методике посредством микроволнового резонанса. Исследованный образец вновь подается в пневматическую систему подачи.
Описанные решения предполагают высокие затраты на аппаратное обеспечение, требуемое для отбора, подготовки и обратной подачи образца. Эти затраты в конечном счете связаны с чрезвычайно плохой сыпучестью исследуемой летучей золы. Кроме того, было обнаружено, что достигаемая точность определения остаточного содержания углерода является недостаточной. В частности, можно отметить большой разброс измеренных значений, поэтому, например, для управления процессом сжигания они годятся лишь условно.
В документе DE 42 24 128 A1 приводится описание определения влажности глиносодержащего материала или аналогичных пластичных масс, при применении которого эти массы уплотняются штрангпрессованием посредством шнекового конвейера.
В документе DD 251 623 A1 приводится решение, позволяющее выравнивать поток сыпучего, порошкообразного и даже зернистого материала, причем стоит задача выровнять различия в плотности потока этого сыпучего материала. В соответствии с изобретением это достигается при применении описываемого решения за счет того, что давление подачи сыпучего материала контролируется в шнековом конвейере и применяется в качестве управляющего воздействия для частоты вращения шнека.
Но и при применении данных решений невозможно определить остаточное содержание углерода отфильтрованной и летучей золы с точностью, достаточной для регулировки процесса сжигания.
Сущность изобретения
Задачей изобретения является обеспечение способа приготовления образцов отфильтрованной или летучей золы для определения остаточного содержания углерода посредством определения изменения электрических параметров комплексного электрического элемента, содержащего подлежащие исследованию образцы, позволяющие избежать высоких затрат на аппаратное обеспечение и обеспечивающие высокую точность определения остаточного содержания углерода.
В соответствии с изобретением это достигается посредством способа приготовления образцов из отфильтрованной или летучей золы для определения остаточного содержания углерода посредством определения изменения электрических параметров комплексного электрического элемента, содержащего образцы, в котором отфильтрованную или летучую золу посредством шнекового конвейера подают в комплексный электрический элемент и уплотняют до наступления скачкообразного увеличения уплотняющего усилия или крутящего момента, прилагаемого к шнеку для подачи и уплотнения золы.
Было обнаружено, что применяемое в настоящее время уплотнение отфильтрованной или летучей золы под воздействием вибраций не дает воспроизводимых результатов уплотнения. Скорее, под воздействием вибраций отфильтрованная или летучая зола находится в псевдоожиженном состоянии. Кроме того, вибрации приводят к расслоению различных компонентов отфильтрованной или летучей золы. При этом невоспроизводимые результаты уплотнения и, особенно, явления расслоения приводят при применении известных устройств и способов приготовления образцов отфильтрованной или летучей золы для определения остаточного содержания углерода к значительному разбросу результатов измерений. Установленный разброс измерений явно превышает ±0,5%.
Предложенный способ основан на установлении факта, что при уплотнении отфильтрованной или летучей золы при достижении определенной воспроизводимой степени уплотнения (сжатия) отмечается скачкообразное увеличение уплотняющего усилия более чем на 200% без дальнейшего увеличения степени уплотнения. Таким образом, в предпочтительном варианте осуществления изобретения отфильтрованную или летучую золу уплотняют до наступления скачкообразного увеличения крутящего момента на 200%. Тем самым можно простым способом создать на основе оценки этого значительного и характерного скачка уплотняющего усилия воспроизводимые условия уплотнения, впоследствии обеспечивающие при использовании описываемого способа высокую точность и малый разброс результатов измерений.
Особые преимущества достигаются, если выполненный в форме закрытой измерительной камеры комплексный электрический элемент размещен вместе со шнековым конвейером в резервуаре-приемнике отфильтрованной или летучей золы таким образом, чтобы шнековый конвейер подавал отфильтрованную или летучую золу в измерительную камеру и уплотнял ее до скачка крутящего момента, прилагаемого для подачи и уплотнения золы. За счет расположения комплексного электрического элемента в резервуаре-приемнике отфильтрованной или летучей золы достигается поддержание температуры отфильтрованной или летучей золы на уровне, обычно преобладающем в сборниках золы, т.е. между 60°С и 90°С. Тем самым отпадает необходимость в дополнительных мерах по поддержанию равномерной температуры образцов отфильтрованной или летучей золы, обычных при применении решений, соответствующих современному уровню техники. Отфильтрованная или летучая зола кратчайшим путем поступает непосредственно в измерительную камеру, и после проведенного измерения ее можно вновь отвести в сборник золы путем изменения направления вращения шнека шнекового конвейера. Дополнительные преимущества могут достигаться при наличии на шнековом конвейере открытого сверху улавливающего желоба, при помощи которого может улавливаться поступающая в сборник отфильтрованная или летучая зола. Такой улавливающий желоб следует предусмотреть в особенности в том случае, если шнековый конвейер расположен внутри сборника таким образом, что он не находится постоянно под поступающей отфильтрованной или летучей золой.
Разумеется, также возможно и целесообразно предусмотреть на выполненном в форме закрытой измерительной камеры комплексном электрическом элементе устройство, позволяющее выполнять отбор образцов золы для внешних, калибровочных исследований.
Особым преимуществом предложенного способа, наряду с достигаемой высокой точностью и малым разбросом результатов измерений, представляется простота осуществления. Он представляет собой легко реализуемое техническое решение и может с успехом применяться при решении многочисленных задач по определению остаточного содержания углерода отфильтрованной и летучей золы посредством определения изменения электрических параметров комплексного электрического элемента, содержащего образцы.
Перечень чертежей и иных материалов
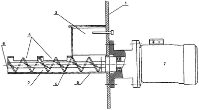
На чертеже представлен частичный разрез устройства для приготовления образцов согласно изобретению.
Сведения, подтверждающие возможность осуществления изобретения
Далее предложенный способ будет более подробно разъяснен на одном из примеров выполнения изобретения. На чертеже показан частичный разрез устройства для приготовления образцов, расположенного в боковой стенке 1 сборника золы. Это устройство состоит из шнекового конвейера 2 и выполненного в форме закрытой измерительной камеры комплексного электрического элемента 3. Транспортный шнек 4 шнекового конвейера 2 проходит внутри трубы 5, на торце, а также в верхней части которой имеются отверстия 6 для входа и выхода отфильтрованной или летучей золы. В описываемом конструктивном исполнении длина шнекового конвейера составляет приблизительно 300 мм, а диаметр приблизительно 40 мм. Верхние отверстия 6 выполнены как 60-миллиметровые углубления в трубе, открывающие дугу приблизительно в 40°. Шнек 4 приводится в действие электродвигателем 7, расположенным вне сборника. Находящийся внутри сборника поверх шнекового конвейера 2 и прилегающий к внутренней стенке 1 сборника комплексный электрический элемент 3 расположен таким образом, чтобы можно было подавать собранную при помощи шнека 4 летучую золу в комплексный электрический элемент 3.
Для отбора образцов шнековый конвейер 2 размещается внутри сыпучей массы отфильтрованной или летучей золы. Отфильтрованная или летучая зола поступает через верхние отверстия 6 и при необходимости через отверстие 6 в торце трубы в шнековый конвейер 2 и подается путем вращения шнека 4 в закрытую измерительную камеру комплексного электрического элемента 3 и все более уплотняется. При скачкообразном увеличении воспринимаемого шнековым конвейером 2 крутящего момента от 0,1 Н/м до приблизительно 0,3 Н/м внутри закрытой измерительной камеры комплексного электрического элемента 3 достигается определенное уплотнение отфильтрованной или летучей золы, позволяющее достаточно точно определять остаточное содержание углерода в отфильтрованной или летучей золе посредством определения изменения электрических параметров комплексного электрического элемента 3, в котором находится уплотненная отфильтрованная или летучая зола. Достигаемый разброс измеренных значений в описываемом примере выполнения составляет менее 0,2%.
После выполнения измерения производится опорожнение комплексного электрического элемента 3 путем изменения направления вращения шнека 4, а отфильтрованная или летучая зола подается обратно в сборник.
Формула изобретения
1. Способ приготовления образцов из отфильтрованной или летучей золы для определения остаточного содержания углерода посредством определения изменения электрических параметров комплексного электрического элемента (3), содержащего образцы, в котором указанную золу подают в комплексный электрический элемент (3) и уплотняют посредством шнекового конвейера (2), отличающийся тем, что комплексный электрический элемент (3) выполняют в форме закрытой измерительной камеры, а уплотнение золы осуществляют до наступления скачкообразного увеличения крутящего момента, прилагаемого к шнеку при подаче и уплотнении золы.
2. Способ по п.1, отличающийся тем, что отфильтрованную или летучую золу уплотняют до наступления скачкообразного увеличения крутящего момента на 200%.
РИСУНКИ
|
|