|
|
(21), (22) Заявка: 2005131921/06, 05.10.2005
(24) Дата начала отсчета срока действия патента:
05.10.2005
(46) Опубликовано: 10.12.2006
(56) Список документов, цитированных в отчете о поиске:
RU 2138622 C1, 27.09.1999. RU 2247283 C1, 27.02.2005. SU 1726736 A1, 15.04.1992. RU 2165054 C1, 10.04.2001. RU 2045715 C1, 10.10.1995. RU 2132517 C1, 27.06.1999. US 5713415 A, 03.02.1998.
Адрес для переписки:
190013, Санкт-Петербург, а/я 148, Н.А. Хмелевской
|
(72) Автор(ы):
Шаматов Индус Кашипович (RU), Галеев Индус Хамитович (RU), Захматов Юрий Павлович (RU), Лужецкий Вячеслав Прокофьевич (RU), Мусин Ильшат Гайсеевич (RU), Тимошкина Ольга Александровна (RU), Шаматов Руслан Индусович (RU), Шарапов Нурислям Нуруллович (RU)
(73) Патентообладатель(и):
Общество с ограниченной ответственностью “Новые энергосберегающие технологии” (RU)
|
(54) СПОСОБ ПОДАЧИ ТЕПЛА В ПЛАСТ ЗАЛЕЖИ УГЛЕВОДОРОДОВ
(57) Реферат:
Изобретение предназначено для использования в геологодобывающих отраслях в технологиях термозаводнения для добычи тяжелых нефтей, а также для подогрева жидкостей типа нефти при их перекачке с целью снижения вязкости жидкости и улучшения ее реологических свойств. Способ подачи тепла в пласт залежи углеводородов заключается в подаче воды в вихревой теплогенератор, формировании вихревого потока воды в нем при обеспечении кавитационного режима течения вихревого потока с последующим отводом получаемого в вихревом теплогенераторе тепла от выходящего потока. Формирование вихревого потока воды в нем обеспечено образованием кавитационного режима течения вихревого потока с одновременным резонансным усилением, подачу воды осуществляют поочередно в несколько вихревых теплогенераторов, расположенных последовательно один за другим в системе трубопроводов, по которой подводят поток теплоносителя в пласт, при этом формирование вихревого потока воды при обеспечении кавитационного режима течения вихревого потока и резонансного усиления осуществляют в каждом теплогенераторе, причем выходной поток из предыдущего теплогенератора поступательно подается в качестве входного потока последующего генератора с использованием его тепла, а перед каждым теплогенератором вихревой поток формируют поступательным вдоль оси трубопровода, при этом расстояние между выходным соплом предыдущего теплогенератора и входным соплом последующего теплогенератора. рассчитано по формуле Бернулли для стационарного потока жидкости. За счет этого добиваются увеличения нефтеотдачи пластов при добыче тяжелой нефти. 2 з.п. ф-лы, 1 ил.
Способ подачи тепла в пласт предназначен для использования в технологиях термозаводнения для добычи тяжелых нефтей. С помощью предложенного способа добиваются увеличения нефтеотдачи пластов при добыче тяжелой нефти. Применяется как в геологодобывающих отраслях, так и для подогрева жидкостей типа нефти при их перекачке с целью снижения вязкости жидкости и улучшения ее реологических свойств. В том числе в тепловых сетях для обеспечения дополнительного подогрева по трассе при перекачке и для обеспечения восполнения потерь тепла при прохождении жидкости по трассе.
Известно изобретение «Агрегат теплогенераторов», заявка RU №2001102815, опубл. 27.05.2003, МПК F 25 B 29/00, включающий несколько однотипных теплогенераторов, последовательно соединенных в единый агрегат, емкость с водой и магистральный трубопровод. Однако назначением агрегата является замкнутые системы теплосетей. Кроме того, агрегат требует преобразования теплоносителя в парогазовую смесь, для получения парогазовой смеси, для чего, в свою очередь, требуется сложная система электролизации. Кроме того, устройство имеет сложную систему очистки теплоносителя. Все вышеуказанное существенно усложняет конструкцию.
Известно изобретение «Способ эксплуатации скважины и установка для его реализации», патент RU №2138622, опубл. 10.07.1999, МПК Е 21 В 43/00, состоящий в спуске вспомогательной трубы в скважину, подаче среды в полость вспомогательной трубы, заполнение полости вспомогательной трубы и полости за добывающим подъемником средой для нагревания, причем используют вспомогательную трубу постоянного или переменного сечения и концентрично или эксцентрично спускают ее снаружи добывающего подъемника. Способ позволяет исключить образование отложений в добывающем подъемнике. Однако способ имеет узкую область применения. Кроме того, в способе используют теплонагреватели, например электрические, которые в свою очередь, нагревают теплоноситель в закрытой трубе. Этим самым существенно увеличиваются потери тепла при передаче его в нефтяной пласт и усложняется конструкция. Кроме того, способ не использует преобразования энергии вращения в тепловую энергию.
Известно изобретение «Устройство и способ кашеварова для продления срока эксплуатации нефтяных месторождений», заявка RU №93013502, опубл. 27.01.1996, МПК Е 21 В 43/00, содержащее трубу с гидротурбиной и насос, закачивающий разогретую воду в нефтяной пласт. С помощью данного устройства реализуют способ регулируемого горения нефти путем подачи сжатого воздуха и воды в камеру горения, созданную в нефтеносном пласте. Однако устройство не использует способ преобразования энергии вращения в тепловую энергию.
Наиболее близким к предложенному техническому решению является изобретение «Способ получения тепла», патент RU №2165054, опубл. 10.04.2001, МПК F 24 J 3/00, в котором используют контур, в котором осуществляется постепенное повышение температуры воды, подаваемой на вход вихревой трубы теплогенератора, эффективность выработки тепла обеспечивает повышение температуры воды, подаваемой на вход вихревой трубы, вплоть до температуры 90°С. Однако получение тепла требует изменения и уточнения интервала температур воды, используемой для выработки тепла. Кроме того, процесс требует дополнительных мер по уменьшению радиационной опасности облучения нейтронами.
В настоящее время при добыче тяжелых нефтей требуется обеспечение дополнительного подогрева пласта для увеличении нефтедобычи. Для этого необходимо подать тепло в пласт с наименьшими затратами. Однако при прохождении, например, нагретой воды по трассе при перекачке и подаче в нефтяной пласт горячей воды под высоким давлением, существенно теряется тепло, а восполнение тепла требует сложных и дорогостоящих агрегатов, обеспечивающих подогрев подаваемой воды на всем протяжении трассы, т.е. требуется постоянное обеспечение восполнения потери тепла при прохождении воды по трассе.
Техническим результатом предложенного технического решения является упрощение конструкции системы подачи тепла в пласт, обеспечение путевого подогрева в трубопроводах высокого давления и подвода тепла требуемой температуры, интенсификация подачи тепла без промежуточных потерь, увеличение надежности системы.
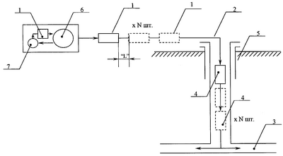
Данный технический результат осуществляется с помощью предложенного способа. Для этого осуществляют подачу воды в вихревой теплогенератор (1), формируют вихревой поток воды в нем при обеспечении кавитационного режима течения вихревого потока последующим отводом получаемого в вихревом теплогенераторе тепла от выходящего потока. Предложенный способ отличается тем, что формирование вихревого потока воды в теплогенераторе обеспечено с образованием кавитационного режима течения вихревого потока с одновременным резонансным усилением. Подачу воды осуществляют поочередно в несколько вихревых теплогенераторов (1), расположенных последовательно один за другим в системе трубопроводов (2), по которой подводят поток теплоносителя в пласт. Вихревой поток воды формируют при обеспечении кавитационного режима течения вихревого потока и резонансного усиления в каждом из N теплогенераторов, причем выходной поток из предыдущего теплогенератора поступательно подается в качестве входного потока последующего генератора с использованием его тепла, а перед каждым теплогенератором вихревой поток формируют поступательным вдоль оси трубопровода. При этом расстояние «L» между выходным соплом предыдущего теплогенератора и входным соплом последующего теплогенератора рассчитано по формуле Бернулли для стационарного потока жидкости, за счет чего обеспечивают ламинарный поток подаваемой воды. Отвод тепла от выходящего потока последнего теплогенератора осуществляют путем подачи нагретой воды в нефтяной пласт (3). Возможен вариант, когда путевые теплогенераторы (1) устанавливают группами по N теплогенераторов в наземной части системы трубопродов высокого давления и дополнительно устанавливают группу из К скважинных теплогенераторов (4) в нагнетательной скважине (5). Кроме того, для подачи воды из трубопровода (2) в первый вихревой теплогенератор устанавливают буферную емкость (6), в которую нагнетают под давлением воду с помощью центробежного насоса (7).
Предложенное техническое решение иллюстрируют чертежом, на котором изображена принципиальная схема способа термозаводнения для добычи тяжелых нефтей.
Способ осуществляют следующим образом.
В наземной части системы устанавливают теплогенератор на кустовой насосной станции (КНС), вода по циркуляционной схеме через буферную емкость нагревается до температуры 60-75°С. Далее вода попадает в буферную емкость, далее через КНС вода поступает в трубопровод, который соосен с продольной осью теплогенератора. В N теплогенераторах наземной части системы вода нагревается до температуры 80°С, после которого нагретая вода через наземную часть трубопровода высокого давления поступает в скважину, в которой также расположен вертикальный трубопровод высокого давления. Из него вода последовательно попадает в скваженные теплогенераторы, встроенные в насосно-компрессорные трубы (НКТ), где осуществляется дополнительный нагрев воды до 85°С. Вертикальная подвеска НКТ размещается в эксплуатационной колонне нагнетательной скважины до нефтяного пласта. Нагретая с помощью серии последовательно расположенных теплогенераторов вода поступает из выходного патрубка в подпакерное пространство эксплуатационной колонны и далее в нефтяной пласт.
За счет того что каждый последующий теплогенератор дополнительно нагревает прокачиваемую воду, обеспечивается восполнение потерь тепла на участках прокачки воды через трубопровод. Кроме того, благодаря соосному расположению трубопровода и теплогенераторов, а также отсутствию тангенциальной подачи дополнительного напора воды в теплогенераторы, осуществляется дополнительный подогрев воды по трассе при прокачке с наименьшими потерями выделяемой тепловой энергии. На выходе из теплогенератора, простой турбулентный поток в выходном трубопроводе постепенно затормаживается и устанавливается, становясь потоком с установившимся движением, плавно меняющим свое движение, т.е. ламинарным. Поскольку необходимо соблюсти условие обеспечения ламинарного потока на входе каждого последующего теплогенератора, они расположены с интервалом, не чаще расстояния, требуемого для стабилизации потока, что подсчитывается на основании формулы Бернулли.
Минимальные потери и дополнительный нагрев воды в системе осуществляется за счет использования теплогенератора, в котором выделение энергии потока осуществляется из вихревого потока воды, который формируют при обеспечении кавитационного режима течения вихревого потока и резонансного усиления в каждом из теплогенераторов. Наличие резонансных возмущений, наложенных на вихревой кавитационный поток, позволяет увеличить эффективность выделения внутренней энергии потока. За счет сосной подачи потока на входе каждого теплогенератора, уменьшаются потери этой энергии через стенки трубопровода, т.к. существенно уменьшаются местные потери напора потока за счет отсутствия местных препятствий, например, в виде колен трубопровода.
Реализация технологии термозаводнения с помощью предложенного метода обеспечивает увеличение нефтеотдачи пластов при добыче тяжелой нефти.
Формула изобретения
1. Способ подачи тепла в пласт залежи углеводородов, состоящий в подаче воды в вихревой теплогенератор, формировании вихревого потока воды в нем при обеспечении кавитационного режима течения вихревого потока с последующим отводом получаемого в вихревом теплогенераторе тепла от выходящего потока, отличающийся тем, что формирование вихревого потока воды в нем обеспечено с образованием кавитационного режима течения вихревого потока с одновременным резонансным усилением, подачу воды осуществляют поочередно в несколько вихревых теплогенераторов, расположенных последовательно один за другим в системе трубопроводов, по которой подводят поток теплоносителя в пласт, при этом формирование вихревого потока воды при обеспечении кавитационного режима течения вихревого потока и резонансного усиления осуществляют в каждом теплогенераторе, причем выходной поток из предыдущего теплогенератора поступательно подается в качестве входного потока последующего генератора с использованием его тепла, а перед каждым теплогенератором вихревой поток формируют поступательным вдоль оси трубопровода, при этом расстояние между выходным соплом предыдущего теплогенератора и входным соплом последующего теплогенератора рассчитано по формуле Бернулли для стационарного потока жидкости, что обеспечивает ламинарный поток подаваемой воды, а отвод тепла от выходящего потока последнего теплогенератора осуществляют путем подачи нагретой воды в нефтяной пласт.
2. Способ подачи тепла в пласт залежи углеводородов по п.1, отличающийся тем, что путевые теплогенераторы устанавливают группами по N теплогенераторов в наземной части системы трубопродов высокого давления и дополнительно устанавливают группу из К скважинных теплогенераторов в нагнетательной скважине.
3. Способ подачи тепла в пласт залежи углеводородов по п.1, отличающийся тем, что для подачи воды из трубопровода в первый вихревой теплогенератор устанавливают буферную емкость, в которую нагнетают под давлением воду с помощью центробежного насоса.
РИСУНКИ
|
|