|
|
(21), (22) Заявка: 2004114832/28, 06.11.2002
(24) Дата начала отсчета срока действия патента:
06.11.2002
(30) Конвенционный приоритет:
14.11.2001 FI 20012213
(43) Дата публикации заявки: 27.02.2005
(46) Опубликовано: 10.07.2006
(56) Список документов, цитированных в отчете о поиске:
SU 1796978 A1, 23.02.1993. RU 2105108 C1, 20.02.1998. СН 665482, 13.05.1988. SU 1492276 A1, 07.07.1989. US 5739436, 14.04.1998. SU 88052 A1, 01.01.1950.
(85) Дата перевода заявки PCT на национальную фазу:
15.06.2004
(86) Заявка PCT:
FI 02/00863 (06.11.2002)
(87) Публикация PCT:
WO 03/042665 (22.05.2003)
Адрес для переписки:
191002, Санкт-Петербург, а/я 5, ООО “Ляпунов и партнеры”, пат.пов. В.В.Дощечкиной
|
(72) Автор(ы):
ХЕСЕЛИУС Ларс (FI), ВИЛЛМАН Тармо (FI), ФЕЛЛМАН Якоб (FI)
(73) Патентообладатель(и):
ПАРОК ГРУП ОЙ АБ (FI)
|
(54) УСТРОЙСТВО И СПОСОБ ОПРЕДЕЛЕНИЯ ПРОЧНОСТИ НА СДВИГ МИНЕРАЛЬНОЙ ВАТЫ, ИСПОЛЬЗУЕМОЙ В СРЕДНЕЙ ЧАСТИ МНОГОСЛОЙНЫХ ПАНЕЛЕЙ
(57) Реферат:
Изобретение относится к устройству и способу определения прочности на сдвиг минеральной ваты. Техническим результатом является быстрота выполнения испытания прочности на сдвиг и возможность использования для непрерывного контроля выпускаемой продукции. Устройство (1) содержит подвижный зажимной элемент (2) и расположенный рядом с ним неподвижный зажимной элемент (3), каждый из которых снабжен полостью (2а, 3а), выполненной с возможностью установки в них части испытуемого образца (15) в виде полосы минеральной ваты. Устройство выполнено с возможностью приложения усилия F к подвижному зажимному элементу для перемещения подвижного зажимного элемента (2) относительно неподвижного зажимного элемента (3) для достижения сдвига испытуемой полосы (15) на участке (14) между подвижным и неподвижным зажимными элементами. Устройство дополнительно снабжено средствами (16) для измерения величины усилия F. Способ включает отрезание испытуемого образца (15) минеральной ваты в виде полосы, имеющей определенные размеры, затем указанную полосу помещают в устройство (1) для измерения прочности на сдвиг. 2 н. и 3 з.п. ф-лы, 5 ил.
Настоящее изобретение относится к устройству и способу определения прочности на сдвиг теплоизоляции, изготовленной, например, из структурированной ваты, или из полимерной пены или полистирольной пены. Структурированная вата, т.е. так называемая твердая вата содержит слои волокон минеральной ваты, образующие стеновую панель. Панель из минеральной ваты может быть использована в различных областях, где требуется теплоизоляция, или она может быть использована в различных многослойных конструкциях, например, в многослойных панелях, содержащих наружные панели из листовой стали, покрытой пластиком, и средний слой минеральной ваты между ними. Указанный средний слой может быть изготовлен прямо из мата минеральной ваты с волокнами, расположенными по существу параллельно наружным панелям, или, например, таким образом, что мат минеральной ваты нарезают на длинные тонкие полосы – ламели, которые разворачивают на 90° вокруг продольной оси таким образом, что волокна располагаются по существу перпендикулярно наружным панелям многослойной панели. Ламели склеивают друг с другом последовательно боковыми сторонами для получения средней части из минеральной ваты требуемых размеров, причем ширина ламели, отрезанной из мата минеральной ваты, определяет толщину среднего слоя. Таким образом, средняя часть, изготовленная как панель из минеральной ваты, служит в качестве структурированной ваты. В так называемых легковесных многослойных элементах средняя часть может быть изготовлена из полиуретановых и полистирольных пен вместо структурированной ваты. Устройство и способ, предложенные в изобретении, могут также быть использованы для испытания средних частей таких элементов, поскольку среднюю часть изготавливают как готовый модуль, который затем прочно приклеивают к наружным панелям многослойной панели.
К структурированной вате предъявляют различные требования по прочностным характеристикам, одно из которых – это величина прочности на сдвиг. До сих пор прочность на сдвиг измеряли, главным образом, согласно способу, указанному в стандарте SFS-EN 12090, который, однако, является неудобным и медленным процессом. Стандартный способ требует, по меньшей мере, 30 минут или больше, так как необходимо дождаться высыхания клея. Таким образом, задачей изобретения является предложение нового способа определения прочности структурированной ваты на сдвиг, причем устройство, реализующее этот способ, характеризуется тем, что содержит подвижный зажимной элемент и расположенный рядом с ним неподвижный зажимной элемент, каждый из которых имеет полость, с возможностью установки в нее части испытуемого образца в виде полосы, отрезанной от теплоизоляции, причем указанное устройство выполнено с возможностью приложения усилия F к подвижному зажимному элементу для перемещения подвижного зажимного элемента относительно неподвижного зажимного элемента для достижения сдвига испытуемой полосы на участке между подвижным зажимным элементом и неподвижным зажимным элементом, причем указанное устройство дополнительно снабжено средствами для измерения величины усилия F.
Дополнительно устройство может быть выполнено с возможностью перемещения подвижного зажимного элемента относительно неподвижного с постоянной скоростью, величина которой может быть различной. С другой стороны, способ, предложенный в изобретении, характеризуется тем, что вначале отрезают испытуемый образец теплоизоляции в виде полосы, имеющей определенные размеры, затем указанную полосу помещают в устройство для измерения прочности на сдвиг, где указанное устройство содержит подвижный зажимной элемент и расположенный рядом с ним неподвижный зажимной элемент, каждый из которых снабжен полостью, выполненной с возможностью помещения в нее части испытуемого образца в виде полосы, причем указанное устройство используют для приложения усилия F к подвижному зажимному элементу для перемещения подвижного зажимного элемента относительно неподвижного зажимного элемента для достижения сдвига испытуемой полосы на участке между подвижным зажимным элементом и неподвижным зажимным элементом, причем измеряют величину усилия F и на ее основе определяют прочность на сдвиг.
Дополнительно способ включает помещение полосы в указанные полости таким образом, что волокна полосы лежат по существу параллельно направлению прилагаемого усилия F.
Преимущество предложенного способа определения прочности на сдвиг заключается в том, что испытание прочности на сдвиг может быть выполнено быстро, так как оно требует не более 2-3 минут и, таким образом, может быть использовано для непрерывного контроля выпускаемой продукции. Европейский производственный стандарт, относящийся к многослойным панелям, находится в стадии разработки, выбранный в нем способ испытаний – это так называемый тест с помощью образцов-балок. Тест с помощью образцов-балок включает отрезание элемента в виде балки примерно 100-200 мм шириной и 1000-2000 мм длиной. Этот способ хорошо подходит для испытаний готового продукта, но не для испытания только средней части и, кроме того, он требует много времени и, таким образом, не подходит для непосредственного контроля выпускаемой продукции.
Ниже изобретение описано более подробно со ссылками на прилагаемые чертежи, в которых:
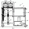
фиг.1-3 изображают схематично устройство, выполненное согласно изобретению в типичном варианте выполнения, на виде слева, спереди и справа соответственно;
фиг.4 изображает схематично выполнение теста на определение прочности на сдвиг минеральной ваты с использованием способа, предложенного в изобретении;
фиг.5 изображает схематично выполнение теста на определение прочности на сдвиг минеральной ваты с использованием другого способа, предложенного в изобретении.
Устройство 1, как показано на фиг.1-3, содержит раму 4, подвижно установленную на колесах 11. Сверху на раме 4 установлен подвижный зажимной элемент 2 и неподвижный зажимной элемент 3, имеющие полости 2а и 3а соответственно, в которые может быть вставлен испытуемый образец 15, отрезанный от мата минеральной ваты. Неподвижность испытуемого образца обеспечивают с помощью зубьев 10, имеющихся в полости каждого зажимного элемента. Неподвижный зажимной элемент 3 остается неподвижным на раме 4, тогда как подвижный зажимной элемент 2 выполнен с возможность перемещения под воздействием каретки 6, установленной на линейных направляющих 7, в вертикальной плоскости. Это вертикальное перемещение осуществляют с помощью гидравлического цилиндра 5, соединенного с подвижным зажимным элементом 2 через динамометр 16. Устройство 1 дополнительно содержит гидравлический модуль 12 для обеспечения необходимого гидравлического усилия, а также распределительный щит 13.
При работе испытуемый образец в виде полосы 15, отрезанной от мата минеральной ваты, помещают, как показано на фиг.4, в приемную полость 2а и соответственно 3а подвижного элемента 2 и неподвижного элемента 3, после чего к подвижному элементу 2 прикладывают усилие F путем смещения подвижного элемента 2 с постоянной скоростью перемещения относительно неподвижного элемента 3, в результате чего, как только усилие F достигает определенной величины, полоса 15 минеральной ваты подвергается сдвигу на участке 14 между подвижным и неподвижным элементами. Динамометр 16 может быть использован для измерения величины усилия F в различные моменты времени и для определения прочности на сдвиг мата минеральной ваты при максимальном усилии. Для проведения испытания предпочтительно выбирают четыре образца, среднее значение прочности на сдвиг рассчитывают исходя из разрушающей нагрузки на сдвиг для каждого испытуемого мата минеральной ваты. Испытуемый образец отличается от конечного продукта, так как отсутствуют наружные панели, что дает в результате определенное искажение значения прочности на сдвиг по сравнению со значением прочности на сдвиг для конечного продукта, но это искажение может быть скорректировано с использованием определенного калибровочного коэффициента, определяемого экспериментальным или расчетным путем.
На фиг.5 показано определение прочности на сдвиг с помощью способа, предложенного в изобретении, в другом варианте выполнения, в котором содержатся два неподвижных зажимных элемента 3 и подвижный зажимной элемент 2, расположенный между ними, к которому прилагают усилие F для его перемещения относительно неподвижных элементов. Испытуемую полосу 15 устанавливают в устройстве таким образом, что она расположена в полостях всех трех зажимных элементов, причем при работе устройства полосу сдвигают на двух участках.
Главное преимущество при использовании способа, предложенного в изобретении, это простота и быстрота, что делает возможным использование способа также для непрерывного контроля выпускаемой продукции. Способ и устройство описаны выше главным образом применительно для определения прочности на сдвиг минеральной ваты, и в особенности для минеральной ваты, используемой для средней части многослойных элементов, но они также применимы для других типов теплоизоляции, в которой прочность на сдвиг является важным фактором. Структурированная вата может быть использована не только в средней части многослойных элементов, но также, например, для наружной теплоизоляции путем приклеивания тонких полос ваты прямо на поверхность стены и покрытия сверху слоем штукатурки.
Формула изобретения
1. Устройство (1) для определения прочности на сдвиг минеральной ваты, используемой в средней части многослойных панелей, характеризующееся тем, что содержит подвижный зажимной элемент (2) и расположенный рядом с ним, по меньшей мере, один неподвижный зажимной элемент (3), каждый из которых имеет полость (2а, 3а), с возможностью установки в них части испытуемого образца в виде полосы минеральной ваты, причем указанное устройство выполнено с возможностью приложения усилия F к подвижному зажимному элементу для перемещения подвижного зажимного элемента (2) относительно неподвижного зажимного элемента (3) для достижения сдвига испытуемой полосы (15) на участке (14) между подвижным зажимным элементом (2) и неподвижным зажимным элементом (3), указанное устройство дополнительно снабжено средствами (16) для измерения величины усилия F, на основании которой определяют прочность на сдвиг.
2. Устройство по п.1, характеризующееся тем, что содержит два неподвижных зажимных элемента (3), причем подвижный зажимной элемент (2) расположен между ними.
3. Устройство по п.1, характеризующееся тем, что устройство выполнено с возможностью перемещения подвижного зажимного элемента (2) относительно неподвижного зажимного элемента (3) с постоянной скоростью, величина которой может быть различной.
4. Способ определения прочности на сдвиг минеральной ваты, используемой в средней части многослойных панелей, характеризующийся тем, что вначале отрезают испытуемый образец (15) минеральной ваты в виде полосы, имеющей определенные размеры, затем указанную полосу помещают в устройство (1) для измерения прочности на сдвиг, где указанное устройство содержит подвижный зажимной элемент (2) и расположенный рядом с ним неподвижный зажимной элемент (3), каждый из которых снабжен полостью (2а, 3а), выполненной с возможностью помещения в нее части испытуемого образца (15) в виде полосы, причем указанное устройство используют для приложения усилия F к подвижному зажимному элементу для перемещения подвижного зажимного элемента (2) относительно неподвижного зажимного элемента (3) для достижения сдвига испытуемой полосы на участке (14) между подвижным зажимным элементом (2) и неподвижным зажимным элементом (3), причем измеряют величину указанного усилия F и на ее основе определяют прочность на сдвиг.
5. Способ по п.4, характеризующийся тем, что включает помещение полосы (15) в полости (2а и 3а) таким образом, что волокна полосы лежат, по существу, параллельно направлению прилагаемого усилия F.
РИСУНКИ
|
|