|
|
(21), (22) Заявка: 2005103999/06, 15.02.2005
(24) Дата начала отсчета срока действия патента:
15.02.2005
(46) Опубликовано: 27.06.2006
(56) Список документов, цитированных в отчете о поиске:
RU 2174183 C1, 27.02.2001. RU 2174182 C1, 27.09.2001. RU 2175390 C1, 27.10.2001. RU 2211341 C1, 27.08.2003. DE 3726786 A1, 23.02.1989. US 4628693 A, 16.12.1986.
Адрес для переписки:
432027, г.Ульяновск, ул. Северный Венец, 32, ГОУ ВПО “Ульяновский государственный технический университет”, проректору по научной работе
|
(72) Автор(ы):
Замалеев Мансур Масхутович (RU), Макарова Елена Владимировна (RU), Цюра Дарья Валентиновна (RU), Шарапов Владимир Иванович (RU)
(73) Патентообладатель(и):
Государственное образовательное учреждение высшего профессионального образования “Ульяновский государственный технический университет” (RU)
|
(54) СПОСОБ РАБОТЫ ТЕПЛОВОЙ ЭЛЕКТРИЧЕСКОЙ СТАНЦИИ
(57) Реферат:
Изобретение относится к области теплоэнергетики и предназначено для использования на тепловых электростанциях. Техническим результатом, достигаемым настоящим изобретением, является повышение надежности и экономичности тепловой электростанции за счет использования в качестве греющего агента для вакуумного деаэратора добавочной питательной воды стабильного источника низкопотенциального теплоносителя с технологически необходимыми параметрами. Для достижения этого результата предложен способ работы тепловой электрической станции, по которому пар из первых трех отборов теплофикационной турбины отводят на регенеративные подогреватели высокого давления, а из последних четырех – на регенеративные подогреватели низкого давления, в которых последовательно нагревают основной конденсат после конденсатора турбины и питательную воду, из седьмого и шестого отборов турбины отводят пар на подогрев сетевой воды соответственно в нижнем и верхнем сетевых подогревателях, в вакуумный деаэратор добавочной питательной воды направляют исходную воду и греющий агент, в качестве которого используют пар пятого отбора турбины. 1 ил.
Изобретение относится к области теплоэнергетики и может быть использовано на тепловых электростанциях.
Известны аналоги – способы работы тепловой электрической станции, по которым пар из первых трех отборов теплофикационной турбины отводят на регенеративные подогреватели высокого давления, а из последних четырех – на регенеративные подогреватели низкого давления, в которых последовательно нагревают основной конденсат после конденсатора турбины и питательную воду, из седьмого и шестого отборов турбины отводят пар на подогрев сетевой воды соответственно в нижнем и верхнем сетевых подогревателях, в вакуумный деаэратор добавочной питательной воды направляют исходную воду и греющий агент – конденсат греющего пара сетевого подогревателя (см. Патент №2174183 (RU). МПК7
Недостатками аналогов и прототипа являются пониженная надежность и экономичность, ограниченность сферы применения способа работы тепловой электростанции из-за невозможности обеспечения требуемой температуры греющего агента вакуумного деаэратора добавочной питательной воды, особенно в теплое время года, при снижении отопительной нагрузки теплофикационных турбин и отключении сетевых подогревателей.
Техническим результатом, достигаемым настоящим изобретением, является повышение надежности и экономичности тепловой электростанции за счет использования в качестве греющего агента для вакуумного деаэратора добавочной питательной воды стабильного источника низкопотенциального теплоносителя с технологически необходимыми параметрами.
Для достижения этого результата предложен способ работы тепловой электрической станции, по которому пар из первых трех отборов теплофикационной турбины отводят на регенеративные подогреватели высокого давления, а из последних четырех – на регенеративные подогреватели низкого давления, в которых последовательно нагревают основной конденсат после конденсатора турбины и питательную воду, из седьмого и шестого отборов турбины отводят пар на подогрев сетевой воды соответственно в нижнем и верхнем сетевых подогревателях, в вакуумный деаэратор добавочной питательной воды направляют исходную воду и греющий агент.
Особенность заключается в том, что в качестве греющего агента используют пар пятого отбора турбины.
Новый способ работы тепловой электрической станции позволяет повысить надежность и экономичность тепловой электростанции за счет применения в качестве греющей среды для вакуумного деаэратора добавочной питательной воды пара низкопотенциального пятого отбора турбины, параметры которого достаточны для обеспечения эффективной деаэрации и не зависят от отопительной нагрузки турбоагрегата.
Далее рассмотрим сведения, подтверждающие возможность осуществления изобретения с получением искомого технического результата.
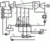
На чертеже изображена принципиальная схема тепловой электрической станции, поясняющая предложенный способ. Станция содержит паровой котел 1, теплофикационную турбину 2 с семью отборами пара 3-9, конденсатор 10, подключенный к конденсатору 10 трубопровод основного конденсата турбины 11 с включенным в него конденсатным насосом 12, регенеративные подогреватели низкого давления 13, нижний и верхний сетевые подогреватели 14 и 15, включенные в сетевой трубопровод 16 и подключенные к седьмому 9 и шестому 8 отборам турбины, вакуумный деаэратор добавочной питательной воды 17 с трубопроводом греющего агента 18, подключенным к пятому отбору пара 7.
Рассмотрим пример реализации заявленного способа работы тепловой электрической станции.
Вырабатываемый в паровом котле 1 пар направляют в турбину 2 и конденсируют в конденсаторе 10, основной конденсат турбины прокачивают конденсатным насосом 12 последовательно через регенеративные подогреватели низкого давления 13 и далее в деаэратор повышенного давления, после которого деаэрированную воду подают питательным насосом через регенеративные подогреватели высокого давления в паровой котел 1. Потери пара и конденсата из цикла станции компенсируют добавочной питательной водой, которую деаэрируют в вакуумном деаэраторе 17. В вакуумный деаэратор 17 по трубопроводу греющего агента 18 подают пар из пятого отбора турбины 7.
Таким образом, предложенный способ позволяет обеспечить нормативное качество добавочной питательной воды после вакуумного деаэратора в течение всего года за счет использования в качестве греющей среды для вакуумной деаэрации низкопотенциальной теплоты пятого отбора турбины, т.е. повысить надежность и экономичность работы электростанции. Экономичность станции также повышается за счет увеличения выработки электроэнергии на тепловом потреблении вследствие дополнительного расхода низкопотенциального пара из пятого отбора турбины.
Формула изобретения
Способ работы тепловой электрической станции, по которому пар из первых трех отборов теплофикационной турбины отводят на регенеративные подогреватели высокого давления, а из последних четырех – на регенеративные подогреватели низкого давления, в которых последовательно нагревают основной конденсат после конденсатора турбины и питательную воду, из седьмого и шестого отборов турбины отводят пар на подогрев сетевой воды соответственно в нижнем и верхнем сетевых подогревателях, в вакуумный деаэратор добавочной питательной воды направляют исходную воду и греющий агент, отличающийся тем, что в качестве греющего агента используют пар пятого отбора турбины.
РИСУНКИ
|
|