|
|
(21), (22) Заявка: 2004132611/02, 09.11.2004
(24) Дата начала отсчета срока действия патента:
09.11.2004
(45) Опубликовано: 10.05.2006
(56) Список документов, цитированных в отчете о поиске:
RU 2167135 С2, 20.05.2001. RU 2226520 С2, 10.04.2004. US 3562364 А, 09.02.1971. US 5619073 A, 08.04.1997. GB 2264705 A, 08.09.1993.
Адрес для переписки:
614113, г.Пермь, ул. Чистопольская, 16, ФГУП “НИИПМ”, ген. директору А.П.Талалаеву
|
(72) Автор(ы):
Талалаев Анатолий Петрович (RU), Куценко Геннадий Васильевич (RU), Салахов Рафис Фассахович (RU), Шеврикуко Иван Дмитриевич (RU), Федосеев Юрий Алексеевич (RU), Салахов Радус Фассахович (RU), Ступникова Валентина Алексеевна (RU), Ананьев Николай Григорьевич (RU), Федченко Николай Николаевич (RU), Гринберг Семен Ионович (RU)
(73) Патентообладатель(и):
Федеральное государственное унитарное предприятие “Научно-исследовательский институт полимерных материалов” (RU), Федеральное государственное унитарное предприятие “Пермский завод им. С.М. Кирова” (RU)
|
(54) СПОСОБ СМЕШЕНИЯ КОМПОНЕНТОВ ВЗРЫВЧАТОГО СОСТАВА И ФОРМОВАНИЯ ИЗ НЕГО ИЗДЕЛИЯ
(57) Реферат:
Изобретение относится к области смешения компонентов взрывчатого состава и формования из него изделия. Предложенный способ включает приготовление состава в смесителе, присоединение съемного корпуса смесителя к гидравлической системе вытеснения и к установке дистанционного заполнения, формование изделия путем подачи состава снизу в вертикально расположенную пресс-форму и полимеризацию с поддержанием избыточного давления в пресс-форме, при этом группу изделий формуют поочередно в пресс-формы, закрепленные на съемном барабане поворотного стола установки дистанционного заполнения, повторяя операции по формованию изделия для заполнения составом для каждой пресс-формы, полимеризуют изделия, закрепленные на барабане, обеспечивающем одинаковые режимы по температуре и давлению в пресс-формах. Изобретение обеспечивает высокое качество изделия по монолитности и повышение производительности. 1 ил.
Изобретение относится к области смешения компонентов взрывчатого состава и формования из него изделия, а конкретно – к способу смешения компонентов взрывчатого состава и формования из него изделия с применением вертикального смесителя планетарного типа со съемным корпусом.
Известны способы производства зарядов по патенту США №3807272, по патенту ФРГ №2303065. способ дистанционной заливки высокоэнергетической топливной смеси в корпус двигателя по патенту США №3562364, принятые за аналоги. Применение этих способов предусматривает приготовление топливной смеси в вертикальном смесителе планетарного типа со съемным корпусом, отсоединение съемного корпуса от перемешивающих устройств, помещение подвижного вытеснительного диска на зеркало топливной смеси, формование зарядов в вертикально расположенную пресс-форму на установке дистанционного заполнения путем подачи топливной смеси сверху при вакуумировании пресс-формы.
Применение указанных способов изготовления заряда требует вакуумирования пресс-формы, создания в ней дополнительных объемов для обеспечения возможности выхода в них в процессе формования и удаляемых впоследствии с остатками воздуха неоднородных частей топливной смеси и не обеспечивает высокой производительности, низкой трудоемкости технологического процесса из-за формования изделия путем расположения на установке дистанционного заполнения одной пресс-формы.
Наиболее близким по технической сути и достигаемому техническому результату к заявляемому способу является способ изготовления зарядов из смесевого твердого топлива по патенту РФ №2167135 (МПК С 06 В 21/00), принятый авторами за прототип. Указанный способ включает приготовление состава в вертикальном смесителе со съемным корпусом, снабженным затвором, отсоединение корпуса от смесительной головки, присоединение к поршневой гидравлической системе вытеснения и к установке дистанционного заполнения, подачу состава снизу в вертикально расположенную пресс-форму с отсекателем без вакуумирования, формование в ней изделия подачей давления на поршень гидравлической системы вытеснения и полимеризацию с поддержанием избыточного давления в пресс-форме.
Изготовление зарядов по указанному способу значительно повышает их качество, не требует наличия в пресс-формах в дальнейшем удаляемых прибыльных объемов и обеспечивает получение бездефектных зарядов без вакуумирования пресс-формы.
К недостаткам известного способа изготовления зарядов из смесевого твердого топлива, принятого за прототип, относится то, что он предусматривает, как и при использовании способов-аналогов, формование заряда путем подачи состава в одиночно расположенную на установке дистанционного заполнения пресс-форму. Это резко ухудшает технико-экономические показатели технологического процесса (снижается производительность, повышается трудоемкость).
Технической задачей настоящего изобретения является создание способа смешения компонентов взрывчатого состава и формование из него изделия, обеспечивающего высокое его качество по монолитности (отсутствию воздушных включений) при повышении производительности, снижении трудозатрат изготовления изделия за счет заполнения (с последующей групповой полимеризацией), большого количества пресс-форм, расположенных на установке дистанционного заполнения, в единой сборке (за счет группового формования и полимеризации).
Указанный технический результат при осуществлении изобретения достигается тем, что в известном способе смешения компонентов взрывчатого состава и формования из него изделия, включающем приготовление состава в вертикальном смесителе со съемным корпусом, снабженным затвором, отсоединение корпуса от смесительной головки, присоединение к поршневой гидравлической системе вытеснения и к установке дистанционного заполнения, подачу состава снизу в вертикально расположенную пресс-форму с отсекателем, формование в ней изделия подачей давления на поршень гидравлической системы вытеснения, полимеризацию с поддержанием избыточного давления в пресс-форме, особенность заключается в том, что изделие формуют в пресс-форму, закрепленную на съемном барабане поворотного стола установки дистанционного заполнения, для формования изделия стол с пресс-формами, закрепленными на его барабане, поворачивают относительно заливочного патрубка установки дистанционного заполнения до совмещения горловины пресс-формы с заливочным патрубком установки дистанционного заполнения, поджимают пресс-форму к заливочному патрубку установки дистанционного заполнения, открывают отсекатель пресс-формы, подают давление на поршень гидравлической системы вытеснения, открывают затвор смесителя, формуют изделие подачей состава в пресс-форму, при достижении избыточного давления в установке дистанционного заполнения 0,2…0,5 МПа закрывают отсекатель пресс-формы, прекращают подачу давления на поршень гидравлической системы вытеснения, выравнивают с атмосферным давление в установке дистанционного заполнения и закрывают затвор смесителя, после чего заполненную пресс-форму отжимают от заливочного патрубка установки дистанционного заполнения, поворачивают стол с пресс-формами, закрепленными на его барабане, до совмещения горловины следующей пресс-формы с заливочным патрубком установки дистанционного заполнения и операции по формованию изделия повторяют для заполнения составом всех пресс-форм, закрепленных на барабане, после чего барабан с заполненными пресс-формами снимают с поворотного стола установки дистанционного заполнения и полимеризуют изделия, закрепленные на барабане, обеспечивающем одинаковые режимы по температуре и давлению в пресс-формах.
Наличие в описываемом способе смешения компонентов взрывчатого состава и формования из него изделия совокупности действий, порядка их выполнения во времени и условиями, обеспечивающими возможность выполнения этих действий, позволяет в частности, за счет:
– формования изделия в пресс-форму, закрепленную на схемном барабане поворотного стола установки дистанционного заполнения – обеспечить групповое заполнение большого количества пресс-форм, собранных в единую сборку, в автоматическом режиме;
– поворачивания стола с пресс-формами, закрепленными на его барабане перед формованием изделия относительно заливочного патрубка установки дистанционного заполнения до совмещения горловины пресс-формы с заливочным патрубком установки дистанционного заполнения и поджима пресс-формы к заливочному патрубку установки дистанционного заполнения – обеспечить герметичную стыковку установки дистанционного заполнения с заполняемой составом пресс-формой и качество формуемого изделия;
– открытия отсекателя пресс-формы, подачи давления на поршень гидравлической системы вытеснения перед открытием затвора смесителя – исключить отрыв состава от поршня гидравлической системы вытеснения и попадание воздушных включений в формуемое изделие;
– закрытия отсекателя пресс-формы при достижении избыточного давления в установке дистанционного заполнения 0,2…0,5 МПа – обеспечить отсечку состава в пресс-форме после его заполнения от установки дистанционного заполнения при сохранении необходимого давления состава в пресс-форме и качество изделия по монолитности;
– прекращения подачи давления на поршень гидравлической системы вытеснения и выравнивания давления в установке дистанционного заполнения с атмосферным перед закрытием затвора смесителя – исключить вытекание состава из установки дистанционного заполнения при отжиме (отсоединении) заполненой пресс-формы от установки дистанционного заполнения;
– повторения операций по формованию изделия для заполнения составом всех пресс-форм, закрепленных на барабане до отправки барабана с заполненными пресс-формами на полимеризацию – обеспечить одиночное формование каждого изделия в автоматическом режиме, высокую производительность процесса, качество изделий по монолитности;
– полимеризации изделий, закрепленных на барабане, обеспечивающей одинаковые режимы по температуре и давлению в пресс-формах – максимально снизить разброс характеристик изделий, изготовленных в одном запуске технологического оборудования.
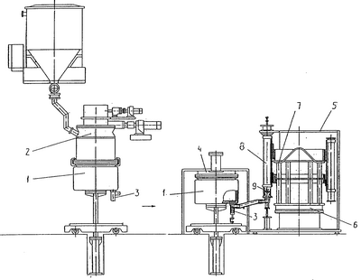
На чертеже изображена схема формования изделия из взрывчатого состава по предлагаемому способу. На схеме цифрами обозначены: корпус смесителя 1, головка смесительная 2, затвор смесителя 3, поршневая гидравлическая система вытеснения 4, установка дистанционного заполнения 5, стол поворотный 6, барабан 7, пресс-форма 8, отсекатель пресс-формы 9.
Смешение компонентов взрывчатого состава и формование из него изделия по предлагаемому способу осуществляется следующим образом.
Для приготовления состава жидковязкие и порошкообразные компоненты дозируют в съемный корпус 1 смесителя со смесительной головкой 2 и затвором 3, перемешивают компоненты сначала без вакуума, затем с применением вакуума до получения однородной смеси. После приготовления состава корпус 1 смесителя отсоединяют от смесительной головки 2, транспортируют на позицию формования и присоединяют к поршневой гидравлической системе вытеснения 4 и к установке дистанционного заполнения 5, на поворотном столе 6 которой установлен съемный барабан 7 с заполненными на нем пресс-формами 8. Для формования изделия стол 6 с пресс-формами 8, закрепленными на его барабане 7, поворачивают относительно заливочного патрубка установки дистанционного заполнения 5 до совмещения горловины одной из пресс-форм с заливочным патрубком установки дистанционного заполнения, поджимают пресс-форму 8 к заливочному патрубку установки дистанционного заполнения 5, после чего открывают отсекатель 9 пресс-формы 8, подают давление на поршень гидравлической системы вытеснения 4, открывают затвор 3 смесителя к формуют изделие подачей состава в пресс-форму 8 снизу. При достижении избыточного давления в установке дистанционного заполнения 5 0,2…0,5 МПа закрывают отсекатель 9 пресс-формы и подачу состава отсекают, прекращают подачу давления на поршень гидравлической системы вытеснения 4, выравнивают с атмосферным давление в установке дистанционного заполнения 5 и закрывают затвор 3 смесителя. После чего заполненную пресс-форму 8 отжимают от заливочного патрубка установки дистанционного заполнения 5, стол 6 с пресс-формами поворачивают до совмещения горловины следующей пресс-формы с заливочным патрубком установки дистанционного заполнения 5 и операции по формованию изделия повторяют в автоматическом режиме до заполнения всех пресс-форм, закрепленных на барабане 7. После чего барабан 7 с заполненными пресс-формами снимают с поворотного стола 6 установки дистанционного заполнения 5 и полимеризуют изделия, закрепленные на барабане 7, обеспечивающем одинаковые режимы по температуре и давлению в пресс-формах.
Применение описанного способа смешения компонентов взрывчатого состава и формования из него изделия позволяет максимально сократить технологический цикл, повысить производительность процесса при обеспечении высокого качества изделия по монолитности. Формование и полимеризация изделий в пресс-формах, закрепленных на съемном барабане, обеспечивают воспроизводимость основных характеристик изделий, изготовленных в одном запуске технологического оборудования.
Указанные преимущества подтверждены изготовлением по описанному способу опытной партии изделий на завода им. С.М.Кирова.
Формула изобретения
Способ смешения компонентов взрывчатого состава и формования из него изделия, включающий приготовление состава в вертикальном смесителе со съемным корпусом, снабженным затвором, отсоединение корпуса от смесительной головки, присоединение к поршневой гидравлической системе вытеснения и к установке дистанционного заполнения, подачу состава снизу в вертикально расположенную пресс-форму с отсекателем, формование в ней изделия подачей давления на поршень гидравлической системы вытеснения, полимеризацию с поддержанием избыточного давления в пресс-форме, отличающийся тем, что изделие формуют в пресс-форму, закрепленную на съемном барабане поворотного стола установки дистанционного заполнения, для формования изделия стол с пресс-формами, закрепленными на его барабане, проворачивают относительно заливочного патрубка установки дистанционного заполнения до совмещения горловины пресс-формы с заливочным патрубком установки дистанционного заполнения, поджимают пресс-форму к заливочному патрубку установки дистанционного заполнения, открывают отсекатель пресс-формы, подают давление на поршень гидравлической системы вытеснения, открывают затвор смесителя, формуют изделие подачей состава в пресс-форму, при достижении избыточного давления в установке дистанционного заполнения 0,2-0,5 МПа закрывают отсекатель пресс-формы, прекращают подачу давления на поршень гидравлической системы вытеснения, выравнивают с атмосферным давлением в установке дистанционного заполнения и закрывают затвор смесителя, заполненную пресс-форму отжимают от заливочного патрубка установки дистанционного заполнения, поворачивают стол с пресс-формами до совмещения горловины следующей пресс-формы с заливочным патрубком установки дистанционного заполнения, и операции по формованию изделия повторяют для заполнения составом всех пресс-форм, закрепленных на съемном барабане, после чего барабан с заполненными пресс-формами снимают с поворотного стола установки дистанционного заполнения и полимеризуют изделия, закрепленные на барабане, обеспечивающем одинаковые режимы по температуре и давлению в пресс-формах.
РИСУНКИ
|
|