|
|
(21), (22) Заявка: 2003125946/03, 26.08.2003
(24) Дата начала отсчета срока действия патента:
26.08.2003
(43) Дата публикации заявки: 10.03.2005
(45) Опубликовано: 20.08.2005
(56) Список документов, цитированных в отчете о поиске:
ИЛЬИНСКИЙ А.Л. и др. Буровые машины и механизмы. – М.: Недра, 1989, с. 365-367. RU 2009307 C1, 15.03.1994. RU 2030545 C1, 10.03.1995. RU 2065915 C1, 27.08.1996. RU 2084611 C1, 20.07.1997. RU 2111334 C1, 20.05.1998. RU 2179621 C2, 10.06.2001. RU 2206706 C2, 20.06.2003. SU 1819979 A1, 07.06.1993. US 3433312 A, 18.03.1969.
Адрес для переписки:
450081, г.Уфа, ул. Руставели, 18, кв.59, И.Н. Ентальцеву
|
(72) Автор(ы):
Шайдуллин К.Ш. (RU), Габдуллин Н.Ю. (RU), Никитенко Ю.Н. (RU), Ентальцев И.Н. (RU)
(73) Патентообладатель(и):
Ентальцев Игорь Николаевич (RU)
|
(54) СПОСОБ ОЧИСТКИ БУРОВОГО РАСТВОРА И УСТАНОВКА ДЛЯ ЕГО ОСУЩЕСТВЛЕНИЯ
(57) Реферат:
Изобретение относится к бурению скважин. Способ очистки бурового раствора включает его очистку на первой ступени на вибросите с последующей очисткой на второй ступени на гидроциклонном пескоотделителе и илоотделителе – на третьей ступени. Далее проводят очистку на центрифуге и подают очищенный буровой раствор в емкости-накопители на бурение, циркуляцию бурового раствора по технологическим емкостям через скважину. Осуществляют круговую циркуляцию бурового раствора вне скважины параллельно с циркуляцией бурового раствора по технологическим емкостям через скважину, путем подачи очищенного бурового раствора в технологические емкости приема первой, второй, третьей ступеней очистки на разбавление с входящим из скважины буровым раствором, в количестве, необходимом для выравнивания плотности входящего на очистку бурового раствора. После очистки в гидроциклонном пескоотделителе и илоотделителе буровой раствор подвергают дополнительной очистке на четвертой ступени – в гидроциклонном илоотделителе, установленном последовательно. Установка для очистки буровых растворов содержит желоб, связывающий устье скважины с виброситами, установленными последовательно, систему гидроциклонов, включающую гидроциклонные пескоотделитель и илоотделитель, центрифугу с технологическими емкостями приема бурового раствора, шламовые насосы, установленные последовательно по ступеням очистки, технологические емкости-накопители бурового раствора, соединенные в циркуляционную систему движения бурового раствора через скважину. Циркуляционная система выполнена с возможностью обеспечения круговой циркуляции бурового раствора вне скважины параллельно с циркуляцией через скважину, с помощью шламового насоса и системы раствороводов, подающих очищенный буровой раствор из технологических емкостей-накопителей в технологические емкости приема первой, второй, третьей ступеней очистки на разбавление с входящим на очистку из скважины буровым раствором. Система гидроциклонов снабжена дополнительным гидроциклонным илоотделителем, установленным последовательно – четвертая ступень очистки, и настроенным на удаление более мелкой фазы выделения шламовых частиц. Повышается качество очистки. 2 н. и 2 з.п. ф-лы, 6 ил. 
Изобретение относится к горной промышленности, а именно к способу очистки буровых растворов и установке для его осуществления, и может быть использовано при очистке от шлама, песка и ила буровых растворов при бурении нефтяных и газовых скважин, а также при разгонке (очистке) – поддерживании заданных параметров буровых растворов в циркуляционной системе установки как при бурении скважины, так и вне бурения.
Большое количество песчаников, высокие скорости проходки, нестабильность выноса шлама, песчаных и илистых частиц из скважины при бурении, постоянно меняющийся режим бурения – все это дает постоянно меняющийся состав и объем шламовых включений в единице объема бурового раствора, поступающего на очистку, особенно на месторождениях Западной Сибири, имеющих слабые неустойчивые породы с большим содержанием песка и ила, а оборудование очистки буровых растворов на буровых установках, особенно гидроциклонное (пескоотделители, илоотделители), рассчитано на постоянный приход, на постоянную производительность, на постоянные параметры входящего на очистку бурового раствора, поэтому трехступенчатый, четырехступенчатый способы очистки буровых растворов и установки, применяемые на буровых, не обеспечивают должной очистки буровых растворов от песка и ила.
Учитывая требования новых технологий по бурению:
1) бурение в настоящее время производится низкими удельными весами буровых растворов (Р=0,08-0,010 г/см3) для более качественного вскрытия продуктивных пластов, что обеспечивает увеличение нефтеотдачи пластов,
2) большое внимание уделяется безамбарным технологиям буровых работ – экологически чистых технологий с доведением до минимума сброса вредных веществ в окружающую среду.
Известна технология трехступенчатой очистки бурового раствора (Резниченко И.Н. Приготовление, обработка и очистка бурового раствора. М.: Недра, 1982 г., с.181, р.47). Известный способ включает очистку бурового раствора на вибросите от частиц породы размером более 0,4 мм; очистку в гидроциклонных пескоотделителе и илоотделителе.
Особенностью этой технологии является то, что при гидроциклонной очистке часть грубодисперсного шлама (5-20%), выходящего из песковых насадок гидроциклонного пескоотделителя, возвращается в очищенный раствор и подается на дополнительную очистку в гидроциклонный илоотделитель, чего явно недостаточно для качественного илоотделения при бурении в слабых песчаниках, так как сам гидроциклонный пескоотделитель не всегда справляется со своими функциями. Учитывая неравномерность приходящей фазы по плотности на очистку в гидроциклонный пескоотделитель, который либо забивается избыточной фазой, либо передает ее на илоотделитель, исключая тот из работы по отделению более мелких частиц, или забивается тоже. Неочищенный на второй и третьей ступени буровой раствор, таким образом, попадает в скважину. Способ трехступенчатой очистки позволяет удалять из раствора частицы размером до 0,03-0,04 мм. При этом потери бурового раствора на пескоотделителе и илоотделителе составляют в среднем 1,45 и 2,26%. Отходы пескоотделения и илоотделения сбрасываются в шламовый амбар. Способ трехступенчатой очистки бурового раствора позволяет очистить буровой раствор до плотности 1,14-1,16 г/см3. Чтобы добиться более низкой плотности бурового раствора, используют метод замещения, сбрасывая часть раствора высокой плотности в амбар, и разбавляют оставшийся водой, вводя необходимые химреагенты для поддержания необходимых для бурения параметров.
Известная установка для очистки бурового раствора включает желоб, соединяющий устье скважины с виброситом, систему гидроциклонов с емкостями приема раствора, шламовыми насосами, установленными последовательно по ступеням очистки, приемными емкостями-накопителями буровых растворов.
В связи с возрастающими требованиями к качеству бурящихся скважин растут и требования к буровым растворам, к степени их очистки, данная схема трехступенчатой очистки на сегодняшний день не в состоянии обеспечить качественную очистку буровых растворов до необходимой плотности (1,08-1,10 г/см3), достичь стабилизации их параметров во время бурения. В схеме отсутствует оборудование для тонкой очистки буровых растворов – центрифуга, отсутствует подготовка выходящего из скважины бурового раствора на очистку – его разбавление очищенным, отсутствует круговая циркуляционная система в установках, недостаточно мощности второй, третьей ступени отделения частиц породы менее 0,04 мм, имеются большие потери буровых растворов при пескоотделении и илоотделении (до 4%), а также при замещении буровых растворов, при выравнивании их параметров.
Известна система очистки бурового раствора (Патент РФ №2030545, Е 2/В 21/06, 1995 г.), содержащая приемные емкости с разделительными отсеками, соединенными желобной системой, вибросита с поддоном, с разделительным патрубком, с шиберами, связывающие вибросита с манифольдом, последовательно установленные пескоотделитель, илоотделитель, дегазатор, шламовые насосы и лотки, снабжена дополнительным шибером и дополнительным виброситом с поддоном, индивидуальным приводом и сеткой с размерами ячеек 1,5×1,5 мм и не менее 1,0 мм, при этом основное вибросито имеет размеры ячеек меньше размера ячеек дополнительного вибросита, уровень дна поддона дополнительного вибросита размещен не ниже уровня слива с поддона основных вибросит в емкость, поддон дополнительного вибросита имеет сливы на основные вибросита, а дополнительный шибер размещен в разделительном патрубке и связывает дополнительное вибросито с манифольдом.
В связи с возрастающими требованиями к качеству бурящихся скважин растут и требования к буровым растворам, к степени их очистки, данная система очистки на сегодняшний день не в состоянии обеспечить качественную очистку буровых растворов до необходимой плотности (1,08-1,10 г/см3), достичь стабилизации их параметров во время бурения.
В схеме отсутствует оборудование для тонкой очистки буровых растворов – центрифуга, отсутствует подготовка выходящего из скважины бурового раствора на очистку – его разбавление очищенным, отсутствует круговая циркуляционная система, недостаточно мощности второй, третьей ступени отделения частиц породы менее 0,03 мм, имеются большие потери буровых растворов при пескоотделении и илоотделении (до 4%), а также при замещении буровых растворов, при их выравнивании – разгонке.
Известна система очистки бурового раствора (Патент РФ №211 1334, Е 21 В 21/06, 1998 г.), включающая желоб, связывающий устье скважины с виброситом, систему гидроциклонов с емкостями сбора раствора и насосами, установленными последовательно по ступеням очистки, и приемные емкости буровых насосов. Емкость сбора раствора последней ступени очистки снабжена перегородкой, разделяющей ее на основной и дополнительный отсеки, и установлена над емкостью сбора раствора предыдущей ступени очистки и выше приемных емкостей буровых насосов для обеспечения слива раствора самотеком. Дополнительный отсек соединен трубопроводом с приемными емкостями, а основной отсек с линией подачи от гидроциклона и снабжен трубопроводом с регулирующим устройством слива в емкость предыдущей ступени очистки.
Трубопровод с регулирующим устройством может быть установлен вертикально таким образом, что верхняя его кромка ниже верхнего края перегородки. Регулирующее устройство может быть выполнено в виде кольца, установленного на верхнем конце трубопровода с возможностью вертикального перемещения. Кольцо связано посредством тяги, установленной внутри трубопровода с поплавком, свободно помещенным в емкости сбора раствора предыдущей ступени, причем верхний край кольца в крайнем положении выше верхнего края перегородки.
В связи с возрастающими требованиями к качеству бурящихся скважин растут и требования к буровым растворам, к степени их очистки, данная система очистки на сегодняшний день не в состоянии обеспечить качественную очистку буровых растворов до необходимой плотности (1,08-1,10 г/см3), достичь стабилизации заданных параметров буровых растворов во время бурения.
В схеме отсутствует оборудование для тонкой очистки буровых растворов – центрифуга, отсутствует подготовка выходящего из скважины бурового раствора на очистку – его разбавление очищенным, отсутствует круговая циркуляционная система, недостаточно мощности третьей ступени отделения частиц породы менее 0,04 мм, имеются большие потери буровых растворов при пескоотделении и илоотделении (до 4%), а также при замещении буровых растворов, при их выравнивании-разгонке.
Наиболее близким к заявленному изобретению (прототипом) является способ очистки буровых растворов и установка для его осуществления (Ильинский А.Л., Шмидт АЛ. Буровые машины и механизмы. Москва, Недра. 1989 г. Стр. 365-367. Рис.9.1).
Известный способ очистки бурового раствора включает очистку на первой ступени – на вибросите от частиц породы размером 0,016 мм. Далее раствор поступает в пескоотделитель, в котором удаляются частицы крупнее 0,08 мм – вторая ступень очистки; потом он проходит через гидроциклонный пескоотделитель и шламоотделитель (илоотделитель) – третья и четвертая ступени очистки, где очищается от частиц крупнее 0,02 мм и, проходя последовательно через сепараторы-центрифуги, очищается от частиц размером более 0,003 мм – пятая, шестая ступени очистки, затем подается в емкость-накопитель и на бурение в скважину.
Известная установка для очистки бурового раствора содержит вибросито для удаления частиц породы крупнее 0,16 мм, пескоотделитель, где удаляются частицы крупнее 0,08 мм, гидроциклонный пескоотделитель и шламоотделитель, где удаляются частицы породы крупнее 0,02 мм, – третья, четвертая ступени очистки; сепараторы-центрифуги для очистки бурового раствора от частиц более 0,003 мм, технологические емкости, установленные по ступеням очистки, подпорные насосы, дегазатор, раствороводы соединенные в циркуляционную систему движения бурового раствора через скважину.
Известный способ очистки и установка для его осуществления обладают следующими недостатками: буровое оборудование, оборудование очистных систем буровых установок рассчитаны на постоянный приход, на постоянную производительность, на постоянные параметры входящего на очистку бурового раствора, а буровая скважина при бурении разных по плотности пластов дает постоянно меняющийся состав и объем шламовых включений в единице объема бурового раствора в единицу времени, так как буровой инструмент движется по пластам различной плотности с разной скоростью, а подача бурового раствора буровым насосом всегда постоянна. В известном способе и установке для очистки бурового раствора этот фактор не учтен, в результате чего установка не в состоянии производить полную и качественную очистку буровых растворов от шлама, а особенно от ила и песка.
В известном способе очистки бурового раствора не предусматривается принцип подготовки – выравнивания параметров бурового раствора перед его очисткой от шлама, песка и ила, что отрицательно сказывается на работе оборудования очистки буровых растворов – растворы не очищаются в необходимой для бурения степени, допускаются непроизводительные потери буровых растворов.
Шлам поступает в буровом растворе из скважины на оборудование очистки «пачкообразно» (иногда до 5% и более) в единице объема бурового раствора и превышает порой возможности оборудования очистных систем, особенно гидроциклонных пескоотделителей и илоотделителей, рассчитанных на 1,5-2% шламовых включений в буровом растворе. Оборудование перегружается, насадки пескоотделителей и илоотделителей забиваются, и не очищенный буровой раствор попадает в циркуляционную систему – забивает центрифугу и попадает в скважину, либо при полностью открытых насадках пескоотделителя и илоотделителя шлам с буровым раствором сбрасывается в амбар – теряется буровой раствор.
Кроме того, в известной установке очистки буровых растворов отсутствует полная круговая циркуляция буровых растворов по элементам (оборудованию) очистки и технологическим емкостям вне скважины, что не позволяет производить разгонку (очистку) – выравнивание всего объема бурового раствора по технологическим емкостям вне бурения.
Известная установка не имеет необходимой мощности по оборудованию очистки бурового раствора, для производства качественной очистки такового при бурении направлений диаметром более 295 мм, а также скважин диаметром более 295 мм и объемом прокачки бурового раствора буровым насосом более 200 м3/ч.
Известная установка не имеет универсальности по очистке буровых растворов при бурении как неутяжеленными, так и утяжеленными буровыми растворами, что очень важно при бурении геологоразведочных, нефтяных и газовых скважин на месторождениях с разными пластовыми давлениями. При бурении неутяжеленными буровыми растворами необходим контроль за невысокой плотностью (1,08-1,10 г/см3) буровых растворов и качественная очистка буровых растворов от песка и ила. При бурении утяжеленными буровыми растворами необходимо удалять глинистую фазу, сохранять высокую плотность (1,4-2,1 г/см3) и присутствие утяжелителя (барита, др.) в буровом растворе.
Известная установка и ее циркуляционная система не имеют системы сбора отработанного бурового раствора, сточных и промывочных вод с буровой установки и последующей очистке их в циркуляционной системе установки для повторного использования на приготовление буровых растворов, исключая потери (выбросы) таковых.
Предлагаемое изобретение решает задачу повышения качества очистки буровых растворов (до удельных весов 1,08-1,10 г/см3), поддерживания заданных параметров буровых растворов на всех интервалах в процессе бурения геологоразведочных, нефтяных и газовых скважин, обеспечения быстрой и качественной разгонки (очистки) буровых растворов непосредственно на буровых установках, не касаясь устья скважины, сведения к минимуму потерь буровых растворов на оборудовании очистки буровых растворов, обеспечивает стабильность работы оборудования системы очистки.
Указанная задача решается тем, что в способе очистки бурового раствора, включающем очистку на первой ступени на виброситах и последующей очисткой на второй ступени очистки в гидроциклонном пескоотделителе и илоотделителе – на третьей ступени очистки, далее на центрифуге и подачу очищенного бурового раствора в емкости-накопители, затем в скважину на бурение с циркуляцией бурового раствора через скважину, согласно изобретению осуществляют круговую циркуляцию бурового раствора вне скважины параллельно с циркуляцией бурового раствора через скважину, путем подачи очищенного бурового раствора в технологические емкости приема первой, второй и третьей ступеней очистки на разбавление с выходящим из скважины отработанным буровым раствором в количестве, необходимом для выравнивания бурового раствора по плотности, необходимой для очистки такового на гидроциклонных пескоотделителе (ГЦК-360) и илоотделителе (ИГ-45) – вторая, третья ступени очистки; после очистки в гидроциклонных пескоотделителе и илоотделителе буровой раствор подвергают очистке на четвертой ступени в гидроциклонном илоотделителе (4Т4 фирмы «Свако»), настроенном на более мелкую фазу выделения шламовых частиц из раствора (более 0,020-0,25 мм).
Указанная задача решается также тем, что в установке, содержащей желоб, связывающий устье скважины с виброситами, установленными последовательно, систему гидроциклонов, включающую гидроциклонные пескоотделитель и илоотделитель, центрифугу, технологические емкости приема бурового раствора, шламовые насосы, установленные последовательно по ступеням очистки, технологические емкости-накопители бурового раствора, соединенные в циркуляционную систему движения бурового раствора через скважину, отличающуюся тем, что циркуляционная система установки выполнена с возможностью обеспечения круговой циркуляции бурового раствора вне скважины – параллельно с циркуляцией бурового раствора через скважину с помощью шламового насоса и системы растворов, подающих очищенный буровой раствор из технологических емкостей-накопителей, либо через коллекторы соединяющие все технологические емкости; в технологические емкости приема первой, второй, третьей ступеней очистки на разбавление с входящим на очистку из скважины, при этом система гидроциклонов снабжена дополнительным гидроциклонным илоотделителем, установленным в схему очистки последовательно и настроенным на более мелкую фазу выделения шламовых частиц (0,020-0,025 мм), с технологической емкостью и шламовым насосом.
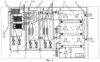
Поясняют суть изобретения прилагаемые чертежи, на которых представлено оборудование установки и технологической линии очистки для реализации предлагаемого способа:
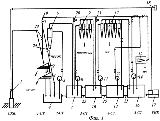
на фиг.1 показана принципиальная схема установки для очистки бурового раствора,
на фиг.2 показана технологическая схема установки и циркуляционной системы для очистки, разгонки и приготовления буровых растворов при бурении скважины,
на фиг.3 показана работа установки при разгонке- выравнивании бурового раствора вне бурения скважины, а также его разгонки, при приготовлении – аналогично,
на фиг.4 показана работа установки при бурении направления скважины диаметром более 295мм. и скважин диаметром более 295 мм, двумя буровыми насосами при прокачке бурового раствора более 200 м /час,
на фиг.5 показана работа установки при бурении утяжеленными буровыми растворами,
на фиг.6 показан сбор отходов буровых растворов с бурового оборудования и промывочных вод в емкость 4 для обработки, очистки и дальнейшее применение.
Комплектация установки по очистке буровых растворов (фиг.1). Установка содержит желоб 1, связывающий устье скважины с виброситами 2, 3 (СВЛ-1), установленными последовательно – первая ступень очистки; технологическую емкость 4 приема бурового раствора после первой ступени очистки, шламовый насос 5 (6Ш-8) подачи бурового раствора в гидроциклонный пескоотделитель 6 (ГЦК-360) – вторая ступень очистки; технологическую емкость 7 приема бурового раствора после второй ступени очистки, шламовый насос 8 (6Ш-8) подачи бурового раствора в гидроциклонный песко-илоотделитель 9 (ИГ-45) – третья ступень очистки; технологическую емкость 10 приема бурового раствора после третьей ступени очистки, шламовый насос 11 (6Ш-8) подачи бурового раствора в гидроциклонный илоотделитель 12 (4Т4) – четвертая ступень очистки; технологическую емкость 13 приема бурового раствора после четвертой ступени очистки, шламовый насос 14 (6Ш-8) для подачи очищенного бурового раствора в технологические емкости первой, второй, третьей ступеней очистки для разбавления приходящего, центрифугу 15(ОГШ) – пятая ступень очистки; технологическую емкость 16 – накопитель очищенного бурового раствора, буровой насос 17 (УНБ-600), дистанционную задвижку 18 (ДЗУ-250), задвижки с автоматическим приводом 19, 20, 21 – подачи очищенного бурового раствора на первую, вторую, третью ступени очистки; винтовой (шламовый) насос 22 подачи бурового раствора на центрифугу, задвижки с ручным приводом 23, 24, коллекторы 25, соединяющие технологические емкости.
Способ очистки буровых растворов с помощью установки осуществляют во время бурения скважины следующим образом (фиг.1). Отработанный буровой раствор из скважины по желобу 1 поступает на первую ступень очистки – вибросита 2, 3 (установленных последовательно), где производится удаление крупнозернистых и промежуточных шламовых частиц (более 0,16 мм). Далее буровой раствор поступает в технологическую емкость 4; где посредством шламового насоса 14, системы трубопроводов, управляемой задвижки 19, задвижки 24 разбавляется очищенным из технологической емкости 16 в количестве, необходимом для поддержания необходимой плотности для очистки на гидроциклонном пескоотделителе, и подается на пескоотделитель 6 – на очистку от частиц более 0,08 мм – вторая ступень очистки. После чего буровой раствор подается в технологическую емкость 7, где посредством шламового насоса 14, системы трубопроводов и управляемой задвижки 20 разбавляется очищенным из технологической емкости 16 в количестве, необходимом для поддержания необходимой плотности, для очистки на гидроциклонном илоотделителе 9, и подается на илоотделитель 9(ИГ-45) на очистку от частиц более 0,05 мм – третья ступень очистки. Далее буровой раствор подается в технологическую емкость 10, где еще раз перемешивается с очищенным из технологической емкости 16, и подается насосом 11 (6Ш-8) на гидроциклонный илоотделитель 12 (4Т4), настроенный на выделение более мелких частиц 0,020 мм и более – четвертая ступень очистки. Затем буровой раствор поступает в технологическую емкость 13, откуда винтовым (шламовым) насосом 22 подается на центрифугу 15 (ОГШ), где удаляются шламовые частицы бурового раствора более 0,003 мм – пятая ступень очистки, и направляется в емкости накопители 16, на бурение (фиг.1 – принципиальная схема).
При бурении в глинистых отложениях отработанный буровой раствор по желобу 1 поступает на вибросита 2, 3 и разбивается (разбавляется) очищенным буровым раствором непосредственно на вибросите 2 посредством шламового насоса 14, системы трубопроводов, управляемой задвижки 19, задвижки 23, из технологической емкости 16; для предотвращения закупорки вязкими глинами ситового полотна вибросита 2. Очищенный и охлажденный буровой раствор, поступающий на разбивку приходящего из скважины бурового раствора, обеспечивает промывку ситового полотна и исключает эффект комкования вязких глин на полотне фильтрующих сеток вибросит, способствует эффективности очистки буровых растворов на виброситах, а также его охлаждению.
Шламовые отходы бурения с вибросит 2, 3, пескоотделителя 6, центрифуги 15 (по транспортеру 39) подаются в приемник шнека 37 и выносятся за пределы буровой установки для вывоза автомобилями либо в специальные емкости 41 – шламоприемники (фиг.5). Отходы песко-илоотделителя 9, илоотделителя 12, подаются по желобам 34 в емкость смешения 30, где перемешиваются с очищенным буровым раствором либо с водой до удельного веса 1,14-1,16 г/см и подаются шламовым насосом 22 по раствороводам 27 на очистку центрифугой 15 (фиг.5).
Способ очистки буровых растворов с помощью установки осуществляют во время бурения скважины следующим образом (фиг.2 -технологическая схема).
Отработанный буровой раствор из скважины по желобу 1 поступает на первую ступень очистки (вибросита 2, 3), установленные последовательно, где производится удаление крупнозернистых и промежуточных шламовых частиц (более 0,16 мм). Далее буровой раствор поступает в технологическую емкость 4, где посредством шламового насоса 14 (6Ш-8), системы трубопроводов 27, управляемой задвижки 19, задвижки 24 разбавляется очищенным из технологической емкости 16 в количестве, необходимом для поддержания необходимой плотности для очистки на гидроциклонном пескоотделителе 6 (ГЦК-360), и подается шламовым насосом 5 на пескоотделитель 6 (ГЦК-360) на очистку от частиц более 0,08 мм – вторая ступень очистки. После чего буровой раствор по раствороводам 27 подается в технологическую емкость 7, где посредством шламового насоса 14 (6Ш-8), системы раствороводов и управляемой задвижки 20 разбавляется очищенным из технологической емкости 16 в количестве, необходимом для поддержания необходимой плотности для очистки на гидроциклонном илоотделителе 9, и подается шламовым насосом 8 по раствороводам 27 на илоотделитель 9 (ИГ-45), на очистку от частиц более 0,05 мм – третья ступень очистки. Далее буровой раствор по раствороводам 27 подается в технологическую емкость 10, где посредством шламового насоса 14 (6Ш-8), системы трубопроводов и управляемой задвижки 21 еще раз перемешивается с очищенным из технологической емкости 16, и подается насосом 11 (6Ш-8) на гидроциклонный илоотделитель 12 (4Т4), настроенный на выделение более мелких частиц 0,020 мм и более – четвертая ступень очистки. Затем буровой раствор по раствороводам 27 поступает в технологическую емкость 13, откуда винтовым (шламовым) насосом 22 подается на центрифугу 15 (ОГШ), где удаляются шламовые частицы бурового раствора более 0,003 мм – пятая ступень очистки, и направляется в емкости-накопители 16 на бурение (фиг.2).
Шламовые отходы бурения с вибросит 2, 3, пескоотделителя 6, центрифуги 15 (по транспортеру 38) подаются в приемник шнека 37 и выносятся за пределы буровой установки для вывоза автомобилями либо в специальные емкости 41 – шламоприемники (фиг.5). Отходы песко-илоотделителя 9, илоотделителя 12, по желобам 34 подаются в емкость смешения 30, где перемешиваются с очищенным буровым раствором, либо с водой до удельного веса 1,14 – 1,16 г/см и подаются на очистку центрифугой 15 (фиг.5).
Способ очистки буровых растворов с помощью установки осуществляют при разгонке-выравнивании бурового раствора вне бурения скважины следующим образом (фиг.3). Буровой раствор посредством шламового насоса 14 (6Ш-8) системы трубопроводов 27, управляемой задвижки 19, задвижки 23 поступает из технологической емкости 16 на первую ступень очистки (вибросита 2, 3), установленные последовательно, где производится удаление крупнозернистых и промежуточных шламовых частиц (более 0,16 мм). Далее буровой раствор поступает в технологическую емкость 4 и шламовым насосом 5 (6Ш-8) по раствороводам 27 подается на пескоотделитель 6 (ГЦК-360) на очистку от частиц более 0,08 мм – вторая ступень очистки. После чего буровой раствор по раствороводам 27 подается в технологическую емкость 7, откуда посредством шламового насоса 8 (6Ш-8) и раствороводов 27 подается на гидроциклонный илоотделитель 9 (ИГ-45) на очистку от частиц более 0,05 мм – третья ступень очистки. Далее буровой раствор по раствороводам 27 подается в технологическую емкость 10, где посредством шламового насоса 14 (6Ш-8) системы трубопроводов 27, управляемой задвижки 21 перемешивается с очищенным из технологической емкости 16, и подается насосом 11 (6Ш-8) по раствороводам 27 на гидроциклонный илоотделитель 12 (4Т4), настроенный на отделение мелких частиц, более 0,02 мм – четвертая ступень очистки. Затем буровой раствор поступает в технологическую емкость 13, откуда винтовым (шламовым) насосом 22 по раствороводам 27 подается на центрифугу 15 (ОГШ), где удаляются шламовые частицы бурового раствора более 0,003 мм – пятая ступень очистки и направляется в емкости-накопители 16.
Так производится разгонка – снижение плотности бурового раствора, удаление избытка глины, выравнивание его параметров вне бурения скважины посредством шламового насоса 14 и системы раствороводов 27. Аналогично производится разгонка-выравнивание параметров бурового раствора с помощью системы очистки, через коллекторы 25, которыми связаны все технологические емкости установки. Так же производится разгонка – выравнивание бурового раствора при его приготовлении, по всем технологическим емкостям.
Буровой раствор при приготовлении берется из блока 26 (БПР – блок приготовления бурового раствора) и насосом 14 разгоняется по той же схеме, минуя оборудование очистки буровых растворов (при необходимости) по всем технологическим емкостям, по всему объему.
Шламовые отходы бурения с вибросит 2, 3, пескоотделителя 6, центрифуги 15 (по транспортеру 39) подаются в приемники шнека 37 и выносятся за пределы буровой установки для вывоза автомобилями либо в специальные емкости 41 – шламоприемники (фиг.5).
Отходы песко-илоотделителя 9, илоотделителя 12 подаются по желобам 34 в емкость смешения 30, где перемешиваются с очищенным буровым раствором либо с водой до удельного веса 1,14-1,16 г/см и подаются на очистку центрифугой 15 (фиг.5).
Способ очистки буровых растворов с помощью установки осуществляют при бурении направления скважины диаметром более 295 мм, а также скважин диаметром более 295 мм и объемом прокачки бурового раствора более 200 м3/ч, следующим образом (фиг.4).
Отработанный буровой раствор из скважины по желобу 1 поступает на первую ступень очистки – вибросита 2, 3, установленные последовательно, где производится удаление крупнозернистых и промежуточных шламовых частиц (более 0,20 мм). Далее буровой раствор поступает в технологическую емкость 4, где посредством шламового насоса 14, системы трубопроводов 27, управляемой задвижки 19, задвижки 24 разбавляется очищенным из технологической емкости 16 в количестве, необходимом для поддержания необходимой плотности; для очистки на гидроциклонных пескоотделителях 6, и подается шламовыми насосами 5 по раствороводам 27 на пескоотделители 6, на очистку от частиц более 0,08 мм – вторая ступень очистки. После чего буровой раствор по раствороводам 27 подается в технологическую емкость 7, где посредством шламового насоса 14, системы трубопроводов 27 и управляемой задвижки 20, разбавляется очищенным из технологической емкости 16 в количестве, необходимом для поддержания необходимой плотности для очистки на гидроциклонных песко-илоотделителях 9, и подается по раствороводам 27 шламовыми насосами 8, на илоотделители 9, на очистку от частиц более 0,05 мм – третья ступень очистки. Далее буровой раствор попадает в технологическую емкость 10, где еще раз перемешивается с очищенным из технологической емкости 16 посредством шламового насоса 14, раствороводов 27, управляемой задвижки 21, и подается шламовыми насосами 11, по раствороводам 27 на гидроциклонные илоотделители 12, настроенные на более мелкие частицы более 0,020 мм – четвертая ступень очистки. Затем буровой раствор по раствороводам 27 раствор поступает в технологическую емкость 13, откуда шламовым насосом 22 по раствороводам 27 подается на центрифуги 15, где удаляются шламовые частицы бурового раствора более 0,003 мм – пятая ступень очистки; и направляется по раствороводам 27 в емкости накопители 16 на бурение (фиг.4).
Шламовые отходы бурения с вибросит 2, 3, пескоотделителей 6, центрифуг 15 (по транспортерам 38, 39) подаются в приемники шнека 37 и выносятся за пределы буровой установки для вывоза автомобилями либо в специальные емкости – шламоприемники 41 (фиг.5). Отходы пескоилоотделителей 9, илоотделителей 12 подаются по желобам 34 в емкость смешения 30, где перемешиваются с очищенным буровым раствором либо с водой до удельного веса 1,14-1,16 г/см3 и подаются шламовым насосом 22 по раствороводам 27 на очистку центрифугами 15.
Способ очистки буровых растворов с помощью установки осуществляют при бурении утяжеленными буровыми растворами следующим образом (фиг.5).
Настоящие – трехступенчатые, четырехступенчатые и другие системы очистки буровых растворов, а также их циркуляционные системы не имеют универсальности при бурении как неутяжеленными, так и утяжеленными буровыми растворами, что очень важно при бурении геологоразведочных, нефтяных и газовых скважин на месторождениях с разными пластовыми давлениями.
При бурении неутяжеленными буровыми растворами необходим контроль за невысокой плотностью (1,08-1,10 г/см3) буровых растворов и качественная очистка буровых растворов от песка и ила.
При бурении утяжеленными буровыми растворами необходимо удалять глинистую фазу и сохранять высокую плотность (1,4-2,1 г/см3) и присутствие утяжелителя (барита др.) в буровом растворе.
При бурении скважин утяжеленными буровыми растворами отходы песко-илоотделения ступени – 3, 4 по специальным желобам 34 подаются в емкость-смеситель 30, где перемешиваются с очищенным буровым раствором либо с водой до степени, удобной для переработки центрифугой 15 (плотность фазы 1,14-1,16 г/см3), и посредством насоса 22, системы трубопроводов 27 подаются на одну центрифугу 15, настроенную для переработки утяжеленных фракций (обороты барабана центрифуги не должны превышать 2000 об/мин). Наполнение емкости смесителя отходами гидроциклонной очистки происходит с производительностью не более 3-4 куб/ч или 3-4% от производительности бурового насоса, поэтому съем утяжелителя не затрудняет работу общей схемы очистки.
Тяжелая фракция (утяжелитель) с центрифуги 15 снимается посредством транспортера 33 в специальный приемник 40 для дальнейшего использования, а легкая подается в емкость смешения 30, при необходимости тяжелая фракция с гидроциклонной очистки посредством желобной системы 34 может быть направлена в емкость 13 на разгонку и бурение. Вторая центрифуга 15 работает в это время по общей схеме циркуляции в режиме глиноотделения. При этом исключаются потери бурового раствора и сохраняется утяжелитель.
При работе неутяжеленными буровыми растворами центрифуги 15 настраиваются на режим глино-илоотделения (3000 об/мин). Схема позволяет сокращать потери буровых растворов до 5-6% и производить осушку отходов илоотделения посредством работы центрифуг, что необходимо для безамбарного бурения.
Шламовые отходы бурения с вибросит 2, 3, пескоотделителя 6, центрифуги 15, по транспортеру 39 подаются в приемник шнека 37 и выносятся за пределы буровой установки для вывоза автомобилями либо в специальные емкости-шламоприемники 41. Отходы песко-илоотделителя 8, илоотделителя 12 подаются по желобам 34 в емкость смешения 30, где перемешиваются с очищенным буровым раствором либо с водой до удельного веса 1,14-1,16 г/см3 и подаются шламовым насосом 22 по раствороводам 27 на очистку центрифугой 15.
Способ очистки буровых растворов с помощью установки по сбору отходов буровых растворов и промывочных вод осуществляют следующим образом (фиг.6).
Отходы буровых растворов, получаемые при разборке буровых насосов, шламовых насосов др. в процессе бурения скважины, посредством дренажной (желобной) системы 35 собираются в емкость 4 и совместно с буровым раствором, участвующим в циркуляционной системе, проходят все ступени очистки, исключая потери (выбросы) таковых.
Промывочные воды, появляющиеся на буровой установке по окончания бурения скважины при промывке технологических емкостей от остатков отработанного бурового раствора, тоже подлежат сбору и обработке.
Предлагаемая установка скомпанована и смонтирована таким образом, чтобы обеспечить минимум остатков шламовых отходов и буровых растворов в технологических емкостях системы циркуляции буровой установки, для этого предусмотрен постоянный круговой процесс циркуляции бурового раствора по элементам системы очистки, который осуществляется с помощью шламового насоса 14 и системы раствороводов. Технологические емкости обеспечены перемешивателями 36 для обеспечения качественного перемешивания бурового раствора, которые исключают выпадение осадка в технологических емкостях как при бурении, так и вне его, но тем не менее для качественной промывки технологических емкостей предусмотрена система коллекторов 25 и дренажей 35. Посредством этой системы освобожденные от бурового раствора технологические емкости 7, 10, 13, 16 промываются технической водой, и загрязненные отходы посредством желобной системы 35 собираются в емкость 4, откуда подаются на систему очистки по внутренней, круговой схеме циркуляции. Отходы процесса обезвоживаются центрифугами 15 и удаляются в шламосборник 41, а технологическая вода идет на приготовление буровых растворов на следующую скважину. Потерь буровых растворов и выброса промывочных вод установка не имеет.
Предлагаемая установка очистки буровых растворов при соблюдении правил монтажа и указанных технологических операций позволяет:
– сократить расходы материалов приготовления и обработки буровых растворов,
– снизить затраты, связанные с решением экологических проблем,
– снизить затраты времени и средств, связанные с прихватами, затяжками, проработками ствола скважины,
– увеличить проходку на долото и механическую скорость бурения,
– повысить относительную продуктивность скважин,
– увеличить межремонтный пробег силового оборудования,
– уменьшить отходы бурения и объем амбаров,
– повысить культуру бурения.
Предлагаемое изобретение найдет широкое применение в нефтедобывающей промышленности, в бурении скважин на нефть и газ.
Формула изобретения
1. Способ очистки бурового раствора, включающий очистку на первой ступени на вибросите с последующей очисткой на второй ступени – гидроциклонном пескоотделителе и илоотделителе – на третьей ступени, далее очистку на центрифуге, подачу очищенного бурового раствора в емкости-накопители на бурение, циркуляцию бурового раствора по технологическим емкостям через скважину, отличающийся тем, что осуществляют круговую циркуляцию бурового раствора через скважину параллельно с циркуляцией по технологическим емкостям путем подачи очищенного бурового раствора в технологические емкости приема первой, второй, третьей ступеней очистки на разбавление с входящим буровым раствором в количестве, необходимом для выравнивания плотности входящего на очистку бурового раствора.
2. Способ по п.1, отличающийся тем, что после очистки в гидроциклонном пескоотделителе и илоотделителе буровой раствор подвергают дополнительной очистке на четвертой ступени в гидроциклонном илоотделителе, установленном последовательно.
3. Установка для очистки буровых растворов, содержащая желоб, связывающий устье скважины с виброситами, установленными последовательно, систему гидроциклонов, включающую гидроциклонные пескоотделитель и илоотделитель, центрифугу с технологическими емкостями приема бурового раствора, шламовые насосы, установленные последовательно по ступеням очистки, технологические емкости- накопители бурового раствора, соединенные в циркуляционную систему движения бурового раствора через скважину, отличающаяся тем, что циркуляционная система выполнена с возможностью обеспечения круговой циркуляции бурового раствора вне скважины параллельно с циркуляцией через скважину с помощью шламового насоса и системы раствороводов, подающих очищенный буровой раствор из технологических емкостей- накопителей в технологические емкости приема первой, второй, третьей ступеней очистки на разбавление с входящим на очистку из скважины буровым раствором.
4. Установка по п.3, отличающаяся тем, что система гидроциклонов снабжена дополнительным гидроциклонным илоотделителем, установленным последовательно – четвертая ступень очистки, и настроенным на удаление более мелкой фазы выделения шламовых частиц.
РИСУНКИ
MM4A – Досрочное прекращение действия патента СССР или патента Российской Федерации на изобретение из-за неуплаты в установленный срок пошлины за поддержание патента в силе
Дата прекращения действия патента: 27.08.2008
Извещение опубликовано: 20.08.2010 БИ: 23/2010
|
|