|
|
(21), (22) Заявка: 2003115139/03, 21.05.2003
(24) Дата начала отсчета срока действия патента:
21.05.2003
(43) Дата публикации заявки: 27.11.2004
(45) Опубликовано: 27.03.2005
(56) Список документов, цитированных в отчете о поиске:
RU 2102579 С1, 20.01.1998. RU 2160354 C1, 10.12.2000. RU 2191884 C2, 27.10.2002. RU 2196874 C2, 20.01.2003. WO 94/25726 A, 10.11.1994.
Адрес для переписки:
625013, г.Тюмень, ул .Текстильная, 21, кв.77, А.Ф. Абрамову
|
(72) Автор(ы):
Абрамов А.Ф. (RU)
(73) Патентообладатель(и):
Абрамов Александр Федорович (RU)
|
(54) ГЕРМЕТИЗАТОР УСТЬЯ СКВАЖИНЫ
(57) Реферат:
Изобретение относится к оборудованию, применяемому при подземном ремонте нефтяных и газовых скважин, и используется для герметизации устья при исследовании скважин геофизическими приборами, спускаемыми в скважину на кабеле. Герметизатор устья скважины содержит полый цилиндрический корпус с конусным отверстием для пропуска геофизического прибора с кабелем, сменную герметизирующую вставку, установленную в отверстие корпуса, зафиксированную и содержащую верхние круговые сегменты. Две подвижные уплотнительные манжеты выполнены с возможностью радиального перемещения относительно оси кабеля и с возможностью вертикального перемещения вдоль оси кабеля в момент герметизации кабеля. Подвижные уплотнительные манжеты опираются на нижние круговые сегменты, каждый из которых жестко соединен со стержнем, имеющим резьбовой конец, выведенный наружу и соединенный с нажимной гайкой, обеспечивающей переход уплотнительных манжет в сжатое состояние при герметизации устья скважины. Имеется круговой диск с продольным пазом для ввода кабеля и наружной поверхностью, находящейся в контакте с поверхностью отверстия полого цилиндрического корпуса. Резьбовые концы стержней выведены через круговой диск наружу. Отверстие полого цилиндрического корпуса выполнено конусным. В собранном виде в момент герметизации устья скважины круговой диск, подвижные уплотнительные манжеты и круговые сегменты образуют снаружи конусную поверхность, соответствующую конусному отверстию полого цилиндрического корпуса и находятся в контакте с ним. Сама вставка зафиксирована при помощи цилиндрических упоров. Упрощается конструкция, облегчается установка противовыбросового оборудования при ликвидации аварийной ситуации на скважине. Применение герметизатора устья скважины в практику подземного ремонта скважин позволит быстро и надежно герметизировать устье скважины в момент проведения исследований с помощью геофизических приборов, спускаемых на кабеле. 11 ил.

Изобретение относится к оборудованию, применяемому при подземном ремонте нефтяных и газовых скважин, и используется для герметизации устья при исследовании скважин геофизическими приборами, спускаемыми в скважину на кабеле.
Известно герметизирующее устройство, содержащее полый цилиндрический корпус с конусным отверстием для установки сменных герметизирующих вставок, с фиксатором, выполненным в виде подвижного ползуна, и фланцами для установки технологического оборудования и для герметичного присоединения к арматуре устья [1]. Недостатком известного устройства является невозможность герметизации скважины в момент спуска геофизического прибора на кабеле.
Известен герметизатор устья скважины, содержащий полый цилиндрический корпус с отверстием для пропуска геофизического прибора с кабелем, сменную герметизирующую вставку, установленную в отверстие корпуса, зафиксированную и содержащую верхние круговые сегменты, две подвижные уплотнительные манжеты, выполненные с возможностью радиального перемещения относительно оси кабеля и с возможностью вертикального перемещения вдоль оси кабеля в момент герметизации кабеля и опирающиеся на нижние сегменты, каждый из которых жестко соединен со стержнем, имеющим резьбовой конец, выведенный наружу и соединенный с нажимной гайкой, обеспечивающей переход уплотнительных манжет в сжатое состояние при герметизации устья скважины, выбранный в качестве ближайшего аналога [2]. При установке этого герметизатора на верхний фланец превентора выступающие наружу элементы узла герметизации создадут серьезные проблемы, связанные с ликвидацией аварийной ситуации на скважине, т.к. на фланец с выступающими рукоятками и шарниром нельзя установить противовыбросовое оборудование. Кроме того, резьбовые сегменты нетехнологичны в изготовлении и излишне усложняют изделие.
Технической задачей, решаемой изобретением, является упрощение конструкции герметизатора устья скважины и облегчение установки противовыбросового оборудования при ликвидации аварийной ситуации на скважине.
Поставленная задача решается тем, что герметизатор устья скважины, содержащий полый цилиндрический корпус с отверстием для пропуска геофизического прибора с кабелем, сменную герметизирующую вставку, установленную в отверстие корпуса, зафиксированную и содержащую верхние круговые сегменты, две подвижные уплотнительные манжеты, выполненные с возможностью радиального перемещения относительно оси кабеля и с возможностью вертикального перемещения вдоль оси кабеля в момент герметизации кабеля и опирающиеся на нижние сегменты, каждый из которых жестко соединен со стержнем, имеющим резьбовой конец, выведенный наружу и соединенный с нажимной гайкой, обеспечивающей переход уплотнительных манжет в сжатое состояние при герметизации устья скважины, снабжен круговым диском с продольным пазом для ввода кабеля и наружной поверхностью, находящейся в контакте с поверхностью отверстия полого цилиндрического корпуса, резьбовые концы стержней выведены через круговой диск наружу, при этом отверстие полого цилиндрического корпуса выполнено конусным, в собранном виде в момент герметизации устья скважины круговой диск, подвижные уплотнительные манжеты и круговые сегменты образуют снаружи конусную поверхность, соответствующую конусному отверстию полого цилиндрического корпуса и находятся в контакте с ним, а сама вставка зафиксирована при помощи цилиндрических упоров.
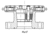
Изобретение поясняется чертежами, где изображено:
на фигуре 1 – вертикальный разрез полого цилиндрического корпуса с подвижными цилиндрическими упорами;
на фигуре 2 – вид сверху на герметизатор устья скважины без сменной герметизирующей вставки;
на фигуре 3 – вертикальный разрез сменной герметизирующей вставки, уплотнительные манжеты в сомкнутом положении;
на фигуре 4 – вид сверху на сменную герметизирующую вставку;
на фигуре 5 – вертикальный разрез сменной герметизирующей вставки, уплотнительные манжеты в разведенном положении;
на фигуре 6 – вид сверху на сменную герметизирующую вставку;
на фигуре 7 – вертикальный разрез в момент установки сменной герметизирующей вставки в конусное отверстие полого цилиндрического корпуса;
на фигуре 8 – вертикальный разрез в момент фиксации сменной герметизирующей вставки при помощи подвижного цилиндрического упора;
на фигуре 9 – вид Б, показан фрагмент конструкции ограничения рабочего хода нажимной гайки вдоль резьбового конца стержня;
на фигуре 10 – гаечная головка инструмента для сжатия уплотнительных манжет;
на фигуре 11 – разрез по А-А, показан вариант фиксации приводного винта подвижного цилиндрического упора с помощью шарикоподшипника насыпного типа.
Герметизатор устья скважины содержит полый цилиндрический корпус 1 с конусным отверстием 2, нижний фланец 3 для герметичного присоединения к арматуре устья и верхний фланец 4 для герметичного присоединения технологического оборудования (фиг.1; 2) Верхний фланец снабжен подвижным цилиндрическим упором 5 для фиксации сменной герметиизрующей вставки, которая содержит круговой диск 6 с продольным пазом 7 для ввода кабеля, верхние круговые сегменты 8, уплотнительные манжеты 9, нижние круговые сегменты 10, каждая из которых жестко соединена со стержнем 11, выведенным через отверстие 12 через круговой диск 6 и снабженным нажимной гайкой 13 для сжатия уплотнительных манжет 9 в момент герметизации (фиг.3; 4).
Герметизатор устья скважины работает следующим образом. Сменную герметизирующую вставку переводят в исходное положение (фиг.5; 6), для чего верхние круговые сегменты 8, уплотнительные манжеты 9 и нижние круговые сегменты 10 вместе со стержнями 11 и нажимными гайками 13 разводят в стороны на величину, необходимую для свободного ввода кабеля в продольный паз 7. После ввода кабеля в продольный паз 7 разведенные элементы сводятся плотно к кабелю, и вся конструкция перемещается вдоль кабеля вниз до установки конусных поверхностей компонентов сменной герметизирующей вставки в конусное отверстие цилиндрического корпуса 1 (фиг.7). Приводят в движение цилиндрические упоры 5 и фиксируют сменную герметизирующую вставку для восприятия нагрузки от давления со стороны скважины (фиг.8). Равномерным поочередным вращением нажимных гаек 13 производят сжатие уплотнительных манжет 9 до обеспечения необходимого уровня герметизации устья скважины. Для удобства вращения нажимных гаек 13 можно применить гаечную головку, приведенную на фигуре 10. Для того чтобы нажимная гайка 13 не вышла из зацепления со стрежнем 11, резьбовой его конец снабжен упорным съемным пружинным кольцом, изображенным на фигуре 9.
Применение герметизатора устья скважины в практику подземного ремонта скважин позволит быстро и надежно герметизировать устье скважины в момент проведения исследований с помощью геофизических приборов, спускаемых на кабеле.
Источники информации:
1. RU 2160355 С1, 13.05.1999 г.
2. RU 2102579 С1, 28.06.1996 г.
Формула изобретения
Герметизатор устья скважины, содержащий полый цилиндрический корпус с отверстием для пропуска геофизического прибора с кабелем, сменную герметизирующую вставку, установленную в отверстие корпуса, зафиксированную и содержащую верхние круговые сегменты, две подвижные уплотнительные манжеты, выполненные с возможностью радиального перемещения относительно оси кабеля и с возможностью вертикального перемещения вдоль оси кабеля в момент герметизации кабеля и опирающиеся на нижние круговые сегменты, каждый из которых жестко соединен со стержнем, имеющим резьбовой конец, выведенный наружу и соединенный с нажимной гайкой, обеспечивающей переход уплотнительных манжет в сжатое состояние при герметизации устья скважины, отличающийся тем, что он снабжен круговым диском с продольным пазом для ввода кабеля и наружной поверхностью, находящейся в контакте с поверхностью отверстия полого цилиндрического корпуса, резьбовые концы стержней выведены через круговой диск наружу, при этом отверстие полого цилиндрического корпуса выполнено конусным, в собранном виде в момент герметизации устья скважины круговой диск, подвижные уплотнительные манжеты и круговые сегменты образуют снаружи конусную поверхность, соответствующую конусному отверстию полого цилиндрического корпуса, и находятся в контакте с ним, а сама вставка зафиксирована при помощи цилиндрических упоров.
РИСУНКИ
PD4A – Изменение наименования обладателя патента СССР или патента Российской Федерации на изобретение
(73) Новое наименование патентообладателя:
Филатова Елена Александровна (RU)
Адрес для переписки:
123056, Москва, Тишинская пл., д. 6, кв. 49, Е.А. Филатовой
Извещение опубликовано: 27.03.2009 БИ: 09/2009
MM4A – Досрочное прекращение действия патента СССР или патента Российской Федерации на изобретение из-за неуплаты в установленный срок пошлины за поддержание патента в силе
Дата прекращения действия патента: 22.05.2008
Извещение опубликовано: 10.02.2010 БИ: 04/2010
|
|